占地面积|30万的存款,能在农村建什么样的房子?这8套图纸看看你喜欢哪套
后台收到粉丝留言,表示自己多年打工,现在身上有30万的存款,询问我们30万的预算,能在农村建什么样的房子?30万的预算虽然不算多,但只要好好设计一番,同样可以建出一栋优雅大气的乡村别墅。接下来就给大家推荐8套造价30万左右的户型,看看你更喜欢哪一套?
第1套:舒适外廊+餐厨一体+大露台,12×11米优雅乡村别墅,主体预算30万
占地尺寸:12m*11m
占地面积:135.3㎡
建筑面积:225.1㎡
建筑高度:8.9m
建筑情况:共设5室 2厅 2卫 1厨 1走廊 1休息平台


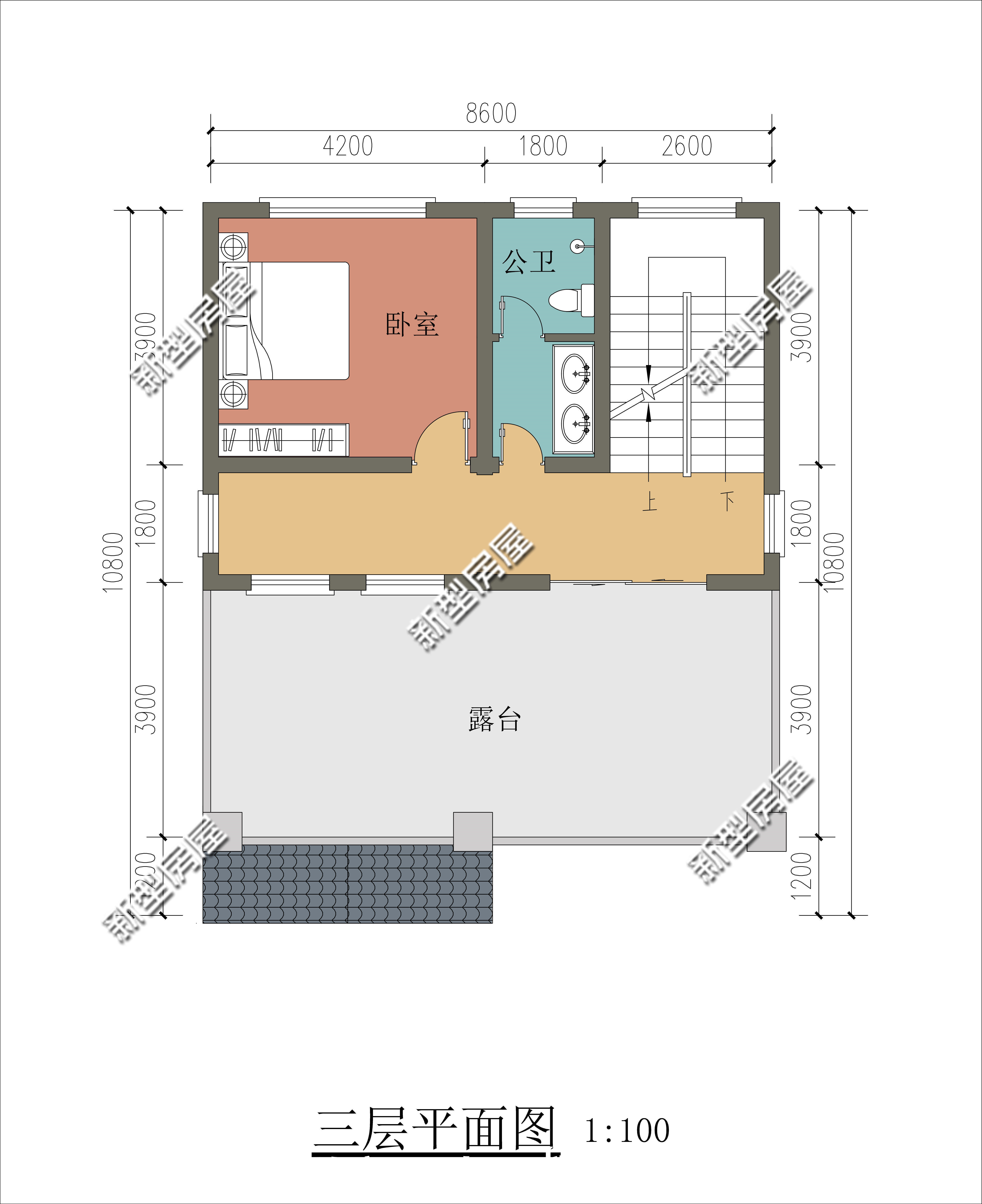
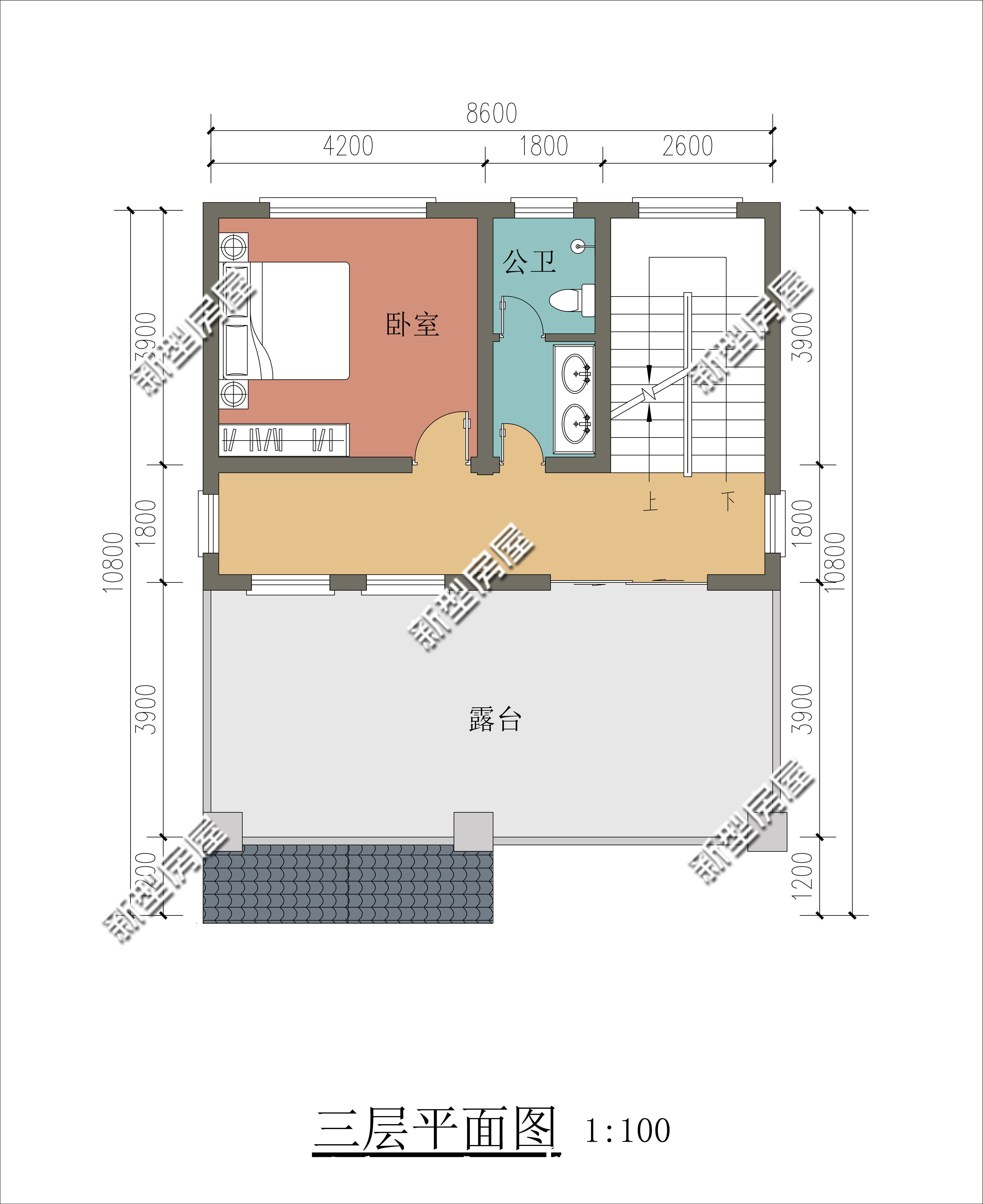
第2套:小面宽+大露台+神龛位,8×10米三层欧式户型,主体预算30万
占地尺寸:8.6×10.8m
占地面积:92.31㎡
建筑面积:244.58㎡
建筑高度:12.8m
建筑情况:4卧 2厅 3卫 1厨 1阳台 1露台 1神龛
【 占地面积|30万的存款,能在农村建什么样的房子?这8套图纸看看你喜欢哪套】
第3套:开放式车库+大露台+餐厨一体,12×15米田园风二层简墅,主体预算30万
占地尺寸:12m*15.7m
占地面积:147.7㎡
建筑面积:249㎡
总 高 度:9.6m
建筑情况:共设5室 1厅 4卫 1厨 1玄关 2会客室 1门厅 1露台 1车库


第4套:半开放式车库+落地窗+多卧室,0×13米现代风美墅,主体预算30万
占地尺寸:10m*13.8m
占地面积:130㎡
建筑面积:235㎡
总 高 度:9.2m
建筑情况:共设5室 2厅 3卫 1厨 1家庭室 1露台 1车库


第4套:半挑空客厅+大露台,11×11米阳光美墅,主体预算30万
占地尺寸:11.8m*11.6m
占地面积:125.3㎡
建筑面积:227.2㎡
总 高 度:8.7m
建筑情况:共设5室 2厅 2卫 1厨 1起居室 1书房 1露台


第5套:多入户门+大露台+开放式车库,12x13米质朴乡村小墅,主体预算30万
占地尺寸:12.54m*13.84m
占地面积:156㎡
建筑面积:251㎡
总 高 度:9.3m
建筑情况:共设3室 3厅 1厨 2卫 1书房 1储藏室 1双车库 1露台


推荐阅读
- 屋主|56㎡小户型老房改造,小而美的设计!
- 春节|如果能重来,阳台一定“9不装”,并非迷信,是过来人的经验教训
- 装修|乔迁新房3月以泪洗面!当初的不理智,连犯15个极品装修坑!作孽
- 现代风|168㎡现代风,带着浓郁的归属感与愉悦感
- 深色|155㎡简约风,承载着三代人的生活,不花哨让家务少一半
- 混淆感|146㎡北欧经典白色三居室,诠释令人心醉的优雅
- 造纸|生活用纸,黄卫生纸真的好于白色卫生纸吗?来听造纸员工怎么说!
- 对象|廉租房和公租房的有什么区别?
- 饱和度|173㎡轻奢新中式,古典和现代的碰撞,唯美浪漫!
- 小钱|游点好笑!收手机的新方式,一抓一个准!这老师怕是柯南看多了?
