占地面积|适合农村自建的150平到180平带车库的二层楼,漂亮功能多,收藏不吃亏
看如今,农村笔直的马路旁都是各种风格的漂亮别墅。大家的生活条件变得高了,审美也是跟着提高。打算回村盖别墅的朋友,一定希望盖出的房子不仅安全舒适,外观造型也能让人眼前一亮。今天小编推荐三款适合农村自建的150平到180平带车库的二层楼,喜欢的朋友可要收藏好。
【 占地面积|适合农村自建的150平到180平带车库的二层楼,漂亮功能多,收藏不吃亏】第一款:简欧式二层自建房设计图以及户型图,带车库设计
效果图展示
效果图展示
效果图展示
别墅户型外观美,造价低,深受大众的喜欢。外墙贴的是奶白色的瓷砖很大气。搭配蓝色屋顶,整体给人感觉很舒服协调,别墅虽只有二层,但却豪气十足,农村自建一栋,一点不比城市的花园洋楼差。
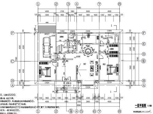
占地面积:18.06m*11.56m,211平方米左右;
建筑层高:二层;
建筑高度:10.06米(含屋顶);
设计功能:
一层户型:客厅、神位、餐厅、厨房 、卧室、卧室(带衣帽间、卫生间)、卫生间、杂物间、车库;
二层户型:卧室(带衣帽间、卫生间)、健身房、卧室x2、卫生间、杂物间、阳光房、露台
户型图展示
户型图展示
第二款:新农村带车库的二层小别墅设计图以及户型图,带锅炉房(或储藏间)
效果图展示
清新淡雅,空间利用率高!经典的欧式风格,浅灰色真石漆与红色坡屋顶的结合,不易过时,外观线条流畅,色彩清新淡雅,尽显优雅大方,非常适合居住。门口的方柱搭建起的门廊空间,衬托出沉稳庄重的大家风范,阳台和罗马柱相搭配,不仅加强了设计感,使得室内采光通风更上一层,足不出户也可尽揽乡村风光。搭配精致落地窗,给房子增添了不少豪气感。餐厅客厅之间设有间隔,保证了房间整体的空气清新。侧面设独立车库,空间开阔,停车便利。二层客厅连着阳台通风效果好;大露台设置在房屋整体的东部,可以用于冬季晾晒谷物以及腌鱼腌肉。
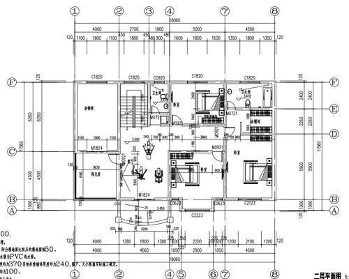
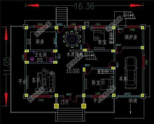
占地面积:16.36m*11.05m,168.73平方米左右;
建筑层高:二层;
建筑高度:9.499米(含屋顶);
设计功能:
一层户型:客厅、锅炉房、餐厅、厨房、卧室x2、卫生间、车库;
二层户型:客厅、娱乐室、卧室x4、卫生间、阳台、露台
户型图展示
户型图展示
第三款:带车库二层农村豪华别墅设计图以及户型图,主体造价25万左右
效果图展示
外观是中式与现代的完美结合,实用省钱非常划算方正的户型,简约时尚,没有太多的装饰,加上欧式罗马柱和落地窗就显得格外豪华气派,覆盖灰色的琉璃瓦片,浑然一体,搭配刚刚好。人生有很多乐趣,农村未来将成为人们向往的地方。所以,钱挣得差不多的时候,可以考虑在家里建个别墅 ,在家附近工作或创业,享受人生。
推荐阅读
- 建房子|面宽11米, 进深16.5米的农村三层别墅, 前后有花院还带车库, 完美!
- 别墅|参观亲戚上海的豪宅,别墅硬是住成农村房,真是糟蹋了好房子
- 购房置业|今年起,农村老家的老房子,统统按照“新规”处理,子女提前知晓
- 修建|精选10套三层户型图纸,占地面积均不足百平,尤其适合新农村修建
- 上海市|2022年农村人要“享福了”?实行按户补贴,跟村民们的房子有关
- 洗衣房|这三款农村四合院设计图让不少城里人羡慕,父母看了也欢喜
- 购房置业|农村建新房就选这套四层别墅,占地100多平,8间卧室人人都有地睡
- 别墅|土豪农村盖大别墅,人人羡慕,如今却成为全村人眼中的大笑料
- 李沧|农村建房不能超过几层?面积是怎么规定的?农村建房的流程及条件一览
- 露台|推荐5款三层别墅设计图纸,最适合农村建的房子
