展示|145平方房子设计图片,简洁大方,一家人住其乐融融
农村虽然不及城市喧哗热闹,但是却也有一番风味,空气清新、风景优美这些都是在城市里感受不到的,现在的农村发展的越来越好,但是要想在农村盖一栋经济又美观的小别墅,适合的户型图纸和专业的施工团队一个都不能少。今天小编就带大家一起看看145平方房子设计图片,有全套户型图哦,一起来看看吧。第一款:最漂亮的一层平房图片本户型为漂亮、美观的一层平房设计图,含外观图片,内部布局非常合理,南北通透,采光优良,4室两厅两卫。
别墅效果图展示占地面积:14.0m*10.5m,建筑面积145平左右;建筑层高:一层;建筑高度:6.50米(含屋顶);设计功能:一层户型设计:客厅、餐厅、厨房、主卧(带卫生间)、卧室x2、书房、卫生间;
别墅户型图展示第二款:二层农村小别墅设计图二层农村小别墅设计图,所用的占地面积都不大,符合农村建房政策,外部造型及色彩搭配之协调更让人叹绝。
别墅效果图展示占地面积:13.6m*12.3m,140平方米左右;建筑层高:二层;建筑高度:9.9米(含屋顶);设计功能:一层户型:玄关、客厅、餐厅、厨房、卫生间、卧室x2、卫生间,户外平台;二层户型:客厅、卧室x4、露台、卫生间;
别墅一层户型图展示
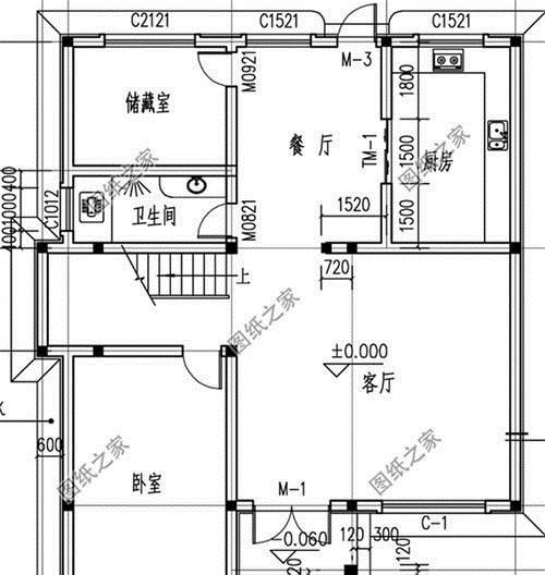
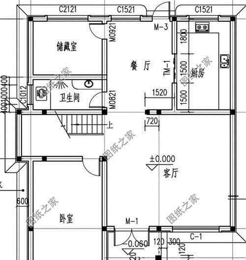
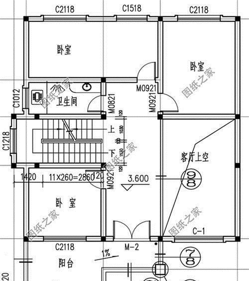
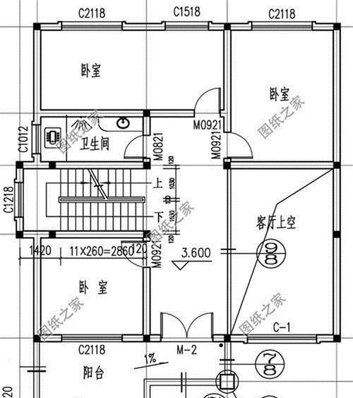
别墅二层户型图展示第三款:客厅中空三层复式别墅房屋设计图本方案为客厅中空三层复式别墅房屋设计图,落地大玻璃,屋顶带大露台,还有个小凉亭,含外观效果图,外观时尚、新颖。
别墅效果图展示占地面积:11.00m*13.2m,145平方米左右;建筑层高:三层;建筑高度:12.06米(含屋顶);设计功能:一 层:客厅、厨房、餐厅、卧室、卫生间、储藏间;二 层:休闲厅、卧室x3、卫生间、阳台;三 层:卧室x2、卫生间、凉亭、露台;
别墅一层户型图展示
别墅二层户型图展示
别墅三层户型图展示以上就是农村145平方房子设计图片,这几套别墅的设计图,你最喜欢哪一套?
推荐阅读
- 楼市|房子降价对楼市而言反倒是件好事
- 购房置业|经济学家:老百姓60%的钱花在房子上很危险!网友:说得很对
- 房贷|“重启”拆迁?这2类房子或全拆重建,两类人受到影响
- 客厅|参观向华强和陈岚的豪宅,房子层高太矮了,住着不压抑吗
- 大门|房子大门万万不能朝这地方开,师傅看了摇头,怪不得我家越住越穷
- 购房置业|为什么买房不要买靠边的房子?这些问题要注意,开发商不会告诉你
- 炒房|房子有多难卖?三线城市炒房者:降价20万送车位都卖不掉
- 建房子|面宽11米, 进深16.5米的农村三层别墅, 前后有花院还带车库, 完美!
- 购房置业|买房界的黄金法则:好房子横向要宽、纵向要薄,多面朝南
- 卫生间|什么才叫好户型?来看看这5个标准,你家房子符不符合?
