小别墅|这几套农村二层小别墅,经济适用布局好,高端又实用
农村自建房是人生中的头等大事之一,需考虑房子的设计风格、位置朝向、户型布局等诸多细节。
房子的颜值关乎到主人的面子,所以外观必须好看,其次布局也要符合家人的生活习惯,这样才能住的舒服,再次要性价比高。
今天就给大家带来几款经典的适合农村建的中式二层小别墅,颜值超高,经济实用,布局也适合大多数人的习惯。
第一套:新中式合院*至逸
户型布局:5室2厅1厨3卫
销售面积:288㎡
占地面积:128㎡
主体结构:砖混结构
建筑层数:2层
户型开间:11.3 m
户型进深:16.5m
带柴火房、老人房和一大露台,以中式风格为灵魂,融入徽派建筑内核。粉墙黛瓦,色泽朴素、典雅大方,繁与简的比衬,黑与白的搭配,实在是农村自建房中的典范。

第二套:中式合院2020款H-110
中式院落,入户见景
超大露台迎风与光,自然之息愈久伴!
讲求自然、艺术与建筑的和谐。
提取蕴含徽派文化元素马头墙、小青瓦等,突显韵律美颇具地方特色。




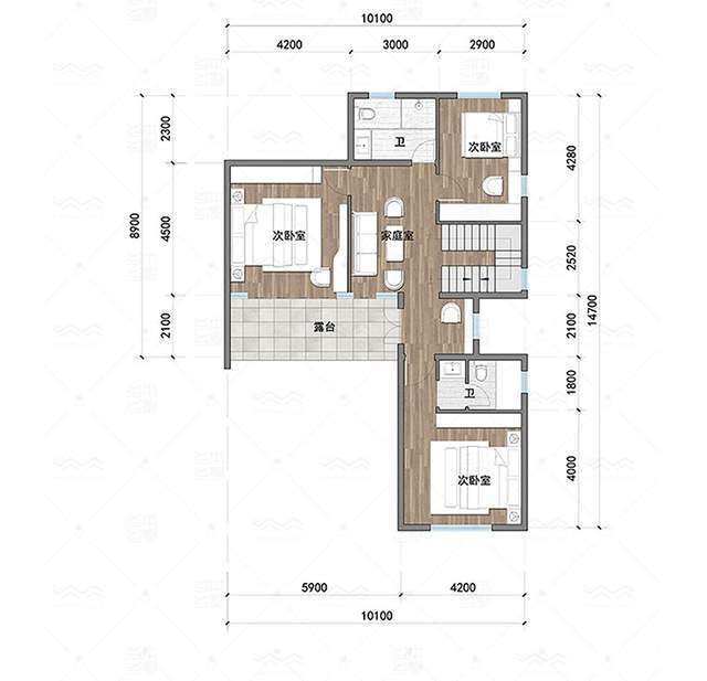
户型布局: 5室(3套房1标间)4厅1厨5卫1阳台3露台
销售面积: 288㎡
占地面积: 110㎡
面宽进深: 10.1m*14.7m
屋顶结构:现浇屋面
主体结构:砖混结构
建筑高度: 11.55m (0.45m+3.3m+3.0m+3.0+1.8m)
第三款:新徽派
传承中式的古朴,尽显东方之美
白墙黑瓦,粉黛相宜,木栅栏杆,更添古朴
通透门窗,乡村美景,尽收眼底!


户型布局: 6室(2套房4标间)4厅1厨4卫3阳台4露台1储物阁楼
销售面积: 404㎡
占地面积: 150㎡
面宽进深: 13.1m*11.7m
屋顶结构:现浇屋面
主体结构:砖混结构
建筑高度: 9.75m (0.45m+3.3m+3.0m+1.5~3.0m)


【 小别墅|这几套农村二层小别墅,经济适用布局好,高端又实用】上面这三款,虽然都是新中式,却各有千秋,那么你最喜欢哪一款呢?
推荐阅读
- 屋主|56㎡小户型老房改造,小而美的设计!
- 施工者|不管家多大,装修时做好这12处细节,美观与舒适并存,幸福感提升
- 大悦城|家里这两个地方别漏了贴瓷砖,许多人为了省钱,入住就后悔了
- 贷款|5月起,“2道铁令”,今后这1种买房方式再也行不通了
- 灰尘|家中阳台不要装推拉门了,装这种更实用个性,不得不感叹太聪明了
- 管道|为什么说:再穷也不买二层?了解这些弊端之后,就知道多糟心了!
- 小钱|游点好笑!收手机的新方式,一抓一个准!这老师怕是柯南看多了?
- 餐边柜要做成什么样子才实用又好看看看这几款餐边柜设计
- 集体经济|征拆赔款找,查了才知有这么“多”…
- 房贷|“重启”拆迁?这2类房子或全拆重建,两类人受到影响
