衣帽间|155平花半天也四室住宅公寓装修,三代人的生活,最美的“全家福”
前言
本案的屋主一家是一个三代同堂的大家庭,不同的年龄层次都有不同的对生活的诉求。老人的环境要温馨安逸,生活动线要简单高效;屋主夫妻俩要有衣帽间,独立卫生间可是少不了;孩子也有要属于自己的小天地,学习玩耍两相宜;女主人喜欢偶像剧里的西式厨房,父母却坚持他们的“中国胃”……对了对了,男主人的电竞房也要安排上。嘘,小声说,别让女主人听到了~
空间展示

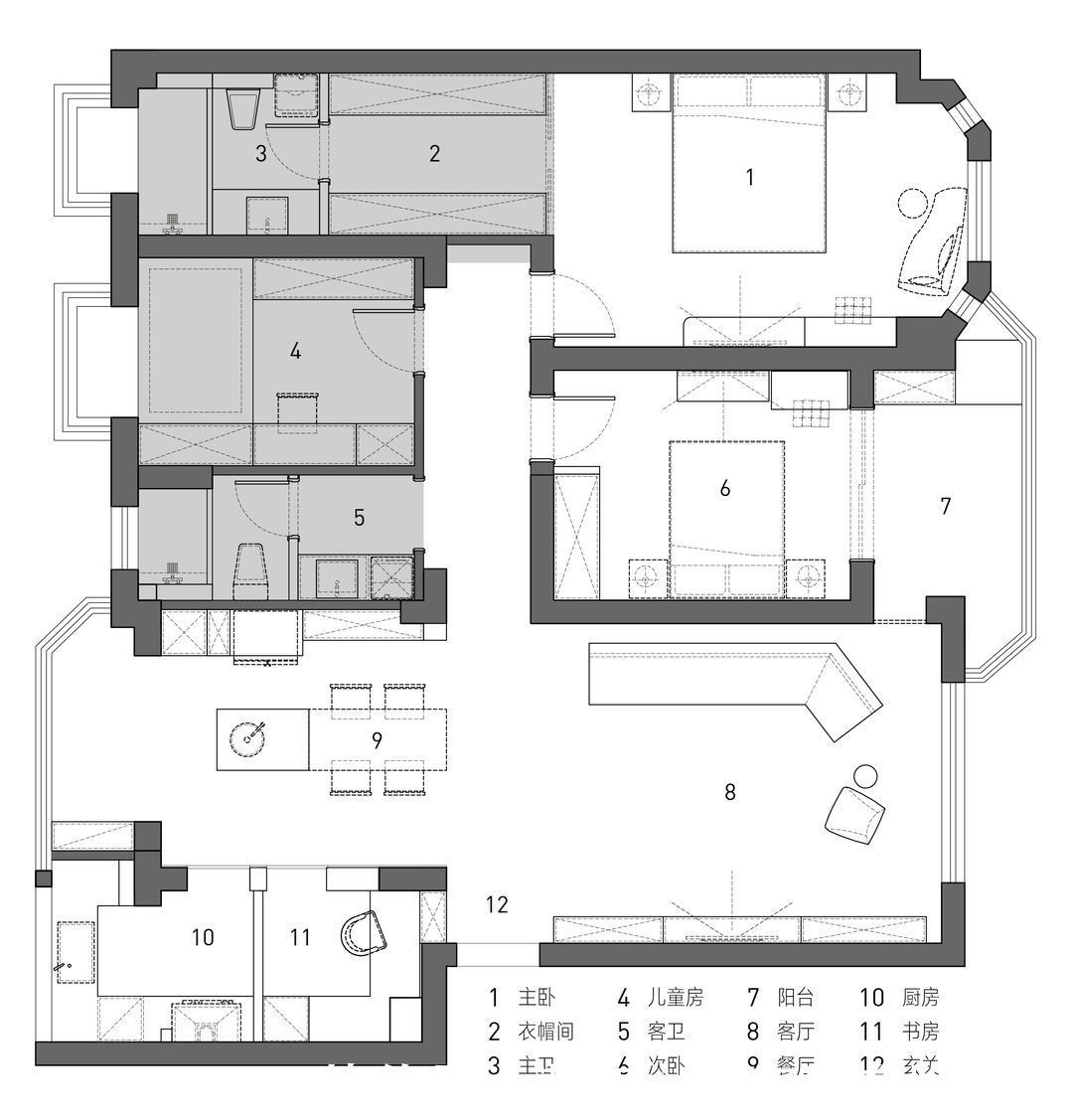
● 设计说明1、减薄墙壁,打造嵌入式玄关储物柜,把大面积的完整墙面留给电视背景墙。2、重新分隔封闭式厨房,分成活动室和多功能房,利用餐厅空间打造西厨餐厅;3、敲除洗手间墙面,利用过道空间,将洗衣机干衣机和浴室柜台盆设置在这里;4、重构与主卧相连的两个空间的划分,让衣帽间和主卫的面积位置更加合理。
—空 间—
SPACE
入户门紧挨电视背景墙,这给玄关储物设置了难题。
还好在入户门的另一边有一堵窄墙,为了玄关储物柜提供了宝贵空间。
— 餐厅 —
DINNER
客餐厅是空间设计的核心,是展现设计师格局规划和设计创意的最佳空间。
本案客厅与开放式餐厨空间相连,成为了一体化的超大空间。无主灯设计会让客厅更为整洁大气。
电视机柜采用纯白门板+玻璃门板的组合,木质的温和玻璃的通透,是不同材质在同一柜体上的“偶遇”。
纯白门板的“极简”和玻璃背后摆件的“极繁”对比,封闭储物和开放式收纳,似乎成为背景墙储物柜的最优解。
背景墙也是这一设计理念的体现,纯白墙面太过素净,而一段原木饰面板则调和这种单调,通过主卧阳台的隐形门也藏匿其中。
沙发上方的装饰画只有一张,却和背景墙相得益彰。抽象画更多的是风格和色彩的点缀,无形却胜有形。
厨房
中西双厨的设计最大程度上兼顾了重油烟烹饪和开放式餐厨空间的优势。
地面和地柜采用深色,仿岩板地柜更显质感;台面墙壁和吊柜整体纯白,减少视觉压力。色彩搭配上的“下重上轻”,让视觉感受更加简约,避免了“头重脚轻”的感觉。
餐厅
-DINNER-
餐厅是一个家非常重要的组成部分,是为数不多的能把全家人聚在一起的地方,核心的功能是就餐和餐厅收纳。
餐厅的完整墙面作为餐边储物柜的空间,地柜吊柜形成的台面空间,可以容纳小厨电,轻松变身水吧台。而高柜除了储物也能容纳冰箱和嵌入式电器。
推荐阅读
- 深色|155㎡简约风,承载着三代人的生活,不花哨让家务少一半
- 购房置业|户均资产达317.9万,房贷占了155万,央行出手户籍与房产脱钩
- 衣帽间|180㎡大平层装成北欧风,不光过道打了整体柜子,独立水吧给力
- 衣帽间|退休阿姨晒出自己的新家装修全屋大面积护墙板造型,温馨有个性
- 衣帽间如何装修?设计师推荐5大黄金布局|小小屋装修网| u型
- 衣帽间|建议大家:不论多节俭,这30件东西该扔就扔,一点都不用心疼
- 衣帽间|130㎡现代法式风改造案例,静静地享受生活的美好
- Loft公寓|45平现代简约风Loft公寓,衣帽间茶室书房一个不少,一人住好惬意
- 大白墙|通风3个月入住新家,88平花了不到10万,全屋大白墙太值得了!
- 物品|越来越多人将床底加高1m左右,做成衣帽间,省空间又能“装”!
