田园风格|这是我6万元装修出来的100平米二居室,大家看看亏不亏!
如今,时代在不断的进步,对于装修风格的来说,大家有了更高的要求,同时也有了更多的选择,对于装修,你知道装修多少钱一平么。今天就跟小编来看看,100平米的二居室是怎样玩转田园风格的吧。
小碎花是田园风格的典型代表,色素雅的花卉最能体现女主人的柔情,浪漫田园风格soltera印花家具,营造出一种浪漫温馨的家居意境。田园生活的特点是有平和的休闲空间,可以放松精神。这与家居设计的理念不谋而合。于是,充满着户外气息和大自然味道的田园风格家庭装修便被设计师引入了现代家居中。
当生活越来越趋近简单,一个明快舒适的空间就成为了精神世界的港湾。在设计的过程中,家具的摆放要做到和整个空间风格统一化,才能体现出潮流气息。客厅的家具多以坐卧类为主,其中沙发、茶几等家具就占据了主要位置,因此其风格、造型、材料质感都会对整个空间风格的形成起到很大的作用。
客厅采用木质地板,环保也不失时尚。
无论家居面积大小,卧室总是不能忽略的一个场所。装修时,有些小细节稍不注意,就可能影响到每天的睡眠质量和生活状态,所以,卧室装修是重中之重!
卧室采用浅色系,床头灯创意十足,温馨。
布局合理的卫生间应当有干燥区和非干燥区之分。非干燥区不利于储物,即使是干燥区,卫生纸、毛巾、浴巾等如果长期放置,也一定要用隔湿性好的塑料箱存放,避免受潮,要保证它们拿出来使用时没有水气。
卫生间整体墙体采用小碎花样式,整体符合田园风。
家用餐厅空间应该是我们每天可以不厌其烦地花时间的地方。这个功能空间既是我们用心制作美食的地方,也是将朋友聚拢起来分享食物增进感情的好去处。
餐厅餐桌椅整体采用白色系,简约干净。
提到厨房,很多人首先想到的就是烟火气息,的确,很多人都会有油烟的困扰,所以厨房尽量不要做成开放式的,这样会影响到其他的居室环境。另外厨房的收纳功能虽然要考虑,但是一旦厨房面积过小就要放弃做太多的橱柜了,否则会很拥挤哦。
厨房做了L型操作台,空间合理利用,外侧做了吧台,可以放置闲物,也可以偶尔喝茶闲聊。
儿童房千万不能狭小拥挤,这样的话会让孩子变得压抑,从而形成暴躁的个性。所以,保持房间的宽敞通透是必须的,装修时也要注意预留的空间多点。在家具选择方面更要考虑实用性和多功能性。
儿童房墙漆采用蓝色系,活泼轻快。柜子采用绿色系清新自然。
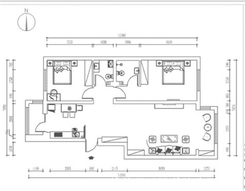
以下就是本套杏林苑小区100平米二居室房子的户型图。
户型图整体规划合理,空间布局安排恰当。
【 田园风格|这是我6万元装修出来的100平米二居室,大家看看亏不亏!】以上就是杏林苑小区100平米二居室的装修设计案例,小伙伴感觉怎么样?简约的风格、时尚的搭配组成了田园的风格,效果却是很好的。半包只花费了6万元,也是我们可以接受的装修预算。小编给大家一个装修小窍门,装修的时候效果是一方面,实用也是很重要的一方面,所以在装修的时候要考虑今后入住的实用性哦!
推荐阅读
- 施工者|不管家多大,装修时做好这12处细节,美观与舒适并存,幸福感提升
- 大悦城|家里这两个地方别漏了贴瓷砖,许多人为了省钱,入住就后悔了
- 贷款|5月起,“2道铁令”,今后这1种买房方式再也行不通了
- 灰尘|家中阳台不要装推拉门了,装这种更实用个性,不得不感叹太聪明了
- 管道|为什么说:再穷也不买二层?了解这些弊端之后,就知道多糟心了!
- 小钱|游点好笑!收手机的新方式,一抓一个准!这老师怕是柯南看多了?
- 餐边柜要做成什么样子才实用又好看看看这几款餐边柜设计
- 集体经济|征拆赔款找,查了才知有这么“多”…
- 房贷|“重启”拆迁?这2类房子或全拆重建,两类人受到影响
- 万科|首付745万的房没了还要赔500万!买二手房签合同时注意这8个细节
