客厅|黑白灰装修风格真漂亮,100㎡低调简约设计,更贴近生活!
简约的设计,总是在不经意间打动人。黑白灰作为最经典的基础色,也更适合简约时尚的装修风格,干净简单的色彩,会让空间显得格外透彻。这期案例就是以黑白灰为基调,加上自然色暖木地板,100㎡简约而不简陋,温馨而不沉闷,低调简约的设计,更贴近生活。房屋基础信息项目面积:100㎡项目地址:四川成都主案设计:陈宣
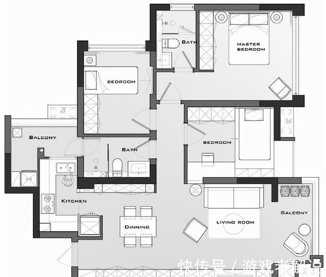
原始结构图户型大致较为合理,但也存在一些问题,比如室内隔墙太多,将空间划分得比较零散,看起来显得拥挤。此外,入户没有玄关,收纳要如何解决,还有厨房和生活阳台空间小,使用不方便的问题。最后就是卧室,需要进行微调才能更好地满足生活需要。
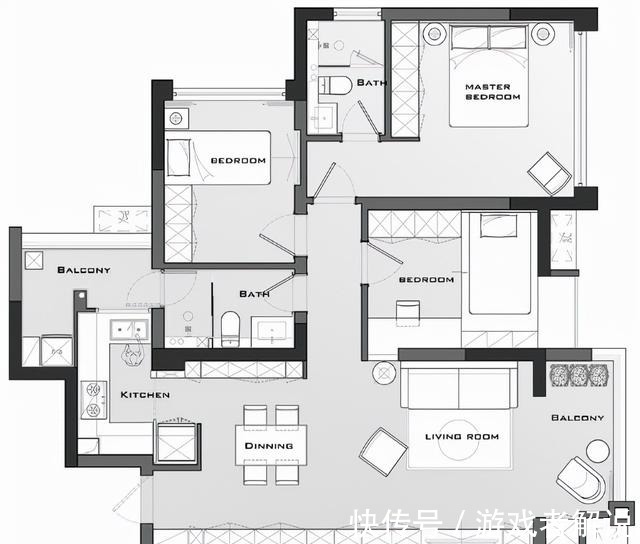
装修布置图改动后整体布局更有利于日常生活。在征得物业允许后,调整了入户门位置,让进门右侧拥有足够的空间定制鞋柜。其次封闭了厨房通往生活阳台的门窗,让原有L型厨房变成U型,有利于日常操作,生活阳台改由客卫进入。最后,就是卧室空间调整,拆除了一些墙体,释放空间。
客厅设计客厅以黑白灰为基础,打造干净纯粹的空间感,辅以暖色木地板增加空间温度,平衡空间色彩。拆除阳台推拉门,将阳台纳入客厅范畴,采光与通风变得更直接。简约时尚的百叶帘,取代了布艺窗帘,遮挡阳台的同时,又可以灵活调节室内光线强弱。
客餐厅吊顶一体化,整体感好,空间也更显开阔。客餐厅没有明确空间边界,利用灯具不同进行功能区划分。客厅采用无主灯设计,以点状光源结合嵌入式灯条的方式进行照明,餐厅则加入了黑色吊灯,多了几分精致。
调整了入户门位置,进门右侧拥有足够的空间定制储物柜,柜子由入户一直延伸到客厅,整面储物柜设计,不仅收纳充足,视觉效果也简洁大气。有开有合的设计,告别视觉单一,更有活泼气质。
餐厅设计餐厅简约时尚,左右两侧均做了储物设计,大面积使用白色减轻柜子体量,视觉清爽空间也不显拥挤。纤细外观造型的桌椅,满足日常用餐需求,占用面积少空间也更通透。驼棕色坐垫的椅子,平衡了空间色彩,多了一份暖调与时尚感。

厨房设计厨房采用玻璃推拉门隔断,推拉门采用吊轨的形式,有利于后期居家清洁。厨房封堵了通往生活阳台的门窗,让空间可以完整利用起来,打造成U型布局,拓宽操作台提升使用舒适度。
卫生间设计卫生间设计比较简单直接,简单实用为主,便于日常维护清洁。镜柜设计不仅提高收纳,还可以增大视觉空间。生活阳台改由卫生间进入,还是比较方便的。
主卧设计主卧拆除了部分隔墙,释放空间后更有利于装修布置。运用大量白色定调,加上黑色和木色点缀,平衡空间色彩。背景墙利用木饰面做分色设计,带出空间层次也多了几分温润气息。同样采用百叶帘设计,可以更灵活的调整室内光线强弱。
推荐阅读
- 客厅|参观向华强和陈岚的豪宅,房子层高太矮了,住着不压抑吗
- 亮点|等了6个月终于能晒晒新房了,都挺满意的,客厅是最大的亮点
- 庭院|取消客厅三件套,只摆一张大长桌,79㎡的家简洁质朴,太满意了
- 餐厅|这套新房真有创意,客厅改主卧,电视背景墙后面设吧台!
- 装修|越来越多人阳台不装推拉门了,如今流行将阳台包进客厅,太聪明了
- 客厅|有钱人从不在家里放这4样东西,暗喻越住越穷,有钱人都会避开
- 卫生间|卫生间玻璃胶总是发黑怎么办?老师傅教你一招搞定,网友直呼聪明
- 隔断|112㎡清新北欧风,客厅砌个半墙隔出一间书房,2居变3居真实用
- 客厅|西安一对夫妻在客厅打羽毛球,两人水平不相上下,网友:房子够大
- 客厅|住建部部长:房子是用来住的,不是用来炒的
