装修需要结合实际情况,将自己的生活方式融入其中,去决定需要哪些功能和物件,又不需要哪些。这次分享的是一套四口之家装修案例,房屋坐落于重庆永川,屋主夫妇为了两个儿子读书方便,买了这套带院子的房子。屋主偏爱极简风,简单的装修设计,营造出简洁质朴的居家环境。为了不影响孩子读书,客厅取消沙发、茶几、电视三件套,只摆一张大长桌简单实用,全屋装修效果太满意一起看看吧。(图源:南也设计)

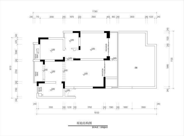
原始户型图,两居室的空间附带庭院,套内面积79㎡,庭院30㎡。

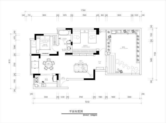
装修平面图,把握尺寸规划动线,将客厅打造成会客与书法兼顾的空间。同时,将主卧与儿童房互换,让睡眠空间相对宽松。考虑到收纳,设置了大量的储物空间。

客厅干净整洁,比起繁杂的色彩,纯净的白色与黑胡桃色,让空间更显沉稳与质朴。为了不影响孩子读书,取消了沙发、茶几、电视三件套布置,取而代之的是一张大长桌,不仅让客厅变成书房与会客兼顾的空间,还提高了居家互动效果。

黑胡桃木的家具,传递出木质的温润感,简洁的外观造型,勾勒出最简单的质朴韵味。

为了进出方便,阳台改造成连接客厅与庭院的门厅。简单的梅花装饰与储物柜,轻描淡写的描绘出中式的质朴。大面积落地窗,让光线毫无遮挡的洒向室内,让自然与空间多了几分互动。

没有电视的客厅多了几分安静,电视墙直接设计成储物柜,将生活物件统统收纳与柜内,保持空间整洁。封闭式与开放式结合,避免了视觉呆板,摆放一些装饰物件,柔和的灯光设计仿佛在诉说它们的过往。

保留了原有玄关空间,设计了大面积的收纳柜,暗藏在细微之处的灯光,让空间略有层次感。

厨房家中最有生活气息的地方之一,每天的柴米油盐,一日三餐都在这进行。L型的布局设计,让厨房动线更流畅。舍弃传统式油烟机选择集成灶,让整体空间更加美观,还多了一些收纳。

餐厅选择了圆桌,黑胡桃的家具,多了一份质朴韵味。一家人围坐在圆桌,热腾腾的饭菜和唠嗑不完的家常趣事,幸福指数爆棚。


利用餐厅窗前空间设计地台,打造成休闲阅读区,一壶茶、一本书,惬意舒适生活也不过如此。
推荐阅读
- 客厅|参观向华强和陈岚的豪宅,房子层高太矮了,住着不压抑吗
- 户籍|济南今起取消公积金异地贷款户籍限制
- 华润|又有3笔收费明确取消了,事关住房贷款,有人一次能省1.4万?
- 亮点|等了6个月终于能晒晒新房了,都挺满意的,客厅是最大的亮点
- |中式庭院,这才是最让我们心动的院子
- 餐厅|这套新房真有创意,客厅改主卧,电视背景墙后面设吧台!
- 装修|越来越多人阳台不装推拉门了,如今流行将阳台包进客厅,太聪明了
- 案例|玩转庭院:11个“中式庭院”设计案例,院子这样造几十年不落伍
- 客厅|有钱人从不在家里放这4样东西,暗喻越住越穷,有钱人都会避开
- 隔断|112㎡清新北欧风,客厅砌个半墙隔出一间书房,2居变3居真实用
