简约风|120平现代简约风三居,酒红色的电视柜很时尚
现代简约风格的装修风格迎合了年轻人的喜爱,都市忙碌生活,早已经让我们烦腻了花天酒地,灯红酒绿,我们更喜欢的一个安静,祥和,看上去明朗宽敞舒适的家,来消除工作的疲惫,忘却都市的喧闹。提出适合流水线生产的家具造型,在建筑装饰上提倡简约,简约风格的特色是将设计的元素、色彩、照明、原材料简化到最少的程度,但对色彩、材料的质感要求很高。因此,简约的空间设计通常非常含蓄,往往能达到以少胜多、以简胜繁的效果
客厅是我们家里休闲的功能区,对于客厅的家具,小编建议大家不要过多,要留出足够的空间方便我们活动,沙发要选择合适的尺寸,不要多大或者过小,根据你家的客厅面积进行选择。
?
?
在配饰上,延续了黑白灰的主色调,以简洁的造型、完美的细节,营造出时尚前卫的感觉
?
?
装修的简约一定要从务实出发,切忌盲目跟风而不考虑其他的因素。
在进行卧室装修前,要先确定其装修风格。通常卧室的装修风格、布局、色彩和装饰都要以床为中心展开。因为床占据了卧室装修空间的大部分,只有先将床的位置确定下来,才能进行卧室装修风格的选择。
?
?
简约的手法进行室内创造,它更需要设计师具有较高的设计素养与实践经验。
餐厅餐桌布及窗帘等布料饰品,尽量选用耐脏易清洁的面料,如果餐厅较为狭窄,可于墙面装上一面大镜子,另外餐厅背景墙上的装饰画的要依据餐厅整体来开展选择,图案最好是温馨和清爽的题材。
?
?
设计上更加强调功能,强调结构和形式的完整,更追求材料、技术、空间的表现深度与精确
玄关,是一所房子给我们留下第一个印象的地方,近年来人们逐渐注重这个位置的装饰效果。而设计玄关是为了增加主人的私密性,为避免客人一进门就对整个室内一览无遗,在进门处用木制或玻璃作隔断,划出一块区域,在视觉上遮挡一下。
?
?
现代风格外形简洁、功能强,强调室内空间形态和物件的单一性、抽象性。
?
?
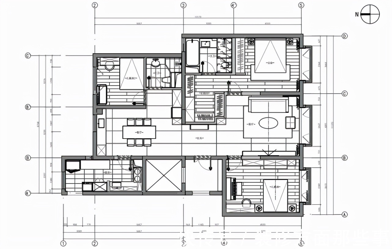
户型结构平面布局图现代风格
【 简约风|120平现代简约风三居,酒红色的电视柜很时尚】
推荐阅读
- 现代风|168㎡现代风,带着浓郁的归属感与愉悦感
- 深色|155㎡简约风,承载着三代人的生活,不花哨让家务少一半
- 助贷|助贷咨询:企业抵押贷款常见风险
- 背景墙|97㎡现代风,以时尚打造空间,以新颖突出特点
- 三居室|118平现代风三居室,一个简单而纯粹还原生活色彩的家
- 简单感|现实的平衡取舍,才是生活之道!143平现代风格设计欣赏!
- 宋智雅|不只穿假货!宋智雅豪宅全是租的,公主风奢华住所都是TA在出钱供
- 木纹板|装修案例欣赏:小北欧风格的居家设计,简洁的同时又不失温馨感!
- |73㎡复古风两居室,年轻夫妻的高品质生活
- 二手房|没有过户,房子就不是你的!二手房“延期过户”有哪些风险?
