南京|南京夫妻的97平新房,坚持“清汤寡水式”装修,效果反而通透高级
何谓“清汤寡水式”装修?即舍弃无谓的造型,追寻一种大道至简的魅力,只要搭配得好,效果出来反而通透高级!而今天要分享的案例也是如此,为南京夫妻的97平新房,完工后的效果不是一般的漂亮,不信给大伙介绍一下。
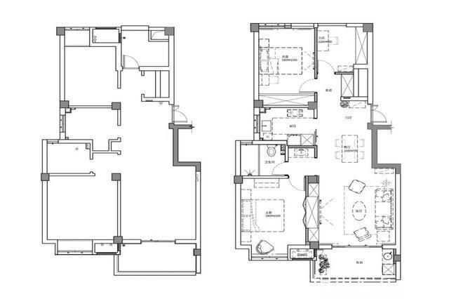
新房为两居室外加一间小书房,其中图左为原始结构图,图右为平面布局图,有需要的可以自行参考一下。
推门而入是玄关,墙面虽然只刷了一层乳胶漆,但看着干净清爽,结合绿植、装饰画的点缀,效果变得美观大方且富有活力。至于收纳,一款半高的成品柜足以搞定。


入户左转,是为餐厅。其中靠近玄关的地方设有一面贴墙镜,方便进出门的时候整理衣着。餐桌椅结构轻巧,但深色的木纹细腻自然,看着很有质感。
厨房布局为L型,更适合这样的狭长型结构。其中地面的瓷砖令人耳目一新,特别的漂亮!当然,免拉手的橱柜搭配浅色系的墙砖也不错,无疑营造了一个干净利落的烹饪环境。
客厅与餐厅紧挨。
“清汤寡水式”的装修要想做得出彩,必须搭配好软装,否则将变得索然无味,基于此业主在对面的沙发墙点缀一幅色彩鲜艳的装饰画,可以让空间变得更有活力。另外就是两侧的绿植,无疑又让这个家充满了生机勃勃的气息。
同时,沙发左侧的收纳架不仅可以摆放绿植点缀空间,还能提高利用率,如此也算是一举两得。
这里还安装了辅助光源,一来烘托氛围,二来看着更有质感。



家具方面以松软舒适的布艺沙发为主,这个已经很常见,就不多讲了,不过与之相搭配的双拼茶几不错,虽然结构精巧,但款式却尽显轻奢,无疑对拉高家居品质很有帮助。
当然,质感是提升了起来,但这样的茶几对于多数人来说并不实用,因为放不了多少东西,所以前面提到沙发左侧的收纳架就起到了至关重要的作用。
对面是阳台,选用长虹门作为隔断,透光不透形的特点既保证了效果通透,也让私密性得到了大大的增强。
业主不设主灯,就连吊顶也进行简化,所以能够看到天花板四周几乎只走了一圈石膏板,不过呼应地面的地板和地毯,效果还是很不错的。
推荐阅读
- 屋主|56㎡小户型老房改造,小而美的设计!
- 春节|如果能重来,阳台一定“9不装”,并非迷信,是过来人的经验教训
- 装修|乔迁新房3月以泪洗面!当初的不理智,连犯15个极品装修坑!作孽
- 现代风|168㎡现代风,带着浓郁的归属感与愉悦感
- 深色|155㎡简约风,承载着三代人的生活,不花哨让家务少一半
- 混淆感|146㎡北欧经典白色三居室,诠释令人心醉的优雅
- 造纸|生活用纸,黄卫生纸真的好于白色卫生纸吗?来听造纸员工怎么说!
- 对象|廉租房和公租房的有什么区别?
- 饱和度|173㎡轻奢新中式,古典和现代的碰撞,唯美浪漫!
- 小钱|游点好笑!收手机的新方式,一抓一个准!这老师怕是柯南看多了?
