朝向|为什么说有些买房者聪明房型优先考虑这几点,难怪买的都是好房
不管是新房二手毛坯精装,不管是公寓平层刚需改善,有些买房者买房时挑的都是好房型,难怪说他们聪明,买房前把这些都提前考虑清楚了,那肯定一买一套好房的呀!① 户型的采光、通风与布局分析② 同一楼层的东、中、西户优缺点对比③ 同一户型的楼层选择分析
买房子,除了要考虑周边的教育、医疗、交通、商业等配套之外,还要着重研究房子本身户型的舒适性。咋研究?从采光、通风、布局这三点着手:1、采光房子的采光,主要由朝向、楼间距、开间进深比等原因决定的。① 朝向太阳东升西落,坐北朝南的房子采光最好。下图是一栋两梯六户的房子:
六套房子里,朝南的两个户型采光最好,其中东侧南朝向的房子可以接受日出的洗礼,西侧南朝向的房子可以见证日落。至于东朝向和西朝向的房子,分别只有上午和下午有阳光,且西朝向的房子西晒严重;而西北和东北朝向,最好的情况也只是在日出和日落两个时间段有点阳光!
② 楼间距如果前面有遮挡,再好的朝向也会打折扣。所以,楼间距很重要!国家规定的最小楼间距参考下图:即:多层(4-6层及以下)与多层建筑间距为6米;多层与高层(12层及以上)为9米;高层与高层之间为13米。不过,即使是楼间距达标的房子,底层的采光时间会很短,如果想要更好的采光,建议购买房屋1/3高度以上的房子。
③ 开间进深比开间指的是房子采光面的宽度,一般指东西向的距离;进深与开间垂直,一般指的是房子南北向的距离。
开间和进深的比例约1:1.5左右较合适,这样的房子比较方正,如果进深过大开间过小,会影响采光,房间内会比较暗;进深偏小,开间过大,则不利于房间保温。
▲ 开间进深比约为1:1,采光较好
▲ 开间进深比约为1:2.5,采光较差如果你家的房子采光不是太好,也可以通过后期装修来改善。
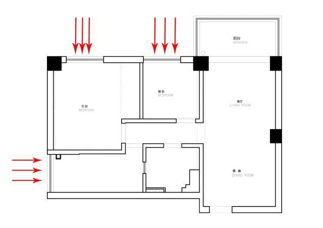
2、通风我们所说的“南北通透”,就是指房子的通风比较好。南北方向都有窗户,才能形成空气对流。
同一楼层四套房子一字排开,中间无遮挡,既使是中间户,也因开放的连廊保持南北空气对流。除了上面这种南北对侧通风的房子外,还有相邻通风和单侧通风的房子:
△相邻通风南边有窗,北边没有,但是东西侧有窗,这样的通风条件,在中间户中居多。房子四个面只有一个朝南面有窗户,单向通风的通透度是最差的,小伙伴们要慎重选择!
△单向通风3、布局房子布局主要看两方面,一是各功能区的空间大小是否合理,另一个是各功能区的位置分布是否合理。① 空间大小好的户型,每个空间的面积大小都比较合适,对于家庭住房来说:>客厅面宽在3.6m+,面积在14㎡+比较合适。>主卧面积在14㎡+,可放下2m宽的双人大床。>次卧面积在9㎡+,可放下1.5m宽的单人床。>卫生间的大小应在4㎡+,比较合适。>厨房在5㎡+,比较合适。>不过,如果你看好的房子,其他条件都很完美,只有个别小空间有瑕疵,也不用太担心,可以通过设计改造来优化。
推荐阅读
- 造纸|生活用纸,黄卫生纸真的好于白色卫生纸吗?来听造纸员工怎么说!
- 管道|为什么说:再穷也不买二层?了解这些弊端之后,就知道多糟心了!
- 购房置业|经济学家:老百姓60%的钱花在房子上很危险!网友:说得很对
- 购房置业|为什么买房不要买靠边的房子?这些问题要注意,开发商不会告诉你
- 购房置业|呼市人为什么这么期待第四代万达广场—城南万达广场
- 验房|自然人代开核定个税0.5%,为什么自己去当地代开时却是税率40%?
- 购房置业|为什么买房要牢记“远二近三”原则?懂行的人都这么做,全国通用
- 哈尔滨|东户房和西户房“区别”在哪?听听建造师说完,庆幸知道的早
- 广州市|“2亿的房奴”与“2亿的租房人”,谁活得潇洒,内行人说出了实话
- 房价|未来2-3年,41.5%的城市家庭会面临什么问题?王石真“说中”了?
