柜体|89㎡ 黑白灰的现代感加上原木的温暖,不知道这样的设计你喜欢吗?
每个人的家都是生活层次与个性品味的折射。有的人喜欢厚重传统的中式家居风格,而有的人却喜欢简约现代的日式风格。
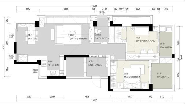
以下的案例来自一对年轻情侣刚入手的刚需房,房子面积89平方米,三室一厅。两人对于房子的最大要求是满足最大化的收纳功能,家居风格不要带着浓墨重彩的修饰,要求舒适和温暖,清爽而不腻。
在经过设计师改造后,全屋收纳面积约等于12.77㎡,体积约占30m3左右,收纳布局合理,空间利用率高。装修风格上,整个家的基调统一选择用黑白灰色+原木色,打造极简的风格,在设计上突出流畅的线条感。
入户后我们可以看到,整个客厅采用大量低饱和度的灰色调, 令整个家显得素雅干净。屋内的窗帘采用的是隔热透光的智能电动蜂窝帘,可让室内保持恒温,隔热保暖,又带点高科技感,非常符合小两口的需求。整体空间凸显活力,极富层次感。
灰色的沙发搭配上原木色的茶几,非但没有让空间的色调变沉重,反而看上去很温馨,素雅。底下铺上棉质地毯,充满细腻的质感,高级感十足。
电视墙的部分,选择了“半露半藏”,不仅满足了收纳功能,还在一定程度上增加了美观度。用白色搭配原木色,简约中又给人一种很舒服的平静感。平实而精致,自然且质朴。这样的搭配,不仅有颜值,对于89㎡的家来说,收纳能力也增强了不少。
客厅部分还打造了一个原木色榻榻米飘窗,和电视墙的柜体完美结合,整体设计干净利落。悠闲的时候还可以躺在上面看一本书或是欣赏窗外的夜景。为了舒适感,飘窗台面还做了凹槽,将与沙发同色系的软垫嵌入进去。看上去很有格调,也很别致。
开放式厨房,整体运用了大理石纹瓷砖,搭配纯白色的柜体,显得很有档次,也提升了整个空间的质感,让空间多了一份天然的淳朴。整齐的厨房柜体设计,可以收纳大量的物品,不仅用于摆放调料、还能放下咖啡机、面包机等小家电。
为了满足业主需要增加收纳功能,设计师在餐厅的空间增加了一个白色亚克力柜门,与餐桌融合,实用又美观。餐桌选用1.8米的黑胡桃木餐桌,简约且环保。木蜡油擦涂的工艺,细腻丝滑,有一种与生俱来的高级感。餐桌的顶部用了黑色的多头灯增添现代感,同时也采用了纯铜灯头作为点缀色,在灯光的搭配上,使得餐桌上的食物更加垂涎欲滴,激发人的食欲。
卫生间的空间相对比较狭小,所以选择用浴帘取代淋浴房,避免空间出现挤压局促。大理石地面配大理石纹砖,营造出一种平衡的美感。加上智能马桶的使用,让居家幸福感指数加倍增长。
洗漱区的地方采用了洁白的一体台盆 + 整面墙大镜子,空间至少显大1倍。不仅能满足日常洗脸、刷牙的基本需求,还增加了一定的收纳功能,避免家里的洗漱用品摆的哪里都是。干净、美观,不显杂乱,才能大大提升卫生间的设计格调。
推荐阅读
- 屋主|56㎡小户型老房改造,小而美的设计!
- 现代风|168㎡现代风,带着浓郁的归属感与愉悦感
- 深色|155㎡简约风,承载着三代人的生活,不花哨让家务少一半
- 混淆感|146㎡北欧经典白色三居室,诠释令人心醉的优雅
- 饱和度|173㎡轻奢新中式,古典和现代的碰撞,唯美浪漫!
- 背景墙|97㎡现代风,以时尚打造空间,以新颖突出特点
- 地板|160㎡四居室,玄关比我家卧室都大,这才是真正的低调奢华有内涵
- 棚户区改造|开盘预告|合肥又有6盘要加推,均价1.39-2.54万/㎡全都有
- 小房间|参观140㎡大婚房,朋友都夸餐边柜有档次,我却更喜欢主卧的飘窗
- |73㎡复古风两居室,年轻夫妻的高品质生活
