卫生间|三款农村住房设计图,适合11米×8米的宅基地,收藏好开春就建
建房来说对于每家每户都有自己的想法,一家人要反复商量,还要跟街坊邻居沟通,跟上边申请宅基地,所以在建房的时候要多琢磨,参考别人的房子,多听别人的建议,尽量让自己的房子造型美观,内部舒适实用。今天要分享给大家的是三套11米*8米的农村房屋设计图,您也可以提出意见,我们会根据大家的意见来设计修改。
别墅户型一:110平米三间两层农村别墅房屋设计图
图纸介绍:本方案为110平左右三间两层农村别墅房屋设计图,户型经典、外观造型适合农村自建。
别墅效果图展示
占地面积:11.94m*8.94m,107平方米左右;
建筑层高:二层;
建筑高度:8.80米(含屋顶);
设计功能:
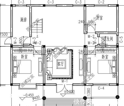
一层别墅户型:客厅、餐厅、厨房、卧室x3、卫生间;
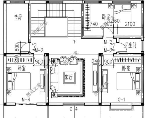
二层别墅户型:客厅、卧室x3、书房、卫生间;
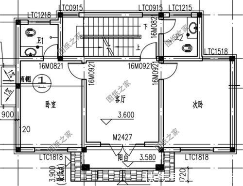
别墅一层户型图展示
别墅二层户型图展示
别墅户型二:11*8米三层别墅房屋设计图
图纸介绍:本方案为11x9三层别墅房屋设计图,含效果图片,本方案户型简单、实用,小户型设计,三层带大露台。
别墅效果图展示
占地面积:11.0m*8.8m,97平方米左右;
建筑层高:三层;
建筑高度:11.0米(含屋顶);
设计功能:
一 层:客厅、餐厅、卧室、卫生间;
二 层:休闲区、卧室x4、卫生间;
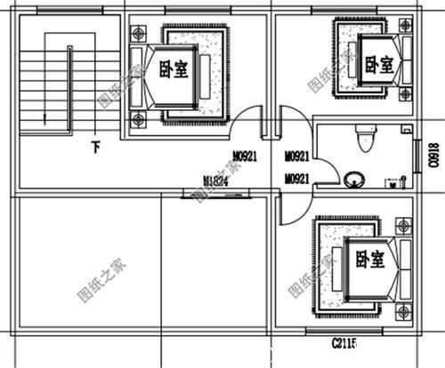
三 层:卧室x3、卫生间、大露台;
别墅一层户型图展示
别墅二层户型图展示
别墅三层户型图展示
别墅户型三:实用三层新农村住宅设计图
图纸介绍:本户型为100平米左右实用三层新农村住宅设计图,采光好,卧室多,外观造型美观,布局实用,十分适合农村自建。
别墅效果图展示
占地面积:11.9m*8.6m,100平方米左右;
建筑层高:三层;
建筑高度:11.8米(含屋顶)坡屋顶;
设计功能:
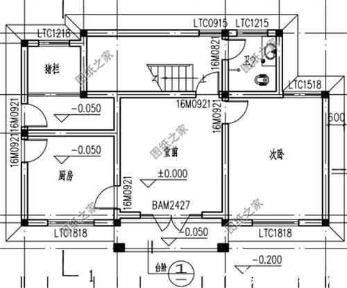
一层:猪栏、厨房、堂屋、次卧、卫生间;
二层:卧室、客厅、次卧、2间卫生间、阳台;
三层:露台、客厅、次卧、卫生间;
别墅一层户型图展示
别墅二层户型图展示
别墅三层户型图展示
【 卫生间|三款农村住房设计图,适合11米×8米的宅基地,收藏好开春就建】以上就是11*8米三款农村住房设计图,户型简单、实用,小户型设计,十分适合农村自建。
推荐阅读
- 卫生间|129平现代美式三居室,打造出一个舒适又温馨的美式家
- 收纳|去邻居家参观才知道,卫生间不装柜子这样设计,防潮耐脏好清洁
- 建房子|面宽11米, 进深16.5米的农村三层别墅, 前后有花院还带车库, 完美!
- 卫生间|什么才叫好户型?来看看这5个标准,你家房子符不符合?
- 别墅|参观亲戚上海的豪宅,别墅硬是住成农村房,真是糟蹋了好房子
- 卫生间|房屋装修6大暗坑,哪个踩了都会导致返工,希望你没踩到。
- 购房置业|今年起,农村老家的老房子,统统按照“新规”处理,子女提前知晓
- 修建|精选10套三层户型图纸,占地面积均不足百平,尤其适合新农村修建
- 上海市|2022年农村人要“享福了”?实行按户补贴,跟村民们的房子有关
- 家庭成员|卫生间进门洗漱台,中间马桶,里面淋浴,怎么装?有哪些设计方案?
