洗衣机|68平的精致两居室,独居小妹妹真懂生活,双面柜的设计非常巧妙!
这是一套68平(使用面积)的户型,装修不含家电就花了近30万,房子位于深圳,业主从事教育行业,典型了文艺活泼小美女。她向往着自由、舒适、实用的家具环境,喜欢精致的生活方式,希望未来的新家能够满足基本生活需求外,还要装下自己的兴趣爱好。


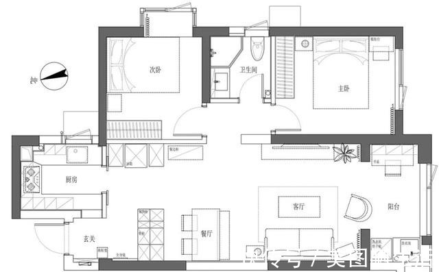
玄关面积非常有限,不足4平的空间需要容纳所有的玄关功能,隔断式的设计有助于室内私密性的增强,为了提升室内的采光,将柜体部分结构设计成镂空造型。
穿衣镜并未选择规则的造型,搭配上一侧的金属挂钩,体现出空间活跃的氛围,同时又满足了进出门收纳及仪容整理的需求。
再来看看这款部分结构为镂空的玄关柜,有效的改善了空间的通透性及采光需求。
阳台纳入到客厅,扩大了室内的面积,又能改善客厅区域的采光,原木色的地板+编织的地毯+无主灯的设计,彰显出空间清新又简约的颜值效果。
都说客厅区域的背景墙最难设计,而她家的背景墙没有任何的装饰,也没有复杂的造型,纯白的墙面反而觉得更加时尚,军绿色的沙发配上原木色的茶几,营造出一幅复古又清新的文艺范。 
沙发一侧的壁灯成为了墙面唯一的装饰,可调节的安装方式,便于日后照明的灵活使用,底部办法的书架同时又兼备零食收纳的功能,实用性高、设计感强。
电视背景墙与沙发背景墙一样都为做任何的修饰,因此电视成为了核心,观影的时候显得更加轻松。
电视背景墙一侧的阳台区域,摆放了一张小巧的原木书桌,顶部安装的置物板正好用来摆放平时收藏的一些手办。
阳台的另一侧设计了吊柜+洗手池+地柜,靠近客厅墙垛的一侧预留出了洗衣机和烘干机的位置,墙垛的尺寸刚好遮挡住洗衣机,室内看向阳台会显得整洁。 
餐厅与客厅是互通的,餐桌餐椅都靠墙摆放,原木色的家具成为了室内的重点,餐边柜既是玄关柜,双面柜体的设计实现了一物多用的理念,和靠墙的成品柜搭配灵活增补餐区收纳
厨房设计成U型布局,冰箱布置在了门外的柜体内,嵌入式的摆放方式维持了立面的平整效果,双开的玻璃门既能阻止油烟的散漫,又不影响光线的穿透,台面设计成高差方式,更有利于日常烹饪活动的进行。
虽然平时都是独居,但是依旧保留了次卧的功能,偶然间亲友来访也可以暂住一宿,不过大多数的情况下,次卧都被小妹妹用于衣帽间的功能。
推荐阅读
- 屋主|56㎡小户型老房改造,小而美的设计!
- 春节|如果能重来,阳台一定“9不装”,并非迷信,是过来人的经验教训
- 装修|乔迁新房3月以泪洗面!当初的不理智,连犯15个极品装修坑!作孽
- 现代风|168㎡现代风,带着浓郁的归属感与愉悦感
- 深色|155㎡简约风,承载着三代人的生活,不花哨让家务少一半
- 混淆感|146㎡北欧经典白色三居室,诠释令人心醉的优雅
- 造纸|生活用纸,黄卫生纸真的好于白色卫生纸吗?来听造纸员工怎么说!
- 对象|廉租房和公租房的有什么区别?
- 饱和度|173㎡轻奢新中式,古典和现代的碰撞,唯美浪漫!
- 小钱|游点好笑!收手机的新方式,一抓一个准!这老师怕是柯南看多了?
