厨师|男厨师的新家,家具齐全耐用,全屋明亮舒适,让人爱上回家的感觉
男厨师的新家,家具齐全耐用,全屋明亮舒适,让人爱上回家的感觉
今天和大家分享的这个房屋是一个男厨师的新家,房屋的男主人之前是在五星级饭店做厨师,后来选择了自己创业从一个小饭馆慢慢的做大,现在业主家的店铺也是附近很多人都很喜欢的一家了。房屋的女主人则是经营着一个很文艺的花店,两个人一个务实一个浪漫,也是过着很多人羡慕的小日子。在装修新家的时候两个人也是很用心,只要有时间就会过来监工,设计师遇到问题的时候也可以和他们一起商量,整个合作的过程也是十分的顺利,新家家具齐全耐用,房屋明亮舒适,让人爱上回家的感觉。
房屋户型:四室
房屋面积:139平方米
装修预算:30到50万元
所在城市:深圳
设计师:李文烨
主要建材:水泥刷漆、仿石纹磁砖、美耐板、木皮、压克力文字、金属文字、超耐磨木地板、超白玻璃+大理石纹PVC大图输出、清玻、玻璃贴纸、水晶压克力板、金属造型架
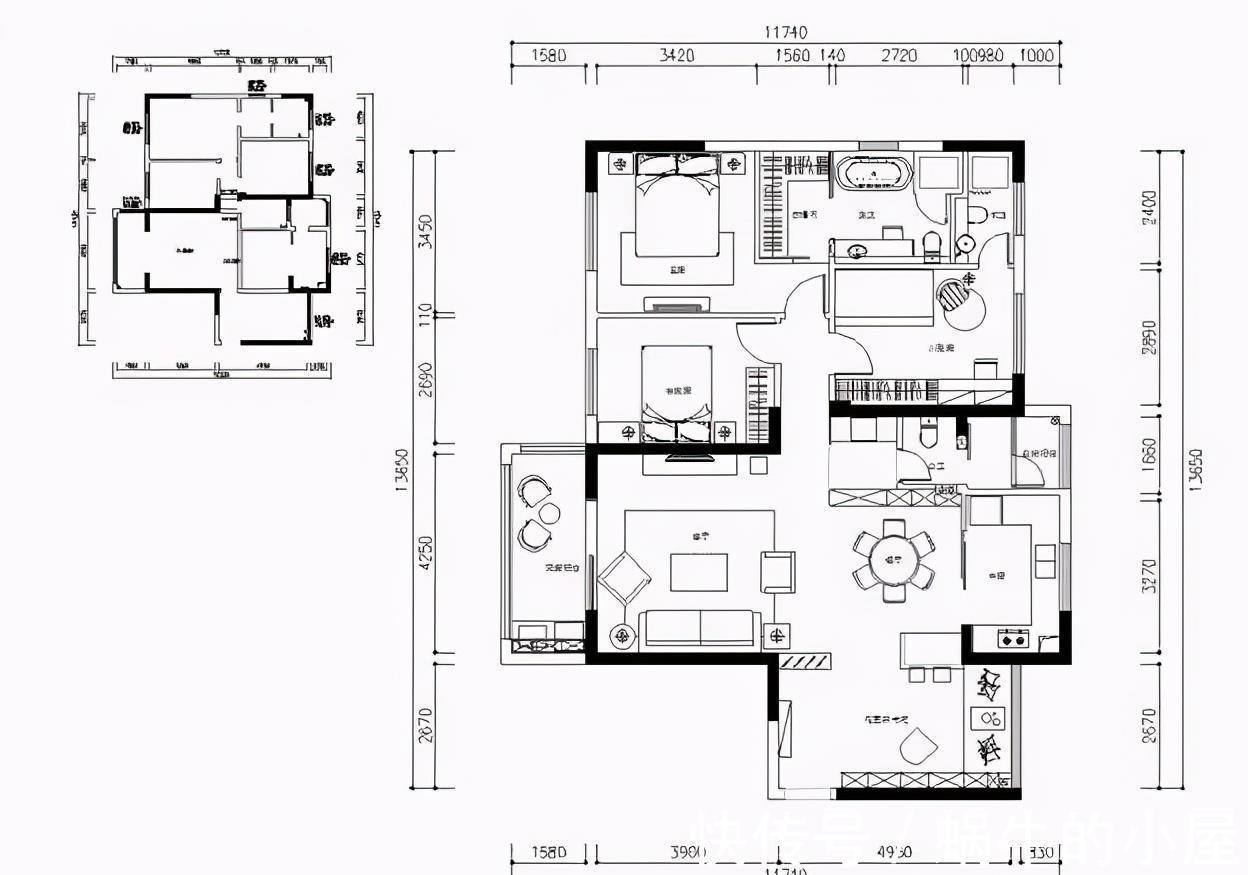
【户型图】
家里的户型方正南北通透,是属于很受欢迎的一个户型,装修的时候也会很简单,不需要对结构做出调整就可以直接开始装修了,考虑到房屋的男主人是一个专业的厨师,所以在装修厨房的时候也是让男主人提出了很多意见,保证做到让业主满意。另外对家里很多地方也做出了一些调整,达到了最适合入住的效果。

【玄关】
设计重点:多功能休息区
进门的位置将入户玄关和花园结合在了一起,扩大了玄关的利用面积,让进门的区域变成了一个多功能的空间,除了满足日常的换鞋和放置衣物的需求以外,还可以作为一个临时的待客和休息区域,等有了小孩子之后,也可以作为孩子的游戏区域。

【厨房】
设计重点:设备齐全
厨房是根据男主人的需求来打造和设计的,厨房不仅准备了洗菜和炒菜的区域,还设计了一个电器柜,用来放置烤箱、微波炉、洗碗机等厨房电器,厨房面积不大设备却很齐全,完全可以满足业主的需求,自己在家就可以做出各种美食。
【餐厅】
设计重点:设计餐柜
【 厨师|男厨师的新家,家具齐全耐用,全屋明亮舒适,让人爱上回家的感觉】餐厅的旁边设计了一个带有洗菜池的餐柜,方便吃饭的时候洗手,平时清洗水果等也会很方便。

温润的胡桃木桌椅也营造了一个温馨舒适的用餐环境。

【客厅】
设计重点:休闲放松
整个客厅的色调轻松简约,搭配上大屏的电视机和懒人沙发,营造了一个舒适轻松的休息空间,可以让人得到最大程度的放松。

推荐阅读
- 屋主|56㎡小户型老房改造,小而美的设计!
- 春节|如果能重来,阳台一定“9不装”,并非迷信,是过来人的经验教训
- 装修|乔迁新房3月以泪洗面!当初的不理智,连犯15个极品装修坑!作孽
- 现代风|168㎡现代风,带着浓郁的归属感与愉悦感
- 深色|155㎡简约风,承载着三代人的生活,不花哨让家务少一半
- 混淆感|146㎡北欧经典白色三居室,诠释令人心醉的优雅
- 造纸|生活用纸,黄卫生纸真的好于白色卫生纸吗?来听造纸员工怎么说!
- 对象|廉租房和公租房的有什么区别?
- 饱和度|173㎡轻奢新中式,古典和现代的碰撞,唯美浪漫!
- 小钱|游点好笑!收手机的新方式,一抓一个准!这老师怕是柯南看多了?
