全景图|一入她家才知道,什么叫美观与实用并存,优雅与浪漫兼具,超有品味
作者:美家手记
最近刷案例时,发现江苏无锡有一位95后小姐姐的婚房,效果那叫一个整洁,就忍不住拍照给大家伙瞅瞅,因为真的超美、超有品味。
总之,一入她118的家,才知道什么叫美观与实用并存,优雅与浪漫兼具,不信给大伙介绍一下吧。
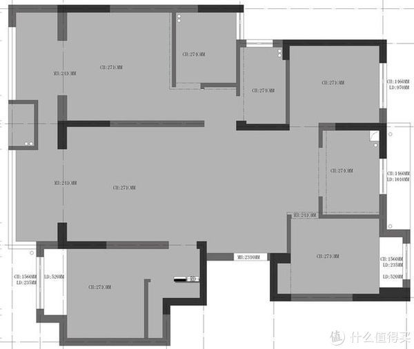
平面图

户型总体周正,另外客餐厅为一条南北连贯的横线,好处在于通风效果好,夏天有沁人心脾的穿堂风,住着自然也就舒适些。
入户
现在看实景。推门而入是玄关,左侧定制了一组顶天立地的鞋柜,配上间距适中的隔板,可以收纳大量的鞋子,包括其它杂物。另外,白色的免拉手柜门,不仅看着看干净利索,而且弱化了体积感的同时,有利于放大空间并提亮空间。
客厅
客厅先给大家看一张全景图。受制于现在的住宅,层高普遍在2.85米左右,不足3米,就没有做繁杂吊顶,然后中间只做基层处理的同时,刷上白漆,再配上L型的黑色轨道灯槽做无主灯设计,效果一下子显得敞亮大气不少。
尤其是这清新淡雅的配色,结合一众家具,以及对面阳台仙气十足的白色纱帘,一个出尘脱俗的氛围也就出来了,并且美观与实用并存,优雅与浪漫兼具,超美、超有品味。

补充一下左侧的电视墙,只刷漆不造型,如此既经济实惠,又简洁大方。
另外是底部悬空的电视柜,好处在于,一方面便于清洁打理卫生,另一方面显得空间轻盈灵活。
沙发墙的话,为避免单调,女主选用了饰面板代替常见的乳胶漆,这样既为空间,增添了一丝温润自然的气息,同时看着也比单纯的只刷漆,要更有质感。
【 全景图|一入她家才知道,什么叫美观与实用并存,优雅与浪漫兼具,超有品味】家具方面,这里选用了灰色的科技布沙发,搭配结构轻巧的黑白双拼茶几,效果也不错。至于其它就是沙发右侧点缀的绿植了,除了净化空气,还能为室内增添源源不断的生机与活力。
客厅附带的休闲阳台分两面设计,其中右侧定制了一组顶天立柜的同时,在柜内预留了叠放洗衣机和烘干机的位置,如此柜门合上时,看着干净整洁不突兀,自然也就更加美观。而柜内最底部的地方,刚好放些诸如洗衣液之类的东西。
至于阳台左侧,同样定制了一组柜体,不过这里以收纳杂物为主,基于此就不再赘言了。
餐厨
餐厅直接摆放岩板材质的餐桌,配上细腿结构的餐椅就可以了,这样不仅显得空间灵活又大方,而且简约颜值高的同时,看着还特别有质感。
其它的话是对面的厨房,直接设为开放式的U型结构不仅敞亮,而且如前所述,和客餐厅形成了一条贯穿南北的线,这样既能实现空间对流的效果,利用率也高。
推荐阅读
- 中海珑悦府|中海珑悦府好不好?置业顾问从项目现场发回新组图
- 修建|精选10套三层户型图纸,占地面积均不足百平,尤其适合新农村修建
- 洗衣房|这三款农村四合院设计图让不少城里人羡慕,父母看了也欢喜
- 组图|未来城市好不好?置业顾问从项目现场发回新组图
- 楼盘|现代·森林国际城|仙北新拍现场图片,实时了解楼盘新动态
- |占地8.38X9.8米,小宅基地怎么修
- 搬家公司|乡住免费图纸土建造价参考88万面宽15.5m 进深14.4m 三层新中式别墅
- 露台|推荐5款三层别墅设计图纸,最适合农村建的房子
- 效果图|临平大运河国家文化公园核心区块设计初审方案出炉
- 效果图|大熊想回自己家,竟然要戴上面具,这究竟是为什么呢
