基本信息建筑面积:388.7㎡基地面积:390㎡建筑尺寸:15m×20m占地面积:245㎡户型概况:4室2厅4卫1厨3衣帽1阳光1茶室1工艺1储备1书房建筑结构:砖混结构参考造价:58万元(不包含室内装修费用)别墅设计:简约时尚现代别墅,庭院美景让全村人羡慕。

业主一直都不想在城里买房,于是就把家里的老楼房翻新,好让父母住的也比较舒适,业主追求时尚大气感,最终就决定把建筑定为现代风格别墅。

建筑俯视效果图

建筑整体为现代风格,造型相对比较简单,外立面选择文化石、偏灰色的石材和白色真石漆作为主体,使整个别墅更加的大气时尚。

房屋设计为平顶,为了使立面造型看起来更加的时尚符合现代感,二层露台处的石墙围栏与墙相互呼应,使得建筑有了起承转合。

建筑二层有个露台的设计,闲暇时间露台上喝喝茶聊聊天也是一种十分惬意的生活。两层现代别墅,自带阳光房和大露台,更让人心动的是最美庭院。

建筑院门采用木质门,门上的纹路也符合现代感,让人感觉很有特点。
庭院里最特别的是阳光房,整体都被玻璃包围,即使是在下雨天也可以坐里面休息。
【 效果图|大熊想回自己家,竟然要戴上面具,这究竟是为什么呢】

阳光房外再设计了一处休息地,使用碎石遮挡,使休息地也有私密性。
院内植物以颜色各异的树木为主,配合一些竹子和其他小型绿植,以留白和错落的布置在随性中让庭院景观融为一体。
庭院给人一种很开阔的感觉,简单的装饰与建筑主体简约的线条和造型相互衬托,风格的近似让建筑和庭院相辅相成。

建筑正立面效果图
建筑左立面效果图
建筑右立面效果图

建筑背立面效果图

一层主要用作老人房和公共区域。餐厅与客厅相连,开阔的划分方式让客厅仍能享受到景色的美好。老人房做成套间形式,并与楼梯相邻,尽最大可能方便老人日常使用。

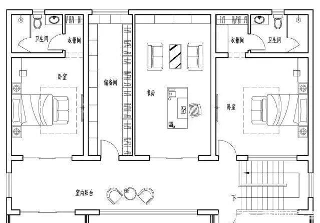
二层有两间卧室,都带有衣帽间和独立卫生间,满足一家人的居住。书房设计的较大,室内阳台也是欣赏美景的最佳位置。
推荐阅读
- 效果图|临平大运河国家文化公园核心区块设计初审方案出炉
- 装修|头一次见有人这样包下水管,太聪明了,看完想回家砸了重装一个
- 山西省|年少不知老家好,如今想回农村盖个房子,没有宅基地就很令人头大
- 效果图|现代风格装修效果图,102平三室超精致,整体效果特棒,像别墅!
- 效果图|120㎡3房2厅户型装修图,白色、木色与灰色的搭配,真时尚!
- 大理石|见到朋友家里这样的橱柜,懊悔我家装早了,想回家砸了重装
- 效果图|越来越多人阳台不用来晒衣服了,现在都流行这么装,太有才了
- 购房置业|服了,居然想回县城买房?
- 飘窗|头一次见有人卧室装这种床,实用又不占地,看完想回家拆了重装
- 婚房|135㎡现代轻奢风婚房,被总说是效果图,其实你家也可以这样
