房子|在农村建一座这样的房子,你们村会效仿吗
在农村,建房子前都是去看看十里八乡谁家的房子最好看,然后就模仿着建,要是在农村建一座下面这样的房子:错落有致的坡屋顶,高大上的落地窗,被文化石装饰着的外墙,虽然造型简单,却处处充满着时尚、现代的味道。这样的房子,会成为村里新的效仿对象吗?
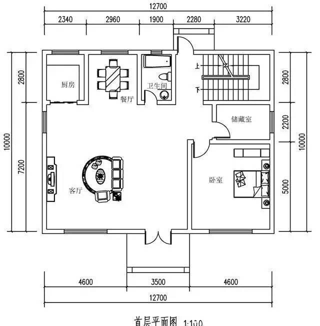
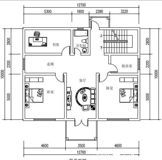
平面布局图:
此户型客厅空间较大,根据自家需求,可做成挑空客厅,也可以将上面部分做成卧室,此户型就是选择了第二种做法,以满足更多居住的需求。
此户型共有三个卧室,一层一个位老人房,二层两个,并配有书房和娱乐室,适合年轻人居住。
【 房子|在农村建一座这样的房子,你们村会效仿吗】在农村建一座这样的房子,你们村会效仿吗?
推荐阅读
- 住宅|现在买房,选“高层”还是“低层”好专家20年后差别很大
- 楼市|房子降价对楼市而言反倒是件好事
- 购房置业|经济学家:老百姓60%的钱花在房子上很危险!网友:说得很对
- 房贷|“重启”拆迁?这2类房子或全拆重建,两类人受到影响
- 客厅|参观向华强和陈岚的豪宅,房子层高太矮了,住着不压抑吗
- 缴存基数|@长春人 2022住房公积金缴存基数有调整 详解全在这
- 大门|房子大门万万不能朝这地方开,师傅看了摇头,怪不得我家越住越穷
- 购房置业|为什么买房不要买靠边的房子?这些问题要注意,开发商不会告诉你
- 炒房|房子有多难卖?三线城市炒房者:降价20万送车位都卖不掉
- 建房子|面宽11米, 进深16.5米的农村三层别墅, 前后有花院还带车库, 完美!
