图片|精选乡村小别墅设计图片欣赏( 二 )

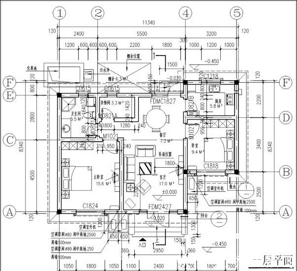
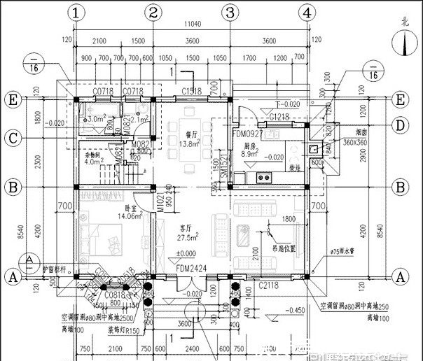
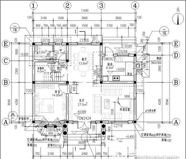
户型四:
地基: 8m×12m
占地面积:88.7平米,总建筑面积:220.9平米;

四、精选小成本户型
如果感觉以上房屋建筑成本太高,手头又没有足够的资金,可以考虑以下户型:
户型一:
地基:12m×9m
占地面积:80.3平米,总建筑面积:80.3平米;
三大材料用量估算:水泥22.85吨,钢筋2.77吨,多孔砖57.702立方米;
户型二:
地基:11m×9m
占地面积:89.96平米,总建筑面积:185.92平米;
三大材料用量估算:水泥44.07吨,钢筋6.544吨,多孔砖90.525立方米;

户型三:
地基:11m×10m
占地面积:89.66平米,总建筑面积:174.61平米;
三大材料用量估算:水泥40.61吨,钢筋5.929吨,多孔砖88.851立方米;

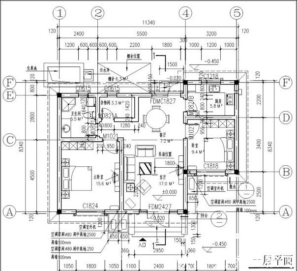
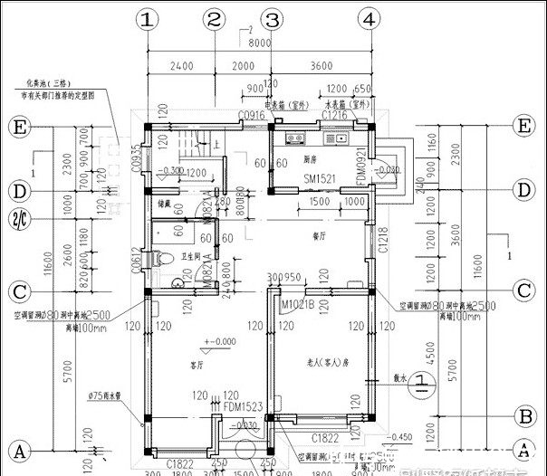
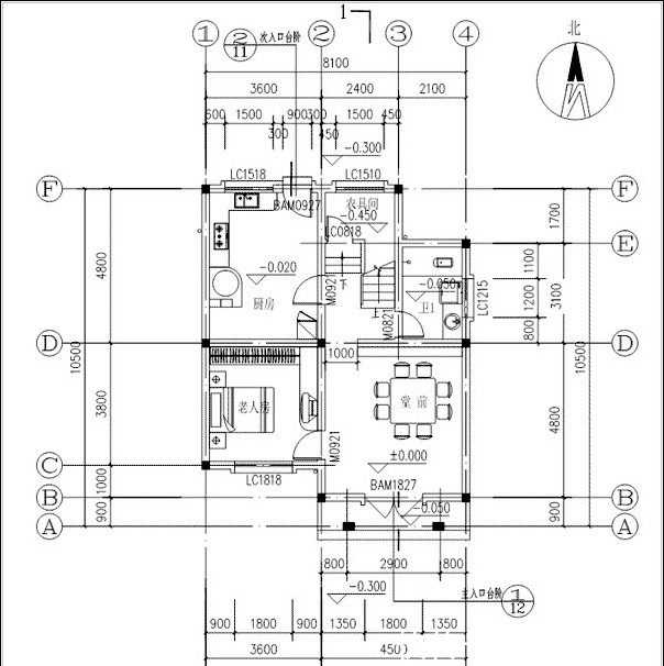
户型四:
地基:8m×12m
占地面积:75.1平米,总建筑面积:119.7平米;
三大材料用量估算:水泥49.47吨,钢筋7.771吨,多孔砖86.371立方米;

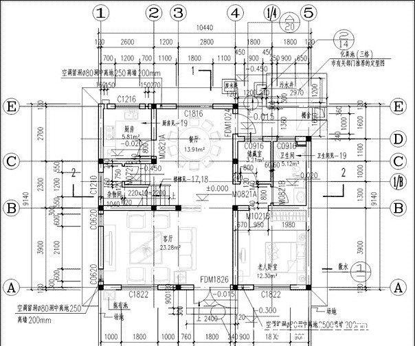
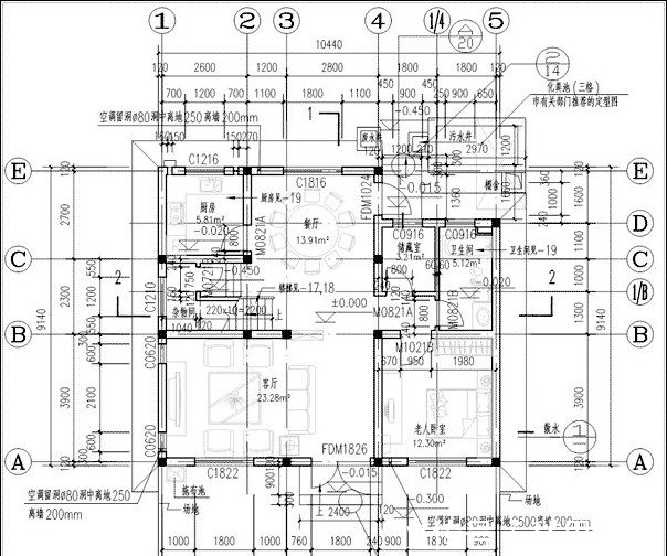
户型五:
地基:8m×10m
占地面积:80平米,总建筑面积:160平米;
户型六:
地基:8m×10m
占地面积:89.60平米,总建筑面积:194.94平米。
【 图片|精选乡村小别墅设计图片欣赏】
推荐阅读
- 楼盘|现代·森林国际城|仙北新拍现场图片,实时了解楼盘新动态
- |占地8.38X9.8米,小宅基地怎么修
- 芝罘|在获得“大额居间费”后,个人所得税要不要交税?怎么交税?
- 安置房|拆迁安置,你该如何选择安置房?
- 玉溪|周末逛合肥万科广场
- 租赁|冲击碾出租租赁,冲击碾压机工作原理
- |造个简单的院子,过朴实的生活!
- 移民|瓦努阿图移民生活及房价
- 收纳|一年卖30亿!呼和浩特《城市年度成交榜》金地江山风华喜提榜首
- 世界500强|碧桂园碧乐城新拍现场图片,实时了解楼盘新动态
