图片|精选乡村小别墅设计图片欣赏
随着房价物价的迅速攀升,很多在外面打工的朋友感觉在城里买一套房子变得越来越艰难了,而且城市里住房面积小,空气质量越来越差;乡下就不一样了,乡下环境好,空气清新,手头有个二三十万就可以建一栋好点的房,再买辆车,生活也可以过得很潇洒。
但目前绝大多数农村建房的师傅没有专业的施工图纸,建起来的房子千篇一律,感觉很土气,没有创新!下面我给大家介绍几款新农村户型图,先展示效果图和首层的平面图。
一、新农村住宅户型
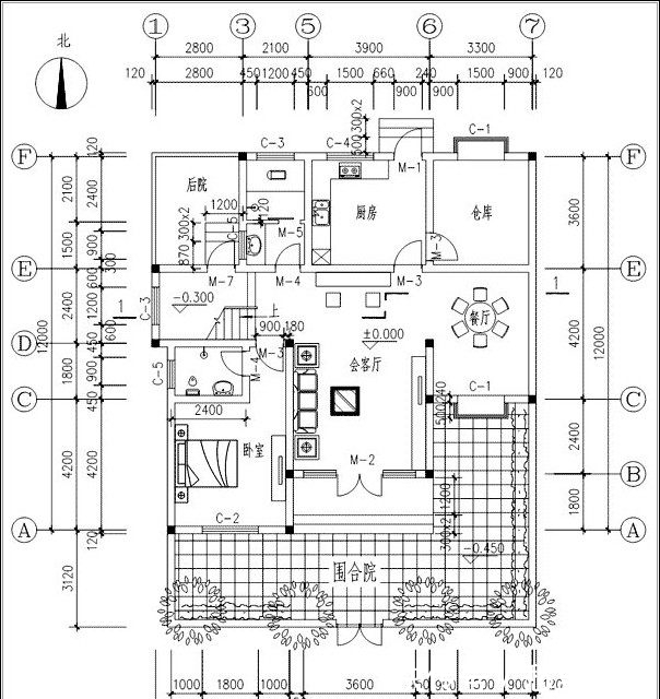
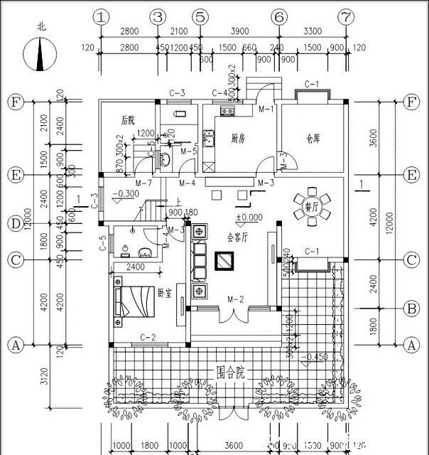
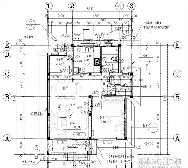
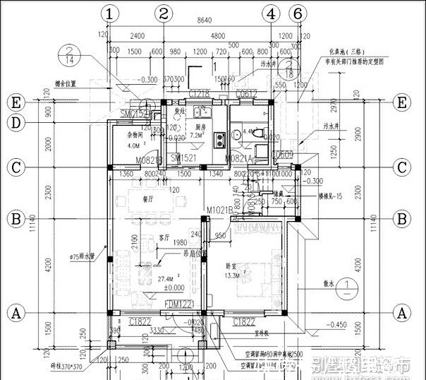
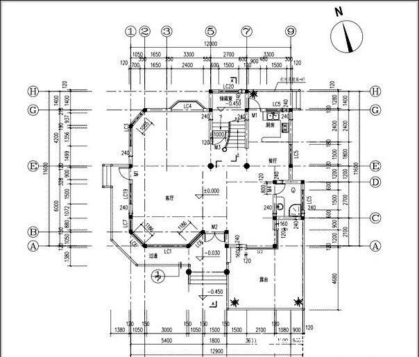
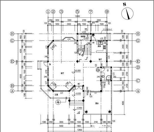
户型一:
地基:12m×12m
占地面积:116平米,总建筑面积:213.53平米;

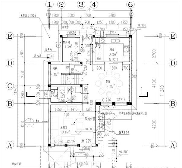
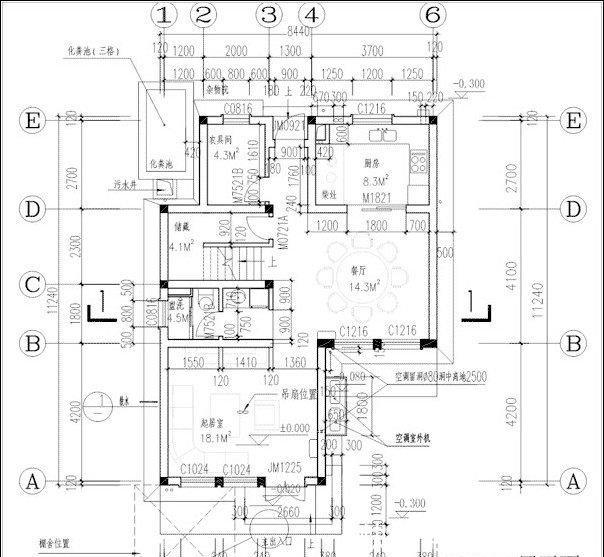
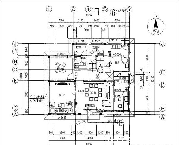
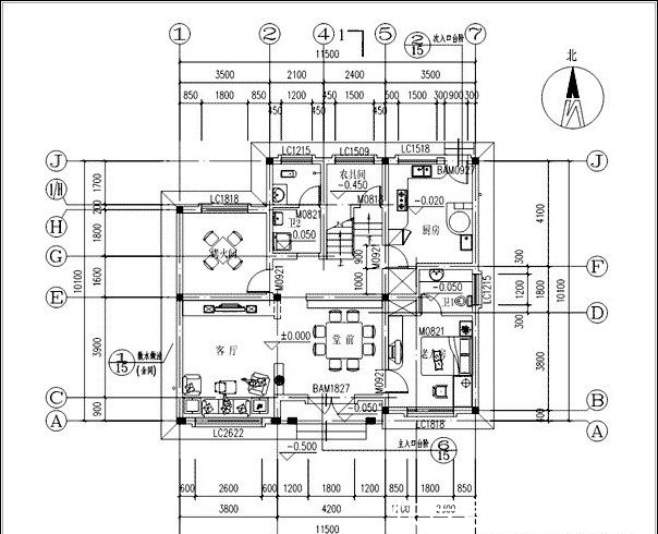
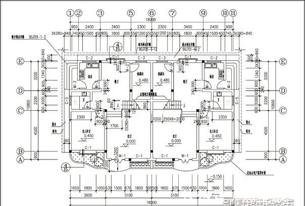
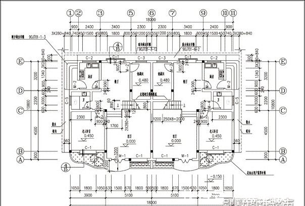
户型二
地基:9m×13m
占地面积:76.60平米,总建筑面积:185.11平米;
三大材料用量估算:水泥44.64吨,钢筋6.932吨,多孔砖85.643立方米;

户型三
地基:9m×12m
占地面积:75.1平米,总建筑面积:119.7平米;
三大材料用量估算:水泥32.28吨,钢筋4.753吨,多孔砖74.179立方米;

户型四:
地基:12m×10m
占地面积:109.68平米,总建筑面积:287.82平米;

二、双拼户型
家里有两兄弟需要建房的可以考虑双拼的,一来兄弟间能有个照应,二来可以节省建筑成本。
户型一
地基:24m×10m
占地面积:178.46平米,总建筑面积:284.2平米;
户型二
地基:19m×12m
占地面积:123平米,总建筑面积:213.2平米;

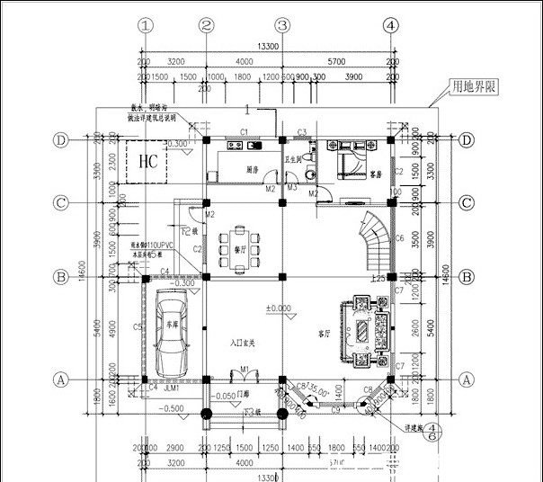
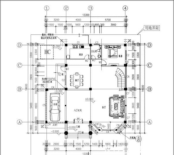
三、独栋别墅户型
独栋别墅即独门独院,上有独立空间,下有私家花园领地,是私密性很强的独立式住宅,表现为上下左右前后都属于独立空间,一般房屋周围都有面积不等的绿地、院落。这一类型是别墅历史最悠久的一种,也是别墅建筑的终极形式。在城市里花50万买一百平米,在农村却可以建这样的别墅:
户型一:
地基:14m×15m
占地面积:147.7平米,总建筑面积:366.4平米;

户型二:
地基:13m×16m
占地面积:130平方米,总建筑面积:310平方米;

户型三:
地基:14m×13m
占地面积:170.38平米,总建筑面积:412.72平米;
推荐阅读
- 楼盘|现代·森林国际城|仙北新拍现场图片,实时了解楼盘新动态
- |占地8.38X9.8米,小宅基地怎么修
- 芝罘|在获得“大额居间费”后,个人所得税要不要交税?怎么交税?
- 安置房|拆迁安置,你该如何选择安置房?
- 玉溪|周末逛合肥万科广场
- 租赁|冲击碾出租租赁,冲击碾压机工作原理
- |造个简单的院子,过朴实的生活!
- 移民|瓦努阿图移民生活及房价
- 收纳|一年卖30亿!呼和浩特《城市年度成交榜》金地江山风华喜提榜首
- 世界500强|碧桂园碧乐城新拍现场图片,实时了解楼盘新动态
