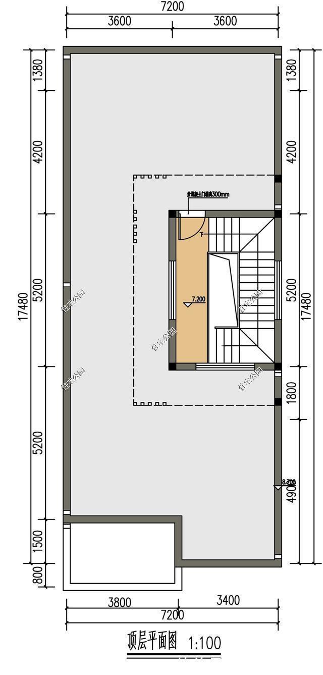
屋顶|面宽窄到仅有7米,农村这样建房,挑空客厅、屋顶晒台全都有
农村建房子的宅基地大多都是方方正正的,但也有很多情况下,地块是狭长类型或是其它不规则的形状,像这种狭长类型的宅基地怎么自建房呢?今天我们便给大家分享一套狭长户型,面宽窄到仅有7米左右,看看是如何做到有挑空客厅、有阳台、有屋顶晒台,简单但又不失格调的乡村别墅。
【 屋顶|面宽窄到仅有7米,农村这样建房,挑空客厅、屋顶晒台全都有】
占地尺寸:7.2m×16.1m。占地面积:115㎡。建筑面积:261㎡。建筑高度:10.5m。
平面布局图:因为面宽比较窄,所以我们设置了两开间,方便居家生活。狭长的空间非常建议大家做成这种开放布局,可以使空间更加敞亮、通透。另外按照业主的要求,房屋东、南、西、北四个立面均可以入户,进出自由不拘束。U型厨房满足功能三分区的要求,烹饪区、洗菜区、备菜区各自独立。
二层南北三卧室,南卧充沛采光舒适生活,北卧设计阳台也进一步提升了居住的舒适度。空间有限,卧室就没必要设计私卫了,每层都有公卫一间,方便生活。
屋顶平台具有无限可能,晒衣服晒粮食这些功能自不必多说,还可以设计一个阳光房,丰富居家生活的情调。但是顶层一定要做好隔热跟防水,这样才能舒适生活。
关注本号,每天都有新户型,还有乡邻晒家,建房省钱小妙招一手掌握。
推荐阅读
- 装修|乔迁新房3月以泪洗面!当初的不理智,连犯15个极品装修坑!作孽
- 施工|面宽均为12米的两栋自建房,简单施工易,造价25万上下
- 烂尾楼|水泥电线杆是如何制造的?里面的钢索有什么用?今天算明白了!
- 成都|双限当道的2022年,成都还有这些豪宅新面孔
- 攀枝花|2.75亿元!四川攀枝花拍卖了两块土地使用权
- 石家庄|144平的面积,无人值守棋牌室,这是如何做到的?
- 建房子|面宽11米, 进深16.5米的农村三层别墅, 前后有花院还带车库, 完美!
- 购房置业|买房界的黄金法则:好房子横向要宽、纵向要薄,多面朝南
- 修建|精选10套三层户型图纸,占地面积均不足百平,尤其适合新农村修建
- 家庭成员|卫生间进门洗漱台,中间马桶,里面淋浴,怎么装?有哪些设计方案?
