寸土寸金|38㎡小户型住下三代五口人,空间丝毫不浪费,功能齐全又温馨!
【 寸土寸金|38㎡小户型住下三代五口人,空间丝毫不浪费,功能齐全又温馨!】在寸土寸金的大城市买房,很多人普通的工薪阶层,奋斗时间都付不起首付。因此有一些追求生活品质的年轻人,买不起大房子就会退而求其次购买小户型。
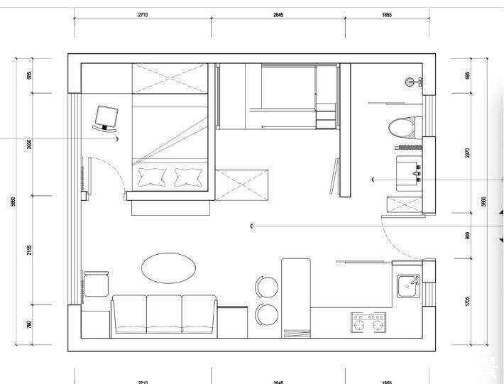
今天齐家安安要分享的是一套套内面积仅38㎡的小户型装修案例,设计师将卧室墙体外移30公分,扩大卧室使用面积,同时定制衣柜、榻榻米和上下床,满足空间尺寸需求。经过设计师的巧妙改造,能满足三代五口人的的功能性居住需求。

进门右手边定制了到顶白色鞋柜,中间与底部的留空设计,不仅让鞋柜更实用还更有层次感。地面以彩色水磨石地砖铺贴,增加活泼感,让视觉空间不紧凑。
厨房面积不大,配置集成灶,最大程度降低油烟问题带来的困扰。U型橱柜功能强大,洗衣机直接嵌入,充分利用空间。
厨房通过两扇玻璃移门和三扇折叠窗,实现空间通透感,既可以阻挡油烟,又不影响光线穿透室内。
折叠窗打开,搭配两把吧台凳,还可以变成吧台使用。既弥补了厨房的操作台空间,也兼具了生活用餐需求。
客厅配置一组转角沙发,既提高生活舒适度,也让孩子有了一块玩耍区。取消传统茶几的布置,挑选了高度60公分的简易桌,可以当茶几又可以是餐桌。
电视背景墙采用吊柜+悬挂式电视柜,作为客厅收纳的补充。旁边设计墨绿色黑板墙,为孩子提供涂鸦的空间。
主卧用榻榻米定制设计,让空间利用率更高一些。站立式的梳妆台搭配吊柜,满足日常收纳没问题。

次卧配置高低双层床,满足了父母及孩子的睡眠需求。折叠玻璃门隔断,不仅间接性扩大了客厅的空间感,也解决了空间采光问题。
小小的空间可以容纳三人居住,除了楼梯柜外,床下还设计了滚轮抽屉,极大地提升了收纳能力。
卫生间设计比较灵活,三分离式格局,满足高峰期的使用需求。水磨石地砖和灰绿色墙砖铺贴,丰富了空间色彩。
以上就是这期案例分享,套内虽然只有38㎡,但满足了三代五口人的居住需求,还是非常不错的,尤其是在寸土寸金的城市,一家人能在一起,就感觉很幸福了。
(本文由齐家安安整理编辑,图片来源于网络,如有侵权请告知我们删除!
推荐阅读
- 屋主|56㎡小户型老房改造,小而美的设计!
- 现代风|168㎡现代风,带着浓郁的归属感与愉悦感
- 深色|155㎡简约风,承载着三代人的生活,不花哨让家务少一半
- 混淆感|146㎡北欧经典白色三居室,诠释令人心醉的优雅
- 饱和度|173㎡轻奢新中式,古典和现代的碰撞,唯美浪漫!
- 小钱|游点好笑!收手机的新方式,一抓一个准!这老师怕是柯南看多了?
- 背景墙|97㎡现代风,以时尚打造空间,以新颖突出特点
- 地板|160㎡四居室,玄关比我家卧室都大,这才是真正的低调奢华有内涵
- 公示|一处体育中心项目、一处小型口袋公园!市北两项目规划公示,配套升级
- 碧桂园|小城市的房住不炒,遇上返乡置业
