储物空间|一家四口新房,鞋柜衣帽一体柜很实用,电视墙更是大气,很满意
对于一个家来说,拥有一套属于自己的房子,按自己的想法慢慢把家装出心目中所想要的效果,给家里小孩一个真正的家,这是一种幸福,也是很多人的梦想。拥有一套房子之后,要什么样去装修呢?如果不知道什么样去装修的话,可以看看屋主家这套新房。
这是一家四口新房,建筑面积达到126平南北通透的户型,家里有两个孩子,刚好满足刚需,而且也给家里小孩一个比较好的生活条件,包括上下学都方便很多。没有请设计师,基本都是按自己的想法装修。拥有独立的入户玄关,设计了鞋柜衣帽一体柜很实用,并且利用电视墙的位置打满了柜子,视觉上更是大气,一家人都很满意。带大家一起来看看,喜欢的话可以参考一下!
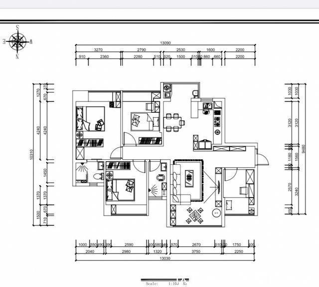
户型图
这是原始户型图,其实正确的顺序刚好换过来,其他空间的布局都是一样的。特别喜欢这样南北通透的户型,各个空间采光与通风都很好。四房两厅,足够满足一家人生活。
这是交房之后,按实际尺寸画出来的户型图。基本与基本的户型没有做任何多大的变动,仅仅做了开放式的厨房,其他都保持原来没有改动。原本动静分区就比较合理,所以结构去布局,效果很容易出来。
入户玄关
从入户大门进来拥有独立的玄关,右边设计了鞋柜衣帽一体柜,可以提供大量的储物空间。空间足够,鞋柜不单单仅仅收纳鞋子那么简单,可以方便收纳衣物帽子等,或者其他的杂物,都是可行的哈。安装了感应灯,晚上进来打开门的时候,可以方便起到照明的作用,更智能化。
换另外一个角度看的话,更清楚看到一些细节了。鞋柜自带换鞋凳,可以坐着换穿鞋子。同时最底下留空位置,可以直接放一些常穿的鞋子,不需要经常打开柜门,考虑非常周到。家里有了这样的柜子,再多的东西都方便收纳。如果你家也是这样的玄关,可以参考一下。
客厅
考虑到家里有两个孩子,需要更多的储物空间。利用电视墙的位置打了柜子,非常实用,视觉上显得更大气。放弃了传统的电视背景墙,而选择了柜式的形式,很是让人满意,更会利用空间。柜子没有安装拉手,免拉手的设计更美观。到时候把电视机搬进来了,效果会更完美表现。
这个角度的话,可以看到完整的入户玄关,鞋柜衣帽一体柜设计,真的值得参考,让人进来眼前一亮,太实用了!
客厅与阳台是打通的,利用阳台的位置定制了一个顶天立地白色的储物柜,可以提供大量的储物空间,非常实用。阳台用玻璃封住,可以遮风也可以挡雨。搭配的沙发坐着很舒服,也比较耐脏。背景墙是硬包的材质,更有质感,即使没有装饰画,也不影响效果。
考虑到家里有两个孩子,所以家具上需要花一些小心思,网购了创意动物造型的小凳子,颜值非常高,选择了一个白色与一个蓝色,刚好满足两个小孩的需求。这种款式的创意动物卡通造型的凳子,真心视觉上很抢眼,坐着也很舒服,可以当小玩具使用呢。不管是放在哪个空间,都是一大亮点!
推荐阅读
- 美好生活|欧哲门窗副总经理周志军:「拓」不忘初心同心同德,成为美好生活空间首选品牌
- 银行|请注意!今日起各地房贷利率普遍下降5个基点 业内预期:部分地区房贷利率或仍有下调空间
- 背景墙|97㎡现代风,以时尚打造空间,以新颖突出特点
- 购房置业|上海女子拍下对楼住户家无敌露台,超大空间网友酸了:买房送操场
- 墙面|过道能''挤''出空间 5种方式帮你充分利用每一寸,档次蹭蹭上涨
- 全屋|次卧空间小,老婆灵机一动不装“床”,孩子一眼就喜欢上了晒晒
- 轻奢风|什么样的生活空间,才算得上是美好现代轻奢风,大道至简
- 购房置业|三四线城市的住房真的值得购买吗?不能一概而论,还是有升值空间
- 箭牌家居第二季全空间定制设计大赛获奖作品公布|定制快讯| 大赛","sex_score":"0","source":"wspuser_3beijing,nbbengnewid_e4563a267737194b97f7d45af8307142,nbbengdu
- 诗意|142㎡现代禅意,儒雅舒适的空间,满屋子的轻松与诗意
