【 诗意|142㎡现代禅意,儒雅舒适的空间,满屋子的轻松与诗意】在这套142平米的房子中,整体空间现代风格的设计基调,在家具与细节软装的布置上加入禅意优雅的元素,通过现代化的设计手法,诗意与情趣兼具,营造出一种现代儒雅的舒适氛围。
玄关

▲玄关对着大门,硬包墙面挂一幅圆形的山水装饰画,布置一个黑色实木端景架,摆上小盆景的装饰,一进门就带来了一种儒雅端庄的高级感。
客厅+餐厅

▲横厅户型的客厅与餐厅,天花吊顶做成一体的设计,四周灯带+中间分布筒灯,并在客厅与餐厅正上方装上水晶金属吊灯,让空间显得更加简洁而华丽。


▲客厅区域地面垫上地毯,布置米白色的布艺沙发、实木框架的布艺坐垫沙发椅,还有圆形的茶几上布置餐椅花瓶,花瓶插上秋意花枝,与耕牛铜艺摆饰品相呼应,也让客厅空间显得更加雅韵端庄。

▲电视墙以诗意画面的图案作为背景墙,为整个客餐厅带来一种雅韵的高级氛围感。餐桌布置在沙发后方,白色石材台面的餐桌,搭配上灰白色的皮艺餐椅,使得用餐氛围也是更加端庄而高贵。
过道

▲电视墙右侧的过道墙面上,挂一幅圆形的金属框装饰画,墨色的画面内容,也为整个大厅区域增添了几分优雅的文墨与档次质感。
书房

▲开放式的书房,靠墙定制书架,摆上陶艺品、茶具与典籍,布置成品书桌椅,呈现出一种雅韵华丽的文墨气息。

▲开放书架与过道墙面的圆形挂画相呼应,也产生了一种艺术优雅的共鸣。
卧室

▲卡其色的卧室空间,在床头两侧加入深色造型与暗藏灯带设计,加入方形的壁灯组合,中间加入两个圆形的装饰,让卧室空间显得更加端庄优雅而档次。

▲米白色的皮艺床头靠背,还有淡灰色的床单与枕头,显得现代优雅而舒适;在床头墙的橘色圆形装饰下,点亮了整个卧室的活泼气质。
次卧

▲次卧空间在床头墙在两侧加入木饰面,中间是一幅花鸟图案的墙布,两侧木饰面暗藏灯带,结合天花的筒灯呼应,让床头墙显得明亮而又层次感。两侧对称的床头柜与床头灯,旁边玻璃门的衣柜布置,布置素雅的床单,也使得卧室显得优雅而实用舒适
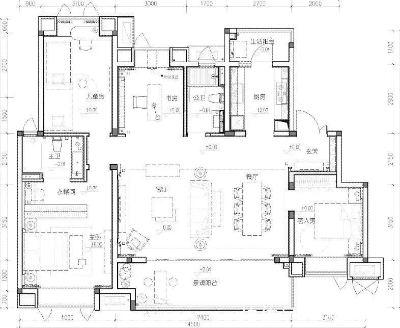
平面布置图

设计:派尚设计,摄影:谭冰 ,点评:设计馆
推荐阅读
- 屋主|56㎡小户型老房改造,小而美的设计!
- 现代风|168㎡现代风,带着浓郁的归属感与愉悦感
- 深色|155㎡简约风,承载着三代人的生活,不花哨让家务少一半
- 混淆感|146㎡北欧经典白色三居室,诠释令人心醉的优雅
- 饱和度|173㎡轻奢新中式,古典和现代的碰撞,唯美浪漫!
- 背景墙|97㎡现代风,以时尚打造空间,以新颖突出特点
- 地板|160㎡四居室,玄关比我家卧室都大,这才是真正的低调奢华有内涵
- 棚户区改造|开盘预告|合肥又有6盘要加推,均价1.39-2.54万/㎡全都有
- 小房间|参观140㎡大婚房,朋友都夸餐边柜有档次,我却更喜欢主卧的飘窗
- |73㎡复古风两居室,年轻夫妻的高品质生活
