娱乐厅|二层半建房图纸设计图,简单又好看,村里人看了都喜欢
【 娱乐厅|二层半建房图纸设计图,简单又好看,村里人看了都喜欢】现代人生活水平越来越高,但还是有很多人选择回老家盖别墅,而且自己盖房子,不像在城里那样有范围限制,在农村可以按着自己的喜好来,喜欢什么户型就建什么户型。相信很多人喜欢二层半的别墅吧,今天介绍的这三款二层半建房图纸设计图,简单好看,造价经济,即使经济有限的家庭也能够盖的起。
款式一:农村二层半自建楼房设计图,户型简单实用




两层半别墅设计图
图纸介绍:这款别墅占地120平方米左右,共有三层。一楼的老人房带有独立的卫生间,二层活动室的设计可以使业主在休息的时候也能得到放松,三楼大露台设计可以满足业主家庭的晾晒需求。
占地面积:10.76m*12.26m,121平方米左右;
建筑层高:二层;
建筑高度:12.647米(含屋顶);
设计功能:
一层户型:玄关、客厅、机房、厨房、餐厅、卧室(带卫生间)、卧室、卫生间;
二层户型:茶室、活动室、卧室(带卫生间)、卧室x3、卫生间、阳台;
三层户型:活动室、卧室x3、卫生间、露台;
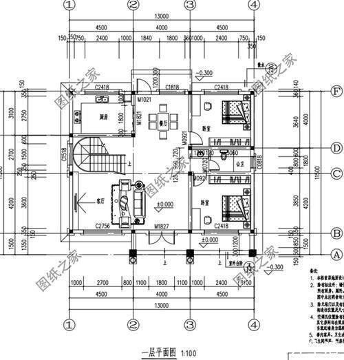
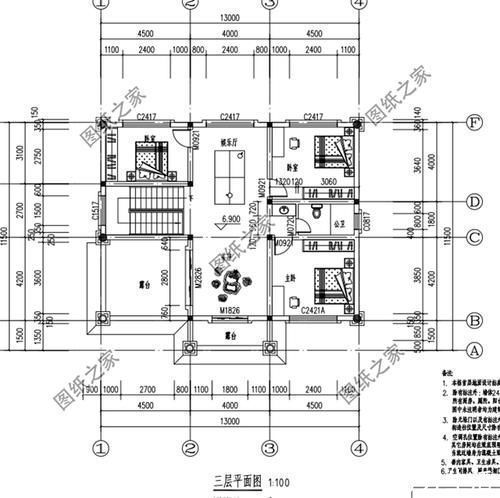
款式二:农村两层半别墅设计图,客厅挑空设计



两层半别墅设计图
图纸介绍:这款两层半别墅客厅挑空,带大露台设计。外观大气时尚,室内布局通透大气,多个卧室满足一家人居住,三楼还设计了一个露台供大家使用。
占地面积:13.0m*11.5m,一层占地136平方米左右;
建筑层高:三层;
建筑高度:12.78米(含屋顶);
设计功能:
一 层:客厅、厨房、餐厅、卧室×2、卫生间;
二 层:客厅上空、客厅、卧室(带书房,卫生间)、卧室、娱乐厅、阳台;
三 层:茶室、娱乐厅、卧室x3、卫生间、大露台;
款式三:农村新中式二层半别墅设计图,占地144平方米左右



二层半别墅设计图
图纸介绍:本户型占地144平米左右,外观造型简单,建造成本也不高,适合自己建,漂亮又耐看;室内功能设计非常齐全,布局大方合理,住着非常舒适,两层总卧室数量6个,足够满足日常生活需求。
占地面积:12m*13.8m,144平方米左右;
建筑层高:二层;
建筑高度:10.5米(含屋顶);
设计功能:
一层户型:客厅、餐厅、厨房、卧室、卧室(带卫生间)、卫生间;
推荐阅读
- 深色|155㎡简约风,承载着三代人的生活,不花哨让家务少一半
- 管道|为什么说:再穷也不买二层?了解这些弊端之后,就知道多糟心了!
- 购房置业|上半年能再买房吗?2个消息接踵而至,央媒定调,答案很明显
- 贵州|利落挺括,12×11米现代二层别墅,4卧2厅好格局开启全新生活
- 农村|13.3×12.5米二层别墅,精致农村住房,带给你雅致的生活!
- 户型|北漂夫妻买下24㎡婚房,柱子4米宽,窗台就占户型面积一半
- 深圳市|原来,价值半个亿的千万豪宅户型是长这个样子的!
- 选房|原来,价值半个亿的千万豪宅户型是长这个样子的!
- 隔断|112㎡清新北欧风,客厅砌个半墙隔出一间书房,2居变3居真实用
- 疫苗|“科兴”回应涉足房地产!半年赚330亿元,最大股东也是日本人
