美耐板|简约风的中式设计,简单又有中式韵味,原来中式也可以这样多元化
简约风的中式设计,简单又有中式韵味,原来中式也可以这样多元化
在我们的印象当中中式风格都是红木家具、水墨元素、山水字画这些带有浓重文化底蕴的感觉,这种固有的印象也让很多年轻人对中式风格望而却步,其实中式风格和其他的风格一样也在不断地发展也在融入新鲜的元素,现在中式风格不仅是对外观的一种刻板设计,也不是让人感觉厚重的色彩,而是一种更为年轻更为多元化的设计。今天和大家分享的就是一个简约风的中式设计,简单当中又带有中式的韵味,让人看过感叹原来中式也可以这样的多元化,也可以成为年轻人喜欢的样子。
房屋户型:三室
房屋面积:103平方米
装修预算:20到30万元
所在城市:莆田
设计师:刘文强
主要建材:镀钛板、美耐板、铁件、灰玻、不锈钢、霓虹灯、木皮、水泥、红砖
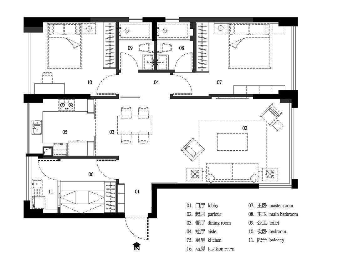
【户型图】
这个房屋是属于方正规整的户型,家里的每一个空间划分的也都比较合理,在装修的时候基本不用对户型结构做出调整,设计师也是将设计的重点放在了软装和搭配方面,业主说自己想要家里带有一些中式的韵味,但又不喜欢厚重的历史气息,所以就选择了这个简约风的中式设计,让家里既带有一种独特的中式元素,又不会让人觉得厚重,反而很清新非常适合年轻人选择。
【玄关】
设计重点:实木鞋柜
进门之后就得可以看到实木的鞋柜和实木的墙壁屋顶设计,实木也是中式风格当中很常见的一种元素,不过这次选择的是一种颜色比较清新的实木,在装饰空间的同时也不会让人觉得厚重。玄关的屋顶还设计了灯带加上侧面墙壁的穿衣镜,让进门区域的光线变得更好,简约质朴的感觉让人可以放下一天的疲惫。
【客厅】
设计重点:藤艺地毯
客厅的沙发和旁边的单人座椅都是实木的材质,中间摆放的茶几则是选择了简约风的款式,客厅的地毯是一种藤艺的编织款式,带有浓浓的自然气息,也是业主最喜欢的一处设计设计。
客厅的沙发背景墙是米黄色的壁纸,电视背景墙则是选择了大理石的设计,不同风格的背景墙设计将中式和现代结合在一起,不会让人觉得压抑。
【厨房】
设计重点:米白色橱柜
家里的厨房选择了米黄色的橱柜,烤箱等电器直接内嵌在柜子里面,满足女主人制作中餐和甜品的不同需求。

【餐厅】
设计重点:独立酒柜
餐厅还设计了独立的酒柜,年轻化的酒柜和中式的实木屏风隔断搭配在一起,打造了更为舒适的用餐环境。


【卧室】
设计重点:银杏叶作装饰
【 美耐板|简约风的中式设计,简单又有中式韵味,原来中式也可以这样多元化】
推荐阅读
- 深色|155㎡简约风,承载着三代人的生活,不花哨让家务少一半
- 地板|160㎡四居室,玄关比我家卧室都大,这才是真正的低调奢华有内涵
- 木纹板|装修案例欣赏:小北欧风格的居家设计,简洁的同时又不失温馨感!
- 棚户区改造|预制板楼房成危房?旧改政策实施,预制板楼房还会被拆除吗?
- 现代简约|青岛房价不是低洼地了,房价高达1.6万一平
- 现代|100平现代简约风三居室,软硬装的设计都很漂亮!
- 乳胶漆|看她家装修,比样板房还漂亮,电视墙特别实用,值得做参考!晒晒!
- 全屋|164m2现代简约全屋简洁大方,有质感!
- 股票板块-化工|合肥弘盛商业广场进度如何?官方回复来了
- 简约|又放假又有购房补贴,多地为鼓励生子接连“放大招”,有你家乡吗
