大理石|122㎡意式轻奢风:设计师巧用玻璃门替代隔断,打造明亮舒适家

大家好,我是淄博设计师陈行知,欢迎关注我,了解更多家居知识装修新房是一件十分消耗精力和体力的事,前期选择设计师或者施工队伍是比较关键的,这是建筑面积122㎡的四居室,从入户玄关开始主要从换鞋、收纳以及颜值方面上考虑美观与仪式感兼存,厨房与餐厅两种区域紧挨着,女主人平常在家做饭的次数比较多,所以每当做好饭之后,从厨房区域到餐厅区域都比较节省时间,主卧标配有卫生间,屋主直接舍弃淋浴房的设计,从主卫空间里安装了浴缸,每次下班后泡澡是一种十分享受的美好时光。全房整体色调以黑色、白色和灰色为主,凸显出高级感的同时还比较时尚,接下来让我们看看不同空间装修完工的实景吧。房屋信息【小区】天麓府(杭州)【户型】四房二厅二卫【面积】122m2【风格】简约意式轻奢
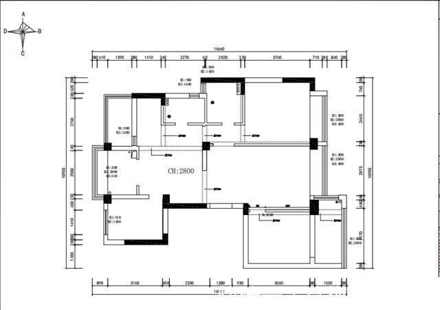
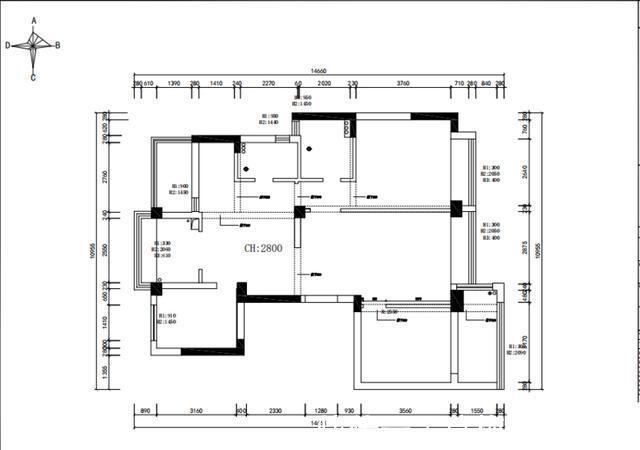
平面结构图
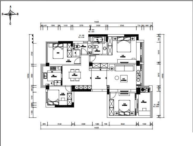
平面布置图客厅
沙发背景墙沙发背景墙考虑了硬包造型设计,线性隐藏式的灯带很有质感,深灰色的组合沙发,千鸟格款式的单人坐凳比较时尚有格调。
电视背景墙电视背景墙与沙发背景墙相呼应,电视挂墙,地台的设计代替了传统的电视柜,颜值爆表而且也比较时尚。电视右侧的木格栅做背景,让整体墙面更加彰显层次。
客厅客厅顶面的线性射灯,让客厅整体效果变得更加明亮;下部空间更加有格调。玄关

入户玄关区域是一个独立区,设计师从装饰和储物两方面来考虑,大胆将装饰柜与储物柜组合在一起,不仅提高玄关颜知而且也增大玄关的收纳。玄关顶面的无主灯设计,营造玄关明亮的氛围。餐厅
餐边柜是餐厅空间必需,隐藏式的把手让柜体变得颜值更高,中部的开放式收纳格隐藏灯带,镂空的部分放置装饰品,灯带光线照射在装饰品上时,晶莹剔透完美无暇。

餐厅地面铺贴的浅灰色的大理石瓷砖,高级感比较强,餐桌考虑大理石材质,逢年过节全家人就餐环境具备了,而且也满足全家四口人的吃饭条件,其乐融融的热闹氛围也是一种天伦之乐。厨房
厨房的窗户比较大,这是我见过最少的装修实景了,采光和通风真的没有话可说,地面的仿大理石材质瓷砖,比较耐脏,橱柜设计成U字型,提高厨房的收纳功能,仿岩板材质的柜门不仅提高厨房的颜知而且也比较实用。卧室主卧室

主卧室顶面考虑平面造型的设计,床头柜上方考虑洗墙灯带的设计,灯光隐藏在石膏板内,不仅对光感没有影响,同时看上去也比较高级。
推荐阅读
- 屋主|56㎡小户型老房改造,小而美的设计!
- 现代风|168㎡现代风,带着浓郁的归属感与愉悦感
- 深色|155㎡简约风,承载着三代人的生活,不花哨让家务少一半
- 混淆感|146㎡北欧经典白色三居室,诠释令人心醉的优雅
- 饱和度|173㎡轻奢新中式,古典和现代的碰撞,唯美浪漫!
- 背景墙|97㎡现代风,以时尚打造空间,以新颖突出特点
- 地板|160㎡四居室,玄关比我家卧室都大,这才是真正的低调奢华有内涵
- 棚户区改造|开盘预告|合肥又有6盘要加推,均价1.39-2.54万/㎡全都有
- 小房间|参观140㎡大婚房,朋友都夸餐边柜有档次,我却更喜欢主卧的飘窗
- |73㎡复古风两居室,年轻夫妻的高品质生活
