全屋|70㎡两居拆掉一间房成就一个大客厅!
本案业主是一对85后小夫妻。这套房子原始格局是两居室,没有一个完整的客厅,这也成了本次改造中业主最重要的一个需求。设计师考虑到业主夫妻现在更多是享受二人世界,这套房子在设计时更多考虑到了如何让小夫妻的生活能更加舒适,所以将其中一个房间的空间释放出来,成就了客餐厅相隔又相连的格局。另外,客厅也是一个拥有更多可能性的空间,以后如果有孩子了,可能考虑客厅和阳台这里可能会再做一间房出来。
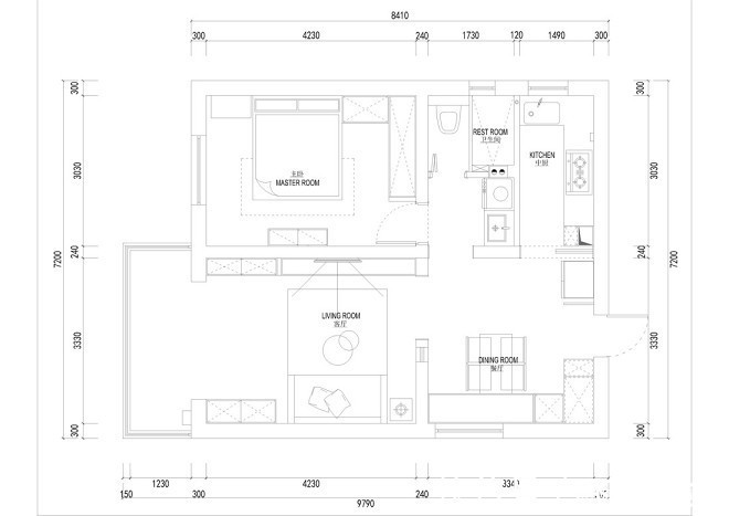
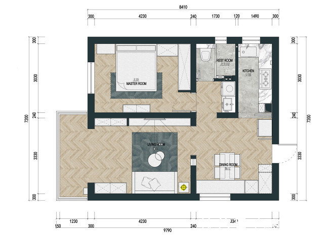
改造前户型:两居室的格局,但是没有客厅,整体空间不够通透。
1.原来格局是两室,设计师将其中一间卧室改造成一个客厅,并在客餐厅之间,做了镂空的墙体隔断;2.阳台两侧做了两排柜子,增加了储物空间;3.卫生间把干区移到门外,感觉上空间变大了,同时马桶的朝向也结合动线的舒适度做了变动;4.卧室内整屋柜体的设计延伸到了床边,能多一些储物,同时又具备了床头柜的功能;5.客厅的空调配合全屋定制一起打造,藏在了柜体内,以百叶的形式做了出风口。
全屋中改造最大的部分就是客厅。原本这套房子是没有客厅的,但业主又对客厅的功能有着迫切的需求,他们希望有一个精致美丽的客厅,能规划出休闲、看电视,互相沟通的空间。
设计师与业主沟通后,决定把原本的一间卧室的空间释放出来,造出一个与阳台相连的客厅。同时,原本房屋的格局也被打开,整个空间连通性更强,采光也得到扩充。
客厅和阳台的衔接处的墙面做了从顶至地的收纳柜,这也是一个拥有更多可能性的空间,以后如果家里添丁,这部分空间也可以考虑再做出一间儿童房。
整屋软装搭配以以原木色为主,以迎合室内整体家具,保持一致性,会让整体看着更统一协调。搭配白色墙砖、花砖地面,这一效果简约十足,还挺漂亮。
客厅电视背景墙。电视背景墙没有过多的装饰,仅仅是一面未经修饰的白墙,低调简约。在黑色悬空式的电视柜旁,还挤出了空间放置生机勃勃的绿植。
客厅沙发背景墙。深色皮质沙发,配合整体简约的基调,给整个家增添很多稳重感。一侧的绿植,能增添一些清新感,为黑白灰的空间增色。
客厅。客厅和餐厅之间,设计师特别做了半堵镂空墙体的隔断,为这个小角落增添了些许趣味。这也是小户型空间做隔断最明智的选择。
客厅沙发。客厅的空调配合全屋定制一起进行规划,设计师把它藏在了乳白色的收纳柜内,以百叶的形式做了出风口。但百叶不能选择过于细密的款式,会影响空调出风体验,材质也同样选择不容易凝水的ABS材质。
客厅的采光很是不错,阳台与客厅打通后,全屋光线超级充足。整个素色的装饰以及白色的天花板,搭配黑色的沙发和原深灰玻璃茶几,整体感温馨舒适又精致简约。
推荐阅读
- 屋主|56㎡小户型老房改造,小而美的设计!
- 现代风|168㎡现代风,带着浓郁的归属感与愉悦感
- 深色|155㎡简约风,承载着三代人的生活,不花哨让家务少一半
- 混淆感|146㎡北欧经典白色三居室,诠释令人心醉的优雅
- 饱和度|173㎡轻奢新中式,古典和现代的碰撞,唯美浪漫!
- 背景墙|97㎡现代风,以时尚打造空间,以新颖突出特点
- 地板|160㎡四居室,玄关比我家卧室都大,这才是真正的低调奢华有内涵
- 置物区|全屋定制柜子时,记得把这3个柜子做到位,钱不白花用着也舒服!
- 棚户区改造|开盘预告|合肥又有6盘要加推,均价1.39-2.54万/㎡全都有
- 小房间|参观140㎡大婚房,朋友都夸餐边柜有档次,我却更喜欢主卧的飘窗
