素简|这才是农村里的豪宅,450㎡农村自建房,从里到外的摩登简约风( 二 )
▼格局
客餐厅之间,以开放式的空间布局为主,并没有明确的分界,当然也没有视觉上的遮挡,整个功能区显得开阔且通透。
相比于传统农村住宅布局,这样的布局更有人情味,也更具城市居住感。

▼客厅
客厅空间的设计,在于强调简洁和舒适度,白色大理石的元素,蔓延到了整个客厅,显得自然又舒适。
而大面积奶白色的墙漆+暖色木饰面,让这个家简约之余,也更有家的温度。



放眼整个客厅空间,能够看到简约素简的线条感,不论是沙发背景墙,或是电视墙,都以有序的线条为主,简约风之下,还原了现代人对生活的美好向往。

餐厨之间,以一道红色的玻璃推拉门进行点缀,看似毫无一丝修饰感,却成为了空间之中的亮点。
软装之中的红色,与建筑外观的红色,构筑成了一个色彩上的逻辑循环。
▼过道
过道空间的设计,显得更有一派斑驳之美,搭配玻璃色的橱柜门设计,营造了视觉上的通透之感。

▼次卧
次卧空间的设计,显得简单却素净,通过通透的玻璃窗,让室内外建筑之间,形成了一种视觉上的和谐感。
尤其是木饰面与地板的完美搭配,让空间更具有居住适宜感。

▼水吧
水吧休闲区域,则融合了待客、品茶和休闲功能,强调了会客时的舒适感。整体以木色调为主,让空间氛围更趋于惬意放松感。




在农村自建房之中,融入更多的现代化功能区域,似乎也让农村生活更趋于现代化,迎接另一种惬意感。
▼主卧
主卧空间的设计,似乎也显得极为简约,有时候不得不佩服设计的力量,看似渺小,却又改变了什么。
或许这样的农村自建房,改变感并没有排山倒海的既视感,却在潜移默化之中,改变了我们的生活。
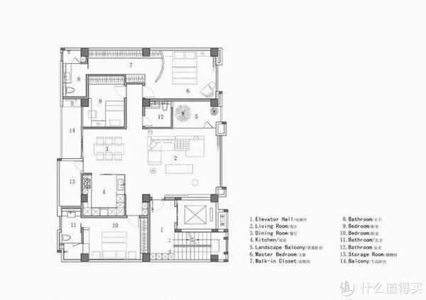
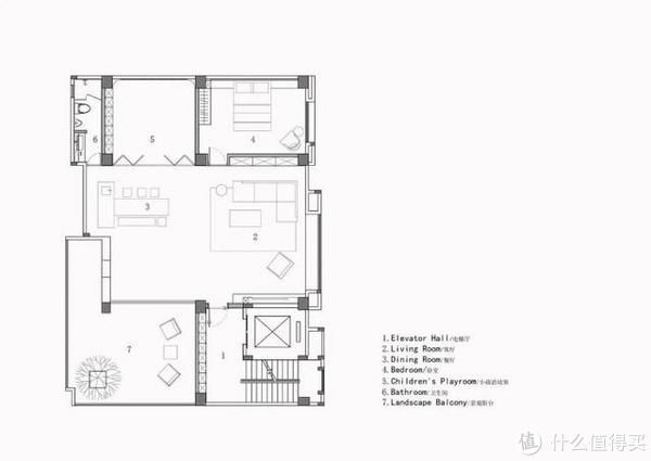
▼平面布局

那么,看完这套农村新型自建房,你是否也感受到了另一种惊艳和高级感呢?欢迎在评论区,分享一下您的观点和看法。
推荐阅读
- 施工者|不管家多大,装修时做好这12处细节,美观与舒适并存,幸福感提升
- 大悦城|家里这两个地方别漏了贴瓷砖,许多人为了省钱,入住就后悔了
- 贷款|5月起,“2道铁令”,今后这1种买房方式再也行不通了
- 灰尘|家中阳台不要装推拉门了,装这种更实用个性,不得不感叹太聪明了
- 管道|为什么说:再穷也不买二层?了解这些弊端之后,就知道多糟心了!
- 小钱|游点好笑!收手机的新方式,一抓一个准!这老师怕是柯南看多了?
- 餐边柜要做成什么样子才实用又好看看看这几款餐边柜设计
- 集体经济|征拆赔款找,查了才知有这么“多”…
- 房贷|“重启”拆迁?这2类房子或全拆重建,两类人受到影响
- 万科|首付745万的房没了还要赔500万!买二手房签合同时注意这8个细节
