一家人|独立的二层复式小楼,将室外花园纳入室内,动静分离的设计更实用
独立的二层复式小楼,将室外花园纳入室内,动静分离的设计更实用
今天和大家分享的是一个独立的二层复式小楼,这个房屋位于城郊附近周围的环境比较安静非常适合日常居住,同时周边的配套设施也比较齐全日常生活也很方便,装修的时候也照顾到了房屋主人的生活特点来装修设计,将室外的花园纳入到了室内,整个空间都是以简约舒适为主,装修的时候也照顾到了一家人的生活习惯,动静分离的设计更实用。
房屋户型
:别墅
房屋面积:
350平方米
装修预算
:50万元以上
所在城市
:贵阳
【 一家人|独立的二层复式小楼,将室外花园纳入室内,动静分离的设计更实用】设计师
:李一清
主要建材
:茶镜、板岩、抛光石英砖、银波灰玻璃、黑云石、黑檀木、烤漆玻璃、仿凿面石头
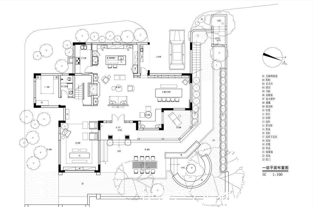
【户型图】
装修的时候将二楼的区域设计成了休息的区域会更加安静一些,而家里的活动区域则是设计在了一楼的区域,平时行动起来也会比较方便,不过装修的时候还在一楼设计了一个卧室,方便父母居住,另外一楼还准备了客房,方便家里的老人过来居住的时候居住。
【客厅】
设计重点:将入户花园或设计引入室内
家里装修的时候特意选择了大面积的落地玻璃窗将室外的花园引入到室内,让家人坐在客厅就可以看到外面的风景,从而达到通透的效果,也增加了客厅的通风和光线。

一楼的区域是家里的活动区域,装修的时候设计了厨房、餐厅、会客区域和茶室,让每一处空间都可以满足业主的日常生活需求,淡雅的颜色也不会过于浮夸,看起来更加的简单大方,让人感觉更加的舒适。

客厅还添加了壁炉作为装饰,等到了天气冷的时候一家人也可以一起坐在壁炉旁边聊天和休息,装修壁炉的时候也重点关注了家里的管道问题,解决了空气的流通问题,让室内的空气更加通透。
【厨房】
设计重点:中西厨结合
因为平时女主人也喜欢在家做一些甜点,所以装修的时候特意将中厨和西厨结合在了一起,方便业主的日常生活需求。

另外西厨区域还设计了一个中岛台,侧面还放置了一些书籍,等待甜品的时候也可以坐在这里看书休息一会。

【餐厅】
设计重点:双餐厅设计
家里设计了两个不同风格的餐厅,一个是比较小的餐厅,设计了卡座和藤椅,平时家里人比较少或者是喝下午茶的时候使用这个小餐厅也会方便一些。
另外一个餐厅的面积比较大,可以用于日常招待客人或者是家庭聚餐,也可以根据不同的需求选择在不同的餐厅用餐,十分的方便。
推荐阅读
- 屋主|56㎡小户型老房改造,小而美的设计!
- 春节|如果能重来,阳台一定“9不装”,并非迷信,是过来人的经验教训
- 装修|乔迁新房3月以泪洗面!当初的不理智,连犯15个极品装修坑!作孽
- 现代风|168㎡现代风,带着浓郁的归属感与愉悦感
- 深色|155㎡简约风,承载着三代人的生活,不花哨让家务少一半
- 混淆感|146㎡北欧经典白色三居室,诠释令人心醉的优雅
- 造纸|生活用纸,黄卫生纸真的好于白色卫生纸吗?来听造纸员工怎么说!
- 对象|廉租房和公租房的有什么区别?
- 饱和度|173㎡轻奢新中式,古典和现代的碰撞,唯美浪漫!
- 小钱|游点好笑!收手机的新方式,一抓一个准!这老师怕是柯南看多了?
