装饰画|她家不豪华,可进门让人眼前一亮!101㎡,简约风十足,真羡慕!

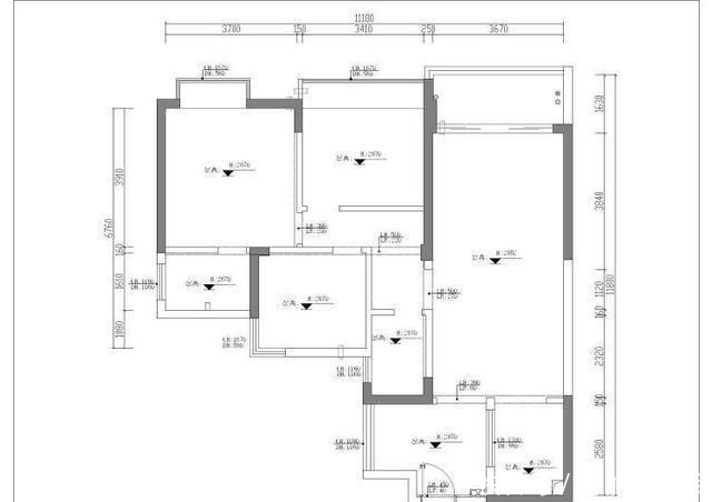
原始结构图
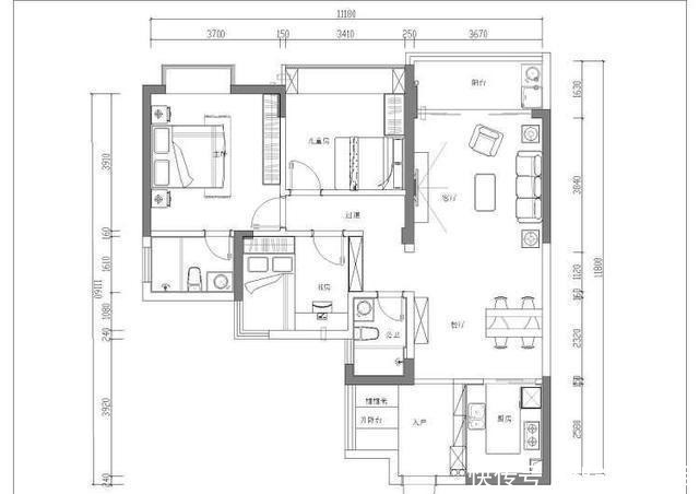
平面布置图,拆除部分非承重墙,重新规划空间,提高空间利用,改善居家动线。
原户型带入户花园,不仅采光好还宽敞。考虑到厨房采光问题,拆除了玄关与厨房的隔墙,利用窗户与鞋柜结合设计,既满足了玄关收纳,又改善了厨房采光,一举两得。
入户花园比较大,靠窗一侧设计榻榻米,变身多功能区,软装和绿植装饰一番,效果还是非常不错的。闲暇时可以坐这看看书、听听音乐、享受休闲时光。
客厅简约十足,软装与整体格调搭配恰到好处,温婉素净让人很放松。壁灯与吊灯组合设计,为客厅提供了良好的照明效果。
电视墙不做造型,简洁耐看不过时。电视柜和斗柜组合,提高客厅收纳空间。电视墙利用几何装饰物点缀,避免太单一。
餐厅简约实用,细长腿的木质桌椅,占用面积小空间更通透。墙面安装置物架,摆放物品和装饰都很不错。
厨房U型布局,极大地提升了操作台空间和收纳。吊柜到顶设计,不浪费空间也避免清洁不便。
卧室简洁宜人,素雅的色调营造出舒适的睡眠环境,没有复杂装饰,简洁的色调、搭配个性壁灯和装饰画,安逸。
儿童房非常简洁,一张精致小巧的儿童床,最大程度地腾出空间给孩子玩耍。卡通装饰画点缀,给儿童房增添些许童趣感。
【 装饰画|她家不豪华,可进门让人眼前一亮!101㎡,简约风十足,真羡慕!】
推荐阅读
- 当事人|房产商不办按揭怎么办?
- 春节|如果能重来,阳台一定“9不装”,并非迷信,是过来人的经验教训
- 装修|乔迁新房3月以泪洗面!当初的不理智,连犯15个极品装修坑!作孽
- 装修|淋浴房还可以坐着洗澡,一开始很不理解,装修后才发现太实用了!
- 施工者|不管家多大,装修时做好这12处细节,美观与舒适并存,幸福感提升
- 深色|155㎡简约风,承载着三代人的生活,不花哨让家务少一半
- 中间商|出租房屋可以不用中介,打造自助门店,同样收租金
- 贷款|5月起,“2道铁令”,今后这1种买房方式再也行不通了
- 灰尘|家中阳台不要装推拉门了,装这种更实用个性,不得不感叹太聪明了
- 美好生活|欧哲门窗副总经理周志军:「拓」不忘初心同心同德,成为美好生活空间首选品牌
