质感|她家的简约美式风格太漂亮了,巧用灰蓝色打造高级通透质感美宅!
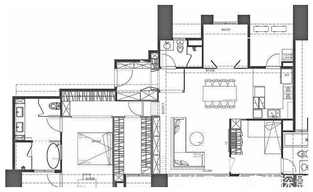
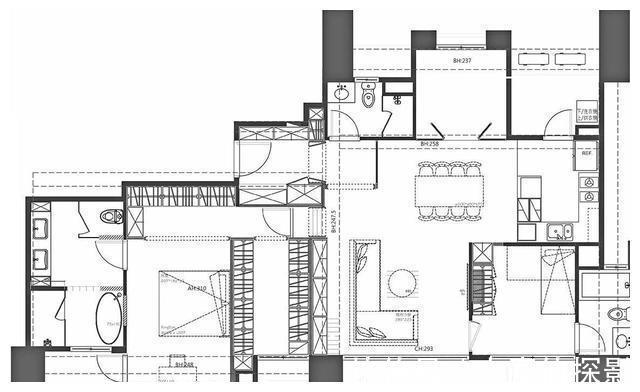
本方案的整体定位为简约美式风,整体有复古气质感,还不缺乏自由感与情调感,简洁明快,温馨舒适。硬装上线条造型直接简洁,软装上主要从家具的造型、材质、纹理上体现美式风格的韵味。设计师将美式风范和个人现代精神相结合,简约而不简单,让我们一起来欣赏吧!【平面布置图】
【入户玄关】
▲本户型有独立的入户玄关,两边都设计了整面的鞋柜,可以最大限度增加储物空间,灰蓝色造型门板设计线条流畅、复古典雅。独立的波打线造型地砖,一进门就瞬间感受到浓浓的艺术气息。
▲一进门的对面设计了一面黑色边框的玻璃墙,既增加空间通透性,又美观大气。【客厅】

▲电视背景墙设计了一扇隐形门,其他并没过多装饰,经济又实用。沙发背景墙设计了一整面的灰蓝色美式造型书柜,与同色系的室内门相呼应,色彩风格呼应,整体感强。【餐厅】

▲原木色餐桌,线条简约自然,隐约中透露着艺术感与自由感。【厨房】
▲开放式的厨房体现了现代的生活方式,白色造型小墙砖不经意间透露屋主的精致与浪漫。【卧室】

▲主色调为蓝白色,纯净又浪漫。搭配高级质感的家具,精致典雅。一整面的白色衣柜设计实用美观。【卫生间】

▲卫生间的半墙设计十分亮眼,打造空间质感与层次感。【衣帽间】
▲延续整体风格特点,舒适与美感并存。
推荐阅读
- 屋主|56㎡小户型老房改造,小而美的设计!
- 春节|如果能重来,阳台一定“9不装”,并非迷信,是过来人的经验教训
- 装修|乔迁新房3月以泪洗面!当初的不理智,连犯15个极品装修坑!作孽
- 现代风|168㎡现代风,带着浓郁的归属感与愉悦感
- 深色|155㎡简约风,承载着三代人的生活,不花哨让家务少一半
- 混淆感|146㎡北欧经典白色三居室,诠释令人心醉的优雅
- 造纸|生活用纸,黄卫生纸真的好于白色卫生纸吗?来听造纸员工怎么说!
- 对象|廉租房和公租房的有什么区别?
- 饱和度|173㎡轻奢新中式,古典和现代的碰撞,唯美浪漫!
- 小钱|游点好笑!收手机的新方式,一抓一个准!这老师怕是柯南看多了?
