典雅|她家的装修太有贵族气质了,比美式风格更耐看,一进门就被惊艳到
#百度家居大师团#相信很多人都看到一部英剧叫做《唐顿庄园》,它主要是讲述英国贵族的故事,除了剧情以外,更多人被里面精致的场景和建筑所吸引。英式风格的高贵和典雅,以及它所带着的历史感,非常令人沉醉。
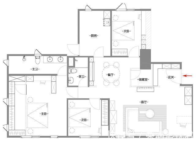
今天小编给大家分享的案例就带着一股浓浓的英式贵族格调,坐标台湾。全屋以美式为基调,采用沉稳内敛的木质格调来描绘英伦风,营造出女屋主喜欢的典雅深色系风格,同时活用浅色系与线板造型来勾勒清爽的轮廓,最终呈现出多元混搭的英美风格。话不多说,快跟随小编的步伐,一起来看看吧。平面布置图
本案例户型3房2厅2卫,实际使用面积约为148㎡,居住人数2大2小。从户型图中可以看到,这是一个面积比较大的房子,进门处有独立的玄关区,客厅、餐厅、厨房分别位于不同的空间里,明显的功能分区也让这个家更具有仪式感。玄关
推门入室,一下子就被这玄关柜的台面吸引了全部的注意力,缤纷的纹理好似花园中的土壤一般,再搭配典雅的花卉图案墙面,一进门就仿佛进入了英式贵族的后花园,藏不住的高贵典雅气质。除此以外,玄关柜采用了悬空的形式,同步搭配百叶门板造型,既透气又显得轻盈。客厅
正对玄关就是一整面的木百叶窗,侧墙同步搭配美式线板造型,平时这里就是一个小书房,搬上一把椅子,就可以在这里读书、喝茶,享受日光的温暖。
因为男屋主喜欢比较清浅的家居氛围,所以客厅的墙面和柜体都采用了清新的浅色系,浅绿色也给室内带来了更多的生机和活力感。
设计师为了弱化大横梁带来的压迫感,将天花板设计为格状的木框造型,电视背景墙则顺着横梁而下,胡桃木色的护墙板也与沙发的颜色有所呼应,再辅以清新的浅绿色墙面,整体清新自然又不失沉稳内敛的高级感。
沙发另一侧则扩展为水吧台,中部水磨石平台下方做内嵌式酒柜,可以让屋主随时享受品酒的乐趣。
电视柜采用了黑色藤编柜,带有编织造型的门板,线条干净利落,黑色系的柜体非常的显典雅气质,同时配色上也与餐厅的黑色餐桌椅相呼应,营造出硬朗的英伦风效果。餐厅
玄关和餐厅的门洞都加了深木色拱形门框,再加上天花板的造型,一圈圈地框构出一幅典雅优雅、有着贵族气息的居家氛围。餐厅的餐边柜采用了午夜蓝,中部顶柜采用了玻璃门的形式,中部留空做水吧台使用,整体造型非常的高贵典雅,有着浓浓的英伦贵族范。主卧
小编最喜欢的就是主卧的设计,进门以后正对着的是类似于玄关式的隔断柜,增加了一侧梳妆台的私密性,上方是方格玻璃,起到透光的效果。

推荐阅读
- 屋主|56㎡小户型老房改造,小而美的设计!
- 春节|如果能重来,阳台一定“9不装”,并非迷信,是过来人的经验教训
- 装修|乔迁新房3月以泪洗面!当初的不理智,连犯15个极品装修坑!作孽
- 现代风|168㎡现代风,带着浓郁的归属感与愉悦感
- 深色|155㎡简约风,承载着三代人的生活,不花哨让家务少一半
- 混淆感|146㎡北欧经典白色三居室,诠释令人心醉的优雅
- 造纸|生活用纸,黄卫生纸真的好于白色卫生纸吗?来听造纸员工怎么说!
- 对象|廉租房和公租房的有什么区别?
- 饱和度|173㎡轻奢新中式,古典和现代的碰撞,唯美浪漫!
- 小钱|游点好笑!收手机的新方式,一抓一个准!这老师怕是柯南看多了?
