客厅|他120㎡的家看起来超清爽,干净好收拾的设计,不会装修的学起来!
#百度家居大师团#对于大多数每天都很忙碌的上班族来说,简单、干净、好收拾,就是对一个家最好的评价。本期案例屋主是一对退休夫妻,在结束了繁忙的职场生涯后,在一处依山傍水的山林旁买下了这个房子。对于他们来讲,华丽的装修风格已经毫无意义。他们更希望整体风格更加简洁、内敛,在干净整洁、好收拾的基础上,将山景引入家中,拥有自在而有序的生活状态。
全屋以百分之三十的留白为基调,同步搭配质朴无华的灰白色、清浅的原木色、以及一些干净利落的线条,营造出富有层次变化且清爽自然的家居氛围。本期主要分享该案例公共区域的装修设计,包括玄关、客厅、餐厨区以及开放式书房。话不多说,快跟随小编的步伐,一起来看看吧。

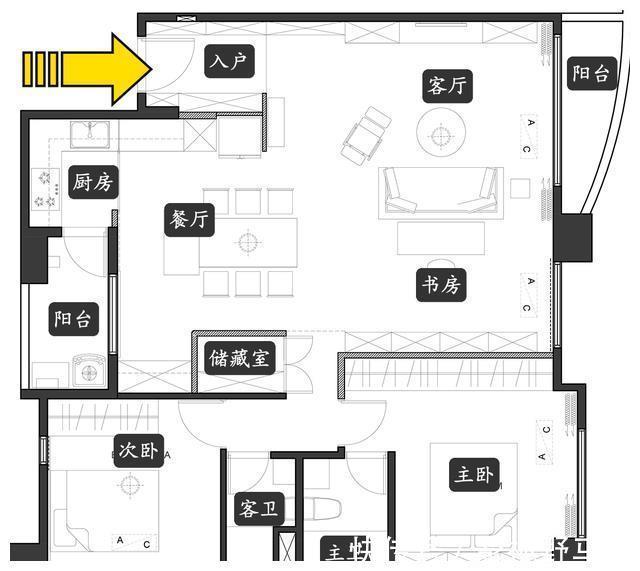
户型信息本案例户型2房2厅2卫,套内面积约为99㎡,居住人数2个大人,坐标台湾。屋主需求1.整个家简单、干净、好收拾。2.需要充足的收纳空间。
玄关
▲这是站在入户门位置看向客厅的角度。一进门就可以看到客厅阳台外的山景,成为最好的迎宾画面。入户的右手边设计为常规的玄关功能区,底部悬空设计已经很常见了,对于常用鞋的收纳摆放和卫生打扫都非常方便。对于退休的老人来讲,入户位置必须要有的就是穿鞋区域,本案例还在顶部加入了辅助照明,更加人性化的细节设计。

入户的左手边则应屋主需求,规划了整面的到顶收纳柜,一直延续至客厅电视柜的位置。其中一组柜体门板采用了灰色镜面的设计,同时也可替代穿衣镜使用。除此以外,还加入了开放式多层板展示柜,用来摆放屋主收藏的各类旅行纪念品。
▲这是穿过玄关看向书房和餐厅的角度。客厅
客厅的电视柜接续玄关柜,一直延续至阳台位置,为屋主提供了大量的收纳空间。两边采用了对称式的原木高柜,中部矮柜则采用了更为清爽的铝框柜造型,用来收纳屋主的音响设备。背景墙采用了经典的大理石纹理造型,整体搭配线条干净利落、清爽又实用性极强,非常值得我们学习借鉴。
屋主舍弃了一间卧室改为开放式的书房,两个落地窗的中间墙面悬挂了碧绿色的烤漆玻璃框,呼应了窗外的美丽山景。
客厅和书房之间采用了一道无形的边界,整齐有序的格局划分让这个家看起来干净又宽敞。书房后面大面积的柜体设计满足男屋主大量的书籍以及收藏品的收纳展示需求。

开放格区域的背景墙采用了飘逸的大理石纹理,与客厅电视墙相呼应,简洁大气。餐厨
推荐阅读
- 客厅|参观向华强和陈岚的豪宅,房子层高太矮了,住着不压抑吗
- 房产税|美国作为发达国家,他们为何不用混凝土建造房子原因很现实
- |看到对门挂这个,赶紧让他拆了,不然财运就要走下坡路了
- 亮点|等了6个月终于能晒晒新房了,都挺满意的,客厅是最大的亮点
- 庭院|取消客厅三件套,只摆一张大长桌,79㎡的家简洁质朴,太满意了
- 餐厅|这套新房真有创意,客厅改主卧,电视背景墙后面设吧台!
- 乳胶漆|等买了房,就照他家这么装,全屋不吊顶,不做背景墙,越看越耐看
- 装修|越来越多人阳台不装推拉门了,如今流行将阳台包进客厅,太聪明了
- 客厅|有钱人从不在家里放这4样东西,暗喻越住越穷,有钱人都会避开
- 碧桂园|盼了9年,回到新家的他们这样说……
