农村|农村房子这样建,2套绝美实用好户型,做养老房或者婚房都合适
大部分农村盖房都是将老房子拆了新盖,所以对于房子的外观一定会有要求。早期父辈建房的时候,能盖个二层平房就算是经济条件不错的家庭了。而现在随着大家的审美逐渐提高,我们回到农村的时候也能看到,各种风格迥异的住宅标志了一个家庭的门面。今天给大家带来两套绝美实用的农村自建房别墅户型,无论是作为孩子的婚房还是父母的养老房都是极佳的选择!
第一套:新中式风格+私家车库,空间设计多功能,造价预算20万
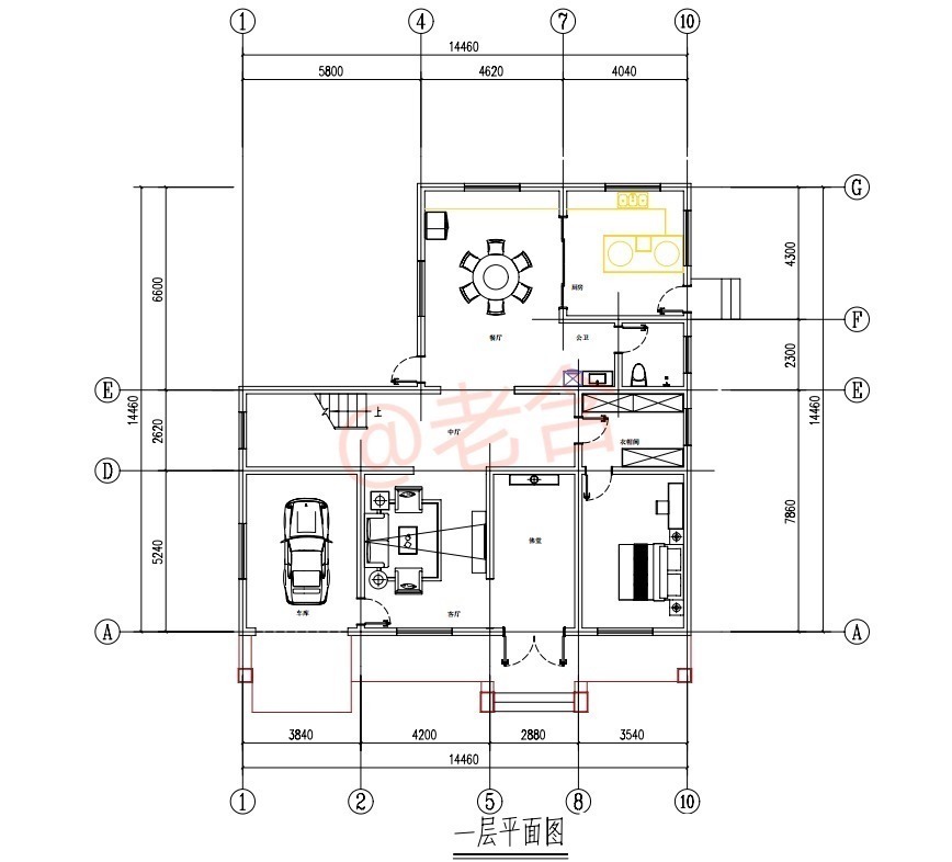
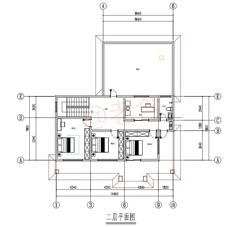
编号:JM755
开间进深:14.46*14.46米
占地面积:210平方米
结构类型:砖混结构
参考造价:20万
楼层数:2
室内布局基本情况:
一层设计图:
二层设计图:
第二套:简欧风格+户型大气方正,5间卧室,造价预算20万
编号:JM1187
开间进深:13.5*13米
占地面积:175.5平方米
结构类型:砖混结构
参考造价:20万
楼层数:2
室内布局基本情况:
一层设计图:
二层设计图:
【 农村|农村房子这样建,2套绝美实用好户型,做养老房或者婚房都合适】
推荐阅读
- 楼市|房子降价对楼市而言反倒是件好事
- 购房置业|经济学家:老百姓60%的钱花在房子上很危险!网友:说得很对
- 房贷|“重启”拆迁?这2类房子或全拆重建,两类人受到影响
- 客厅|参观向华强和陈岚的豪宅,房子层高太矮了,住着不压抑吗
- 装修|空调外机万万不能这样挂墙,若不是师傅提醒,我家都装错了!
- 大门|房子大门万万不能朝这地方开,师傅看了摇头,怪不得我家越住越穷
- 购房置业|为什么买房不要买靠边的房子?这些问题要注意,开发商不会告诉你
- 炒房|房子有多难卖?三线城市炒房者:降价20万送车位都卖不掉
- 收纳|去邻居家参观才知道,卫生间不装柜子这样设计,防潮耐脏好清洁
- 建房子|面宽11米, 进深16.5米的农村三层别墅, 前后有花院还带车库, 完美!
