大户型|30㎡精致小宅,轻享6大功能区,实用性不输大户型!
导语:这套仅30㎡的小户型,不仅通透舒适,还实现了6大功能区!这些让人羡慕的设计,是如何安排上的?往下看你就知道了~本期,甜茶为大家分享家装案例,是一套面积约30㎡的一居室。屋主喜欢简约温暖的装修风格,所以房子的整体配色选择了「白色 原木色」,视觉感温润舒适。
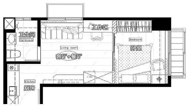
//设计亮点//①餐厅和客厅合二为一,节省使用面积;②一字型开放式厨房,动线合理;③独立卧室设计,私密性更强。
▲装修平面图「一个舒适的家,得益于合理的设计。」本期案例,就很好地诠释了这句话。走进屋内,温馨感扑面而来,房子虽然不大,但我们可以从家居中感受到一份生活的仪式感。
▲客餐厅实拍图考虑到户型面积不大,所以屋主把客厅和餐厅做在了一个空间里,平时可以直接在这里看电视、用餐等。客餐厅内的阳光非常充足,玻璃窗差不多占据了半面墙,当阳光照进屋内,屋主可以舒舒服服地躺在沙发上,享受宅家的惬意时光。
▲客餐厅实拍图「极简」对于屋主来说,不仅是现有的家居风格,更是她目前的生活状态。其实,仅从屋内的家具陈设,就能感受到这一点。家里的物件非常少,所以平时打扫起来也非常方便。电视柜做了悬浮式设计,观感更加轻盈,搭配高处的隔板置物架,可以丰富空间的层次感。
▲客厅实拍图电视柜紧连客厅的收纳高柜,并做了嵌入式的冰箱设计,提升室内空间利用率。白色的柜门搭配原木柜体,契合整屋装修色调,简单清新。
▲客餐厅实拍图虽然屋内没有独立的书房,但是屋主在客厅内留出了工作区,充分利用角落空间,完美实现“宅家办公”。书桌的正上方,是两排开放式书架,方便屋主摆放文件、书籍等。
▲工作区实拍图客厅和卧室之间,用玻璃移门做隔断,既节省空间,又能保证私密性。玻璃移门的造型为简单的黑框款,简约干练,还能延伸视觉感,增强室内空间的互动性。
▲卧室实拍图卧室功能也很丰富,双人大床、梳妆台和大衣柜一应俱全。屋主用梳妆台,代替床头柜,实用性更强。梳妆台的镜子四周,安装了两排美妆灯,效果极佳。
▲卧室实拍图在客厅内,可以看到旁边的开放式厨房。为了减少油烟飘入客餐厅,屋主把烹饪区设计在厨房的窗边,动线也更加合理
▲客厅实拍图为了提升厨房的空间利用率,所有的家电均做了嵌入式设计,尺寸刚刚好,视觉效果也更加整洁。屋主将洗烘一体式的洗衣机也放在了厨房内,既能解放卫生间的“压力”,也能缓解没有阳台的弊病。
▲厨房实拍图卫生间的配色选择了经典的“白 黑”组合,黑色的瓷砖、地砖耐脏耐磨,白色的卫浴产品易于打理,给人一种干净清爽的感觉。
推荐阅读
- 屋主|56㎡小户型老房改造,小而美的设计!
- 现代风|168㎡现代风,带着浓郁的归属感与愉悦感
- 施工者|不管家多大,装修时做好这12处细节,美观与舒适并存,幸福感提升
- 深色|155㎡简约风,承载着三代人的生活,不花哨让家务少一半
- 混淆感|146㎡北欧经典白色三居室,诠释令人心醉的优雅
- 大悦城|家里这两个地方别漏了贴瓷砖,许多人为了省钱,入住就后悔了
- 饱和度|173㎡轻奢新中式,古典和现代的碰撞,唯美浪漫!
- 住宅|现在买房,选“高层”还是“低层”好专家20年后差别很大
- 背景墙|97㎡现代风,以时尚打造空间,以新颖突出特点
- 宝龙地产|银行大厦几十层高,能“物尽其用”吗?各个楼层都是干啥的?
