客厅|32平小户型设计,收纳做到了天花板上了!学他空间扩大不止2倍!
今天和大家分享的是来自巴西圣保罗翻的一间新装修的小户型的公寓的现代化装修设计,面积仅为409平方英尺(32平方米)。整个小户型的设计巧妙的隐藏式的创意设计和收纳存储空间,很大的程度上节约了小户型的空间,使得活动空间更加的宽敞明亮起来。而且还值得一体的式天花板上的置物架层收纳的环绕设计,可以摆放装饰品和一些绿植,不仅美观特色还大大的扩出了额外的收纳空间出来。那么闲话话不多说一起来参观一下吧!
走进公寓,玄关处的一侧有一面镜子墙,可以使小户型的面积看起来比实际更大,并且可以反射从窗户射入的自然光。镜子墙上的右侧还设计了一个客厅上的卡座,客厅上的电视柜也是一个办公桌也是一个茶几,底部还有很大的收纳抽屉盒子。客厅和厨房之间用一面小矮马墙隔开,并且沿着墙壁进入客厅是一个木制储物单元。
进入步入式的阳台区也是一个小型的餐厅一角,角落的依然是采用的卡座的设计,节省了空间也增加了收纳功能。木材材质打造的用餐区整体看起来简洁大方,吊顶的一间木艺风格的吊灯增添了不少的温馨舒适的感觉。
在厨房中,明亮的蓝色橱柜正面为木质橱柜增添了一抹色彩。厨房的空间不是很大但是基本的功能都已经齐全,满足一家人的供应需求完全没有问题。
电视后面的墙打开,里面是一间卧室和浴室,这两个空间式独立开来的,被我们用实木隔板隐藏到了背后,拉上推拉门后就是一个简洁的客厅的电视背景墙了,在这里笔者认为客厅上完全可以使用投影仪和伸缩的幕布来替代客厅上的平果电脑,当然除非屋主是个不经常使用电脑办公的。
卧室位于窗户旁边,而壁橱和浴室则隐藏在一个绿色盒子中。卧室的以纯白色为主色调,使得本来窄小的空间在小窗户的光线照射下更加的明亮通透起来了。床头上的使用的竖条板材设计,上方可以摆放一些装饰画,左右的对称的壁挂式的床头柜子和夜起灯把整个卧室点缀的更加的丰富了。
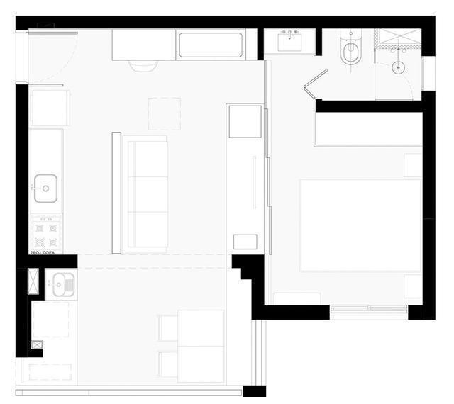
这是小户型的平面布局图。
这样的多功能收纳与隐藏式的小户型装修设计大家觉得怎么样呢?户型虽小但是合理的布局和设计,不仅能扩展出额外的空间也能够完善更多的生活机能出来。希望今天的分享能够对大家有所帮助。最后谢谢大家看完!
推荐阅读
- 屋主|56㎡小户型老房改造,小而美的设计!
- 客厅|参观向华强和陈岚的豪宅,房子层高太矮了,住着不压抑吗
- 小户型|发现丈夫赠人房产 妻子怒讨买房款
- 卫生间|什么才叫好户型?来看看这5个标准,你家房子符不符合?
- 修建|精选10套三层户型图纸,占地面积均不足百平,尤其适合新农村修建
- 住房公积金|什么才叫好户型?来看看这5个标准,你家房子符不符合?
- 民营企业|小户型必看扩容6招,让家里每 1㎡ 都不浪费!
- 亮点|等了6个月终于能晒晒新房了,都挺满意的,客厅是最大的亮点
- 庭院|取消客厅三件套,只摆一张大长桌,79㎡的家简洁质朴,太满意了
- 山东省|好住│金牛岭片区的刚需户型,两梯两户还配入户花园
