业主|一个三代同堂的家
和是业主小两口身上最突出的性格特征,这套作为婚房的他们家,计划装下三代人,他们对家的想法有自己的理解,同样也很尊重设计师给出的建议,他们的这套婚房就是在彼此融洽相处的氛围里慢慢完成。待在干净明亮的屋子里,任何时候都感到非常的安心。好的家居环境带来的力量是不可忽视的,业主同样也知道,他们喜欢干净明亮的家居氛围,家作为一天中回归的地方,他们希望回家的感觉是舒适的干净的。



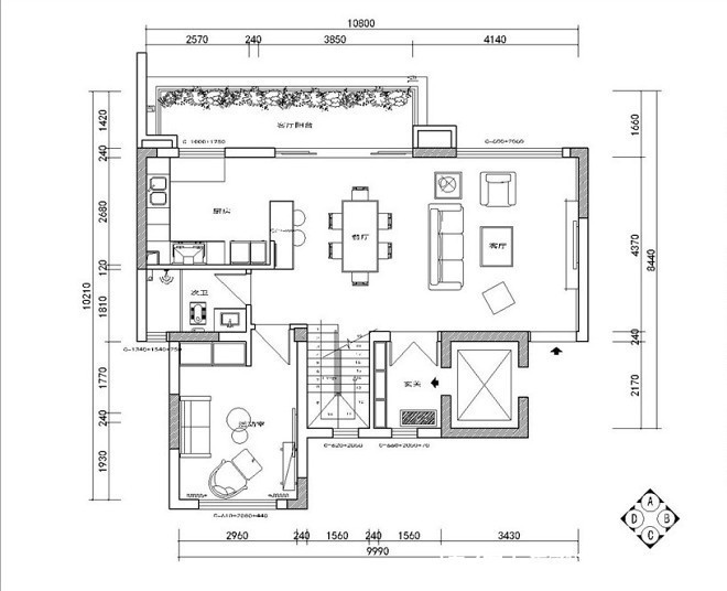
在布局规划上,三层楼的空间分工明确,每一层楼都安放下了家人的身与心。一楼主要作为生活区以及会客厅,近11米的大横厅让所有空间都贯通,消弭视野的阻隔。


冷调的蓝色在干净的基础上增添了一份静谧,蓝色作为背景色,让空间更添层次感。在一楼家具的选择上则是点缀以粉色,粉蓝CP自成一派,色彩的高级感迎面而来。
厨房处考虑到视野的通透度,将厨房做成开放式,前为西厨,后为中厨,体现了两代人的口味差异,但又用设计将这种差异消化,使所有人的胃都能得到满足。


大面积浅灰色的墙漆加上沉静的蓝色,在原本干净简单的空间中注入了一片亮色,空间色彩也更能体现质感。

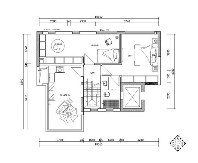
二楼则大刀阔斧的进行了大改造,他们是老人房以及未来宝宝的房间,在父母房中为他们专门设计了卫生间,这是子女在生活上为他们提供的便利;
儿童房在满足TA起居的同时还为TA考虑到了衣帽间,也可摇身一变成为休闲玩耍区域。多功能的变化是父母为还未出世的孩子所做的提前规划,也是他们对未来将来临的TA所展现出的一份期待的心情。
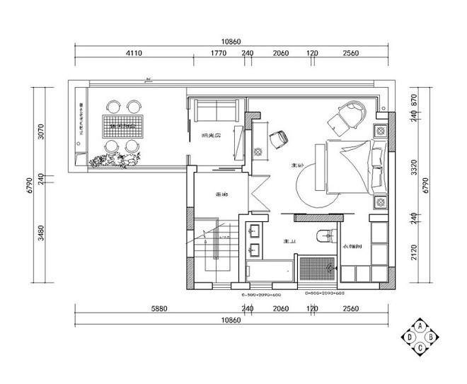
三楼则是专属于夫妻两的独处空间,由于业主小两口经常需要在家办公,所以把三楼整个空间作为主人房,空间相对独立一些。
主卧也延续了蓝色的色调,并且设计为套间形式,满足日常生活的需求。设计师也将三楼的阳台进行划分,设计了阳光房,天气好时小两口也可在阳光房舒适的的环境中进行办公。

坐在干净舒服的房子里面,不需要经历努力看书赶考的辛苦;待在干净明亮的屋子里,任何时候都感到非常的安心。虽然现在已经没有赶考的忧虑,但是舒适的家也为业主提供了舒心的办公环境环境,更是为全家人提供了窗明几净的安心之所。三代人与一猫的日常生活,就在此间缓缓展开。
推荐阅读
- 深色|155㎡简约风,承载着三代人的生活,不花哨让家务少一半
- 小钱|游点好笑!收手机的新方式,一抓一个准!这老师怕是柯南看多了?
- 卫生间|129平现代美式三居室,打造出一个舒适又温馨的美式家
- 三居室|118平现代风三居室,一个简单而纯粹还原生活色彩的家
- 收纳|打柜子不是越多越好,6个地方别随便装,多装一个都闹心
- 银行|如果出现大规模的房贷断供现象,银行和业主将两败俱伤
- 杭州|仁恒置地楼盘窗户玻璃被减配 开发商:全体业主签字后再整改
- 智睿|老装修升级计划 篇九十五:魔都二手房全屋灯光改造,给自己一个明亮智能的家!
- |西晒房、东晒房,一个没人要,一个抢着买,有钱没钱万万要选对
- 淄博|公益验房团再验金茂中欧国际城:维修难排号,金茂业主收房得跨年
