紧凑感|房子再小也是家!北京一家四口住58㎡,空间丝毫不浪费
“北漂”代表着梦想,也代表着梦碎。有人艰难的留下,也有人不甘的逃离。在北京拥有一套自己的住房,真的太不容易了。这期屋主就是在北京努力生活的一家人,夫妻二人都是80后,在北京奋斗并且安家,原本58㎡的空间,两人居住还算充裕,由于大宝、二宝的到来,发现空间越来越不够用,各方面考虑后迎来了本次改造。▼房屋基础信息项目面积:58㎡主创设计:孙佳靓室内及软装:北京营造清美空间设计
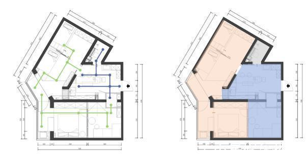
物理模型▼原始户型图58㎡砖石户型,全屋都为砖混结构,让人烦恼的是不能改动结构又不能拆除任何墙面,但采光和通风问题更让人头疼。
▼装修布置图原有空间分隔细碎,因此重新规划布局,将空间划分为两部分,夫妻二人在一侧,孩子在一侧,满足生活需求的同时,提供更合理的空间尺度。
▼入户进门原本昏暗不通风的区域,变成了整个家的中心,以玄关和餐厨空间,作为两侧空间的衔接。设计窗口将自然光线引入,当光线穿过透明的彩色玻璃,带出空间上的蜕变。
【 紧凑感|房子再小也是家!北京一家四口住58㎡,空间丝毫不浪费】
餐桌与燃气管道结合,视觉效果更和谐。餐桌尽头利用镜面装饰,将空间放大弱化小户型紧凑感。全屋地面水磨石,解决房子缝隙藏污纳垢的隐患。顶面采用亮面漆,视觉拉高空间改善居住体验。
进门设计收纳柜,转角开放端景布局,可以摆放绿植和随身物品,白与原木揉合自然简约。洗脸盆外移,扩大卫浴内部面积,日常使用也更舒适,回家第一件事情是洗手消毒。玄关另一侧,合理利用空间开辟换衣间。

▼卫生间设计推开谷仓门就是卫生间,由于洗脸盆外移,空间相对宽松。玻璃隔断满足干湿分离需求,马桶旁配置清洁喷枪便于日常清洁打扫。
▼客厅设计客厅、主卧、洗衣间同一侧,可以减少对小朋友的干扰,同时夫妻二人又拥有属于自己的私人空间。利用长虹玻璃隔断,既可以采光又能保证私密性,拱形结构设计最大限度提升采光效果。沙发装饰画,是提取小朋友画作中的元素,经过加工设计打造属于这个家的画作。

▼卧室设计大面积使用白色,提升空间亮度消弭小户型紧凑感。卧室床根据业主需求定制,采用非标“1800*1900mm”规格的床,床头做背板,18mm的厚度不影响整体美观,上下颜色差带出层次感。轨道灯与客厅轨道灯相连,在视觉上延展空间。
利用阳台配重墙,打造一处简洁明亮的办公空间。
推荐阅读
- 现代风|168㎡现代风,带着浓郁的归属感与愉悦感
- 施工者|不管家多大,装修时做好这12处细节,美观与舒适并存,幸福感提升
- 混淆感|146㎡北欧经典白色三居室,诠释令人心醉的优雅
- 灰尘|家中阳台不要装推拉门了,装这种更实用个性,不得不感叹太聪明了
- 楼市|房子降价对楼市而言反倒是件好事
- 购房置业|经济学家:老百姓60%的钱花在房子上很危险!网友:说得很对
- 房贷|“重启”拆迁?这2类房子或全拆重建,两类人受到影响
- 客厅|参观向华强和陈岚的豪宅,房子层高太矮了,住着不压抑吗
- 大门|房子大门万万不能朝这地方开,师傅看了摇头,怪不得我家越住越穷
- 购房置业|为什么买房不要买靠边的房子?这些问题要注意,开发商不会告诉你
