空间|一家三口人住16㎡的家,连床都没有,他们却说舒服得很!
对于许多年轻人来说,大城市是他们梦想开始的地方。无数人怀揣着梦想,在大城市里打拼,可房价却成为了许多人的“绊脚石”,有一部分人为了梦想,选择租房度日,也有一部分人选择买小户型的家,似乎有了家,才算在这座城市扎根。今天分享一位90后小伙,与大多数在大城市打拼的年轻人一样,@严先生大学毕业后,就在北京白手起家,靠自己打拼,买了一套16㎡的小宅,屋子虽小,甚至连张床都没有,他们一家三口人却说住得舒服。
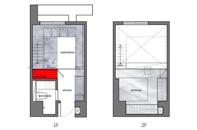
▼房屋概要以及户型布局这是一套位于北京的小公寓,套内面积仅有16㎡,屋子虽小,却比租房好太多了,打拼了好几年,@严先生也算是带着妻儿过上了有房的“理想生活”。仅有16㎡的小公寓,如何容纳一家三口人,又如何让每一个家庭成员都住得舒服,这是本案设计的难题。
▼改造前的小公寓与其说这是一套房子,不如说,就是一个房间+一个卫生间,改造前的小公寓,户型布局极为简单,如同一个16㎡的小盒子一般,小而拥挤。好在层高将近4米,这位设计师的改造设计,提供了便利。
▼户型改造方案尽管房屋小到仅有16㎡,但原始户型结构还算合理,并且还拥有一个小阳台,足够满足洗衣晾晒。而设计师的改造思路在于:4米的层高。利用现有的层高,为空间置入了一个2层空间。改造后的户型,由1层变为2层,且厨房被移动到过道空间,高挑空的客厅空间,空间布局紧凑却足够温馨,一起随我来看看。
▼改造后的厨房空间入户之后,可以直接看到厨房空间。在厨房空间之中,设计师以一字橱柜为焦点,打造了一个集厨房和洗衣机为一体的空间,同时还置入了冰箱、油烟机,功能区域井井有条的同时,还拥有丰富的开门柜和抽屉,满足日常厨房收纳。
▼从客厅空间,望向过道中的厨房,自然清新的原木墙面,还有白色烤漆的橱柜门,在吊顶射灯的衬托之下,小巧却简洁明亮,拥有小家的温馨感。
▼改造后的客厅空间客厅面积尽管不是很大,但是将近4米的挑高空间,一扫了空间的局促和拥挤感,搭配简洁干净的大白墙,再利用嵌入式的灯带+射灯,整个客厅空间素简之余,多了一份通透之感,视觉效果也显得舒适。
▼客厅里的收纳设计而电视柜一直沿着窗户,延伸到楼梯下方,形成了一个超大的U字型柜体,既能满足客厅的生活杂物收纳, 而这些柜体又能充当卡座,虽然只有一组两人座的沙发,但是家里来访客人的时候,还是拥有卡座可以坐人。
▼悬浮式的楼梯而通往二层空间的楼梯,以悬浮式的设计为主,看起来就像是悬浮在半空的阶梯一般。实际上,是采用了5mm的铁板做成的踏板,一头嵌入墙体之中,另一头则以钢索加固。
▼看似轻飘飘的悬浮式楼梯,却拥有充足的平衡性,而且从天花板上垂落而下的钢索,也能充当扶手使用。
推荐阅读
- 美好生活|欧哲门窗副总经理周志军:「拓」不忘初心同心同德,成为美好生活空间首选品牌
- 银行|请注意!今日起各地房贷利率普遍下降5个基点 业内预期:部分地区房贷利率或仍有下调空间
- 背景墙|97㎡现代风,以时尚打造空间,以新颖突出特点
- 购房置业|上海女子拍下对楼住户家无敌露台,超大空间网友酸了:买房送操场
- 墙面|过道能''挤''出空间 5种方式帮你充分利用每一寸,档次蹭蹭上涨
- 全屋|次卧空间小,老婆灵机一动不装“床”,孩子一眼就喜欢上了晒晒
- 轻奢风|什么样的生活空间,才算得上是美好现代轻奢风,大道至简
- 购房置业|三四线城市的住房真的值得购买吗?不能一概而论,还是有升值空间
- 箭牌家居第二季全空间定制设计大赛获奖作品公布|定制快讯| 大赛","sex_score":"0","source":"wspuser_3beijing,nbbengnewid_e4563a267737194b97f7d45af8307142,nbbengdu
- 诗意|142㎡现代禅意,儒雅舒适的空间,满屋子的轻松与诗意
