平层|85㎡loft风平层,单身狗的个性时尚家,无拘无束,自在惬意
本案中的loft风格是时尚的居住与生活方式的代名词,此一风格大胆奔放,它的内涵是高大而敞开的空间,具有流动性、开放性、透明性、艺术性等特征。这种起源于欧美,现正在国内各地悄悄兴起的设计风格,被作为一种“家”的时尚得到推崇。

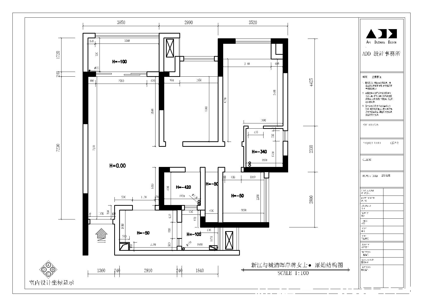
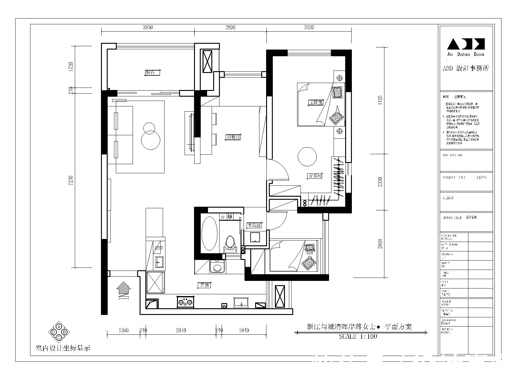
结构改造
本案业主是一位独居的女性,房子的原始户型为三室,卧室利用率低,所以设计师进行了重新布局,设计为两个卧室结合一个多功能房的格局。经过结构改造之后,空间宽敞明亮,原有的厨房变为了开敞式空间,设计师利用原有过道扩大了餐厅面积,增加了岛台,同时把生活阳台纳入厨房,将主卫打开做成衣帽间,并改变了次卧的进门方向,把原始进门位置做成了衣柜,在增强实用性的同时,还提高了空间利用率。此外,由于原始卫生间入口正对次卧,所以设计师将入口位置改到了右侧,并缩短了过道。

案例详解
客厅
客厅以高级灰为主调,从墙面到沙发,再到地面,构成了色彩的渐进效果,给空间带来递进的层次感。空间的无主灯设计,光源恰到好处,配合落地窗的采光,使客厅显得透亮,简洁,大气。
设计师利用原有的承重墙做了半墙隔离的设计,形成隔而不断的视觉效果,使得空间整体开敞,消除了空间各自为阵的闭塞感,也让互动无处不在。
【 平层|85㎡loft风平层,单身狗的个性时尚家,无拘无束,自在惬意】
棉麻材质的双人沙发为空间营造了一种休闲放松的氛围,搭配一旁的绿植,使空间的清幽气息油然而生。背景墙挂着业主的风采照,淡淡的装扮尤为符合空间的气质。
餐厅
餐厅与客厅动线相连,处于同一空间,开敞的空间符合本案的风格特点,使空间彼此的互动不止。
黑灰搭配的餐椅,与乌黑的木质餐桌,在柔和的灯光映照下,给冷冷的空间平添了几分暖意。两侧宽阔的过道使得用餐空间与厨房的互动毫无局促感,也让归家的业主感到舒适放松。
设计师给餐厅设计了一个岛台,动线短且流畅,与餐桌组合,能满足日常使用,以及闲暇之余与三五朋友的小聚需要。 

厨房
设计师将生活阳台与厨房连通,使功能性贯穿空间,整体性更强。米色的墙地砖与白色的厨电搭配,相得益彰。
主卧
主卧采用清新的木质与温柔的粉色打造,温柔与冷硬恰到好处。干净利落的空间布局没有过多的装饰与陈设,设计师一切的心思都只为业主呈现一个宁静安稳的休憩之所。
推荐阅读
- 屋主|56㎡小户型老房改造,小而美的设计!
- 现代风|168㎡现代风,带着浓郁的归属感与愉悦感
- 深色|155㎡简约风,承载着三代人的生活,不花哨让家务少一半
- 混淆感|146㎡北欧经典白色三居室,诠释令人心醉的优雅
- 饱和度|173㎡轻奢新中式,古典和现代的碰撞,唯美浪漫!
- 背景墙|97㎡现代风,以时尚打造空间,以新颖突出特点
- 地板|160㎡四居室,玄关比我家卧室都大,这才是真正的低调奢华有内涵
- 棚户区改造|开盘预告|合肥又有6盘要加推,均价1.39-2.54万/㎡全都有
- 小房间|参观140㎡大婚房,朋友都夸餐边柜有档次,我却更喜欢主卧的飘窗
- |73㎡复古风两居室,年轻夫妻的高品质生活
