三居室|126平现代风三居室,暖色让客厅温馨,灯光的设计是一大亮点
本案是一个现代风格的装修,126平米的三居室并未做过多的装饰,运用简练的线条打造出一个具有格调的居住环境。
客厅是家居设计的核心区域,是我们长时间活动的区域,也是客人来访时的主打区域。客厅设计的好坏对于家居整体的颜值有很大的影响。
客厅的主灯是dolong设计的工人师傅现场定制,原本商场要6000元的灯具,现场师傅3000元搞定,效果非常不错
沙发背景墙没有选用传统的挂画而是选择了不对称的装饰设计
客厅空间的暖色基调,让空间更加温馨,灯光的设计是本案一大亮点,不同的光源给空间氛围有着不一样的营造
卧室里不要放过多的电器,特别是电视、笔记本,辐射和电源灯都会影响睡眠。大部分的人都喜欢躺在床上看书或看电视,这种行为非常不可取,它也会对我们的健康造成影响。
老人房也是时尚的灰白+原木色的配色
在当代家庭装修中,很多餐厅与客厅通常是一体的,开放式的设计,可以让公共更大。所以,餐厅设计从色调和材质上,要充分考虑其与整个房子其它空间的延展性,特别是与处于同一个公共空间的客厅区域。如果可能的话,可以把餐厅做成客厅的延展。
餐厅顶面的梁处理,没有用传统的直角,而是采用了斜面的手法,弱化了梁的感觉
装修厨房时,尽量多留些插座,以备不时之需。比如:微波炉、烤箱、消毒柜等,可以考虑嵌入式设计,既省空间又整洁。从油烟机的选择上,可以根据个人习惯,但必须保证强大的吸烟能力。
U型厨房,两边的餐柜足够一家人的厨具收纳了
如果新房一进门就能看到客厅的话,玄关装修时就一定要设计一个隔断或者是屏风来增加私密性,这样既不会影响到客厅的光线,也能起到保护隐私的作用。
开放式的玄关,入户后更加开阔,餐厅和玄关利用了墙面的装饰砖连贯成为一体
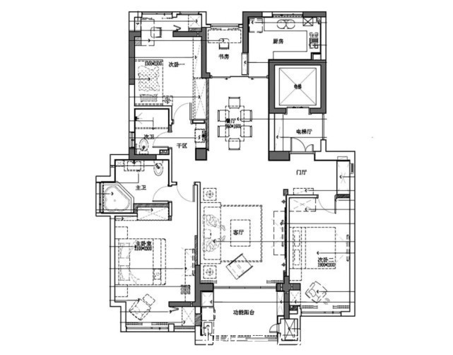
【 三居室|126平现代风三居室,暖色让客厅温馨,灯光的设计是一大亮点】户型图
推荐阅读
- 混淆感|146㎡北欧经典白色三居室,诠释令人心醉的优雅
- 卫生间|129平现代美式三居室,打造出一个舒适又温馨的美式家
- 三居室|118平现代风三居室,一个简单而纯粹还原生活色彩的家
- 郑州|买房月供曝光!郑州最新平均工资8694元,撑得起房贷么?
- 石家庄|144平的面积,无人值守棋牌室,这是如何做到的?
- 简单感|现实的平衡取舍,才是生活之道!143平现代风格设计欣赏!
- 她家148平米,进门就被玄关迷住,不做吊顶跟背景墙,阳台超漂亮
- 修建|精选10套三层户型图纸,占地面积均不足百平,尤其适合新农村修建
- 南通|拍卖成功!江苏南通一处197平住宅192万成交!
- 购房置业|农村建新房就选这套四层别墅,占地100多平,8间卧室人人都有地睡
