灰木纹|480㎡禅意空间,日式实木别墅,自然和谐宁静的家
业主需求
本案业主是一位上市公司高管,在设计之初曾向设计师提出,自己需要一个可以放松心灵的家,要求居家空间自然和谐,最好看不到设计的痕迹。
设计思路
设计师根据业主的年龄,喜好,以及要求,将本案定位为实木日式禅意空间,特点是干净清爽,落落大方。设计师通过实木及挂画营造出轻松自在的环境氛围,给业主带来更好的居家生活体验。
材质运用
本案在选材上紧扣设计主题,整个空间运用白色调及原木线条,让空间在材质上拥有粗旷与细腻的对比,从而体现出层次感。另外,设计师还在负一层客厅的L形剪力柱上做了手打面的锈石黄石材,表面凹凸不平,似鳞片状的肌理在罩面处理后,能出现些许的晶透反光,从而在柔美的空间中注入了厚重感与力量感。地面则采用了灰木纹石材。
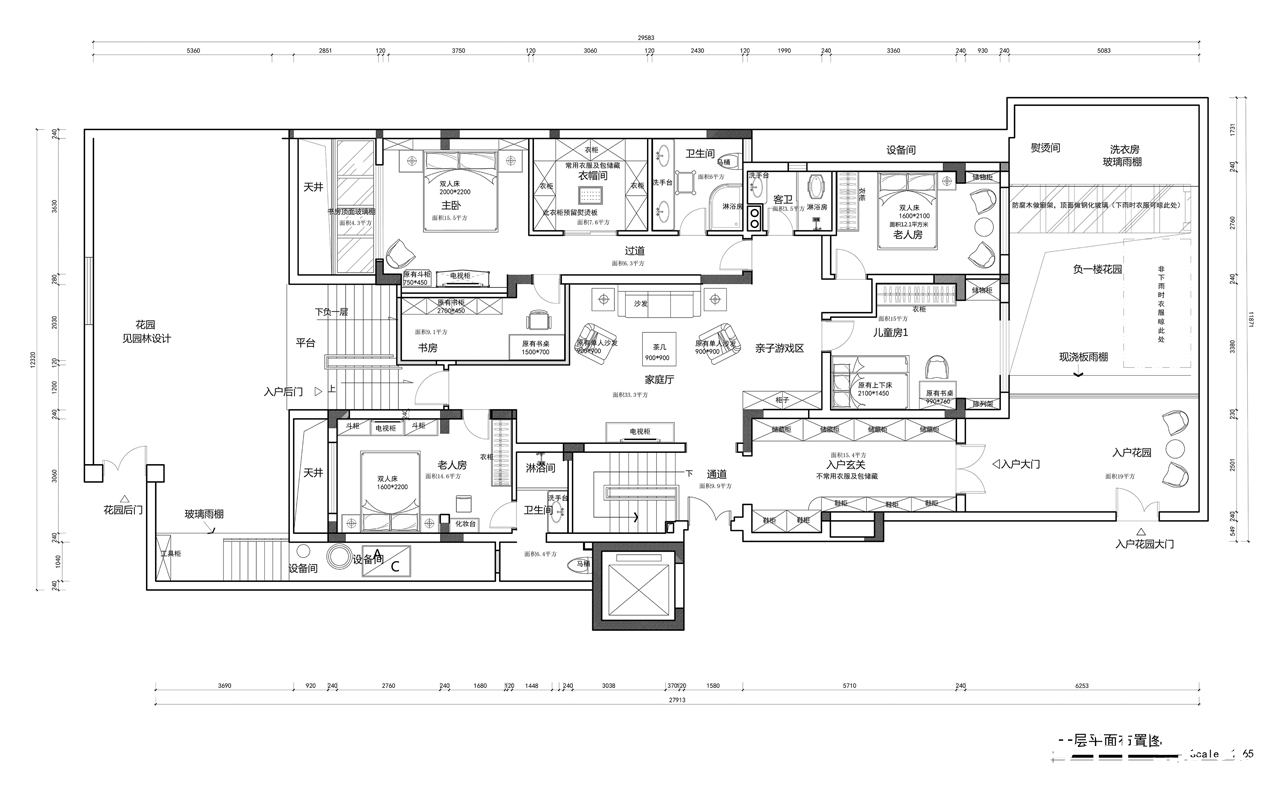
结构改造
设计师把原本只有一层的房子通过土建改造为了两层,不仅增大了使用面积,更增加了空间舒适度。同时,合理利用梁与柱,以区分空间使用功能。为了增加室内的采光,设计师适时进行开窗及门洞设计,从而保证了客厅的舒适度,厨房的宽大,以及极具风格的茶室,让业主无论身处哪个空间,都能感受到家的轻松与舒适。

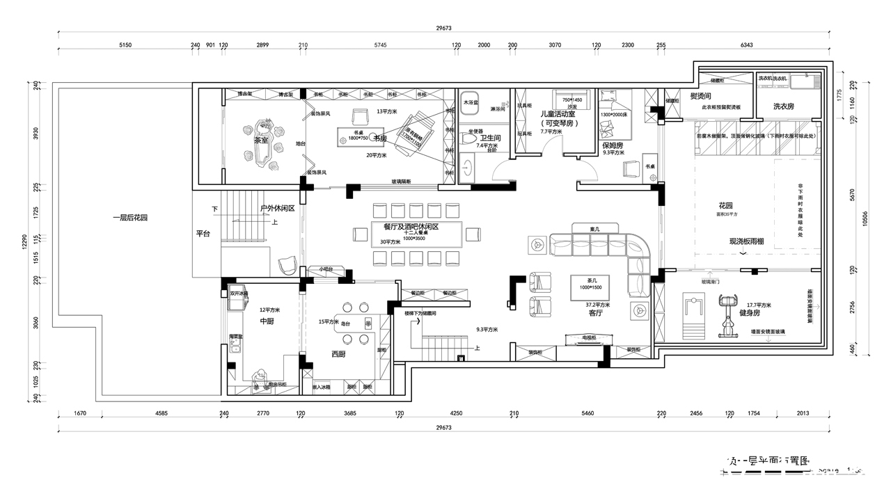
案例详解
入户
拉伸的空间设计,整齐划一的柜子排列,勾画出业主精致的生活格调,也是喧嚣世界与静谧空间的交接之地。
客厅
客厅大面积留白,原木穿插其中,米色布艺沙发搭配黑色单人椅,让业主在家就能享受休闲时光。简洁的木质茶几符合空间的整体气质,棉麻地毯暗示业主恬淡的生活品味。
设计师独具匠心的吊顶设计,打破了传统的一式到底理念,赋予了空间变幻的韵味。而日式枯山水成功运用到了顶面及墙面,使得日式禅意的简朴之美溢于言表。
电视墙运用天然的大理石与木质栅格搭配,呈现出现代与古韵相融合的空间气质。同时,木质能中和石材的冷冽之气,让客厅冷暖适宜。栅格内还是客厅小物件的收纳空间,能保证居家环境的整洁有序。
餐厅
客餐厅风格一脉相承,两者之间的宽敞地带给居家生活提供了各种可能,而通透的视觉体验则令人感到心旷神怡。
简朴的木质长桌,让用餐具有仪式感,家人间的温情时刻也就此展现。流线型的顶上设计让空间富有诗意,白色的冷,石材的硬朗,木质的温润,相互交织融合,营造出一种和谐的自然之美。
推荐阅读
- 灰尘|家中阳台不要装推拉门了,装这种更实用个性,不得不感叹太聪明了
- 木纹板|装修案例欣赏:小北欧风格的居家设计,简洁的同时又不失温馨感!
- 购房置业|25万买来的房子,专门用来存放骨灰盒,邻居发现要退房,合理吗
- 爱格|115平现代简约风,灰色影视墙是格栅和木饰面的结合
- 丽水|200㎡现代简约 | 高级灰与黄色 永不落幕的时尚
- 深灰色|设计装修中卧室颜色选灰色,怎样才能有品质又高级?
- 木色|89 ㎡北欧风装修,低调灰+白色+木色,温情满满!
- 灰尘|新房住一年遗憾,尤其是这11个地方装错了,要后悔
- |9到11层是扬灰层?7上8下?到底哪几层是黄金层?
- 200㎡现代风,原木、纯白、浅灰三色融合,打造通透空间
