风格|145㎡日式风格实景案例,最温暖的感觉最质朴的风格!

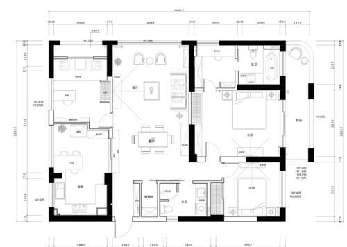
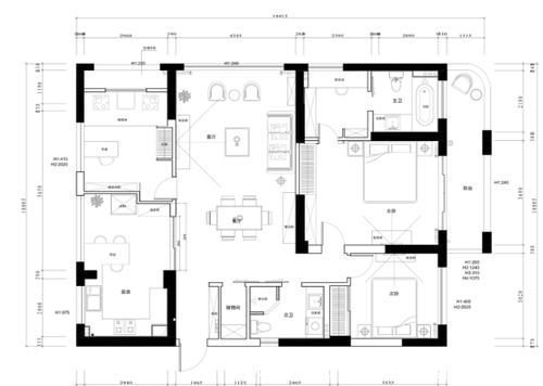
平面图△
本案例位于杭州城西文一西路与东西大道交叉口南侧,紧邻西溪湿地,占据西溪稀有山地景观,兼得余杭创新基地-西溪科技岛未来的重点发展区。
【 风格|145㎡日式风格实景案例,最温暖的感觉最质朴的风格!】日式风格特点就是在日常生活中能与大自然融为一体,借用一些外在的自然景色,为室内带来不一样的风景,在材料的选用上也特别注重自然的质感,多以木质家具为主更加的舒适温暖。
玄关△
玄关的全身镜让咱们可以在出门时好好的整理一下衣物,有一个好的面貌出门!而且木质的玄关柜质感也太好啦!


客厅△
客厅都是采用木质的家具材料,极具设计感的挂表是客厅的亮点。无论是沙发还是椅子都是简简单单的设计但是看着就舒舒服服的!

餐厅△
舒适的生活最开心的时候大概就是吃饭的时候了,所以餐厅的设计越舒服在日常生活中才能更快乐!
厨房△
厨房采用开放式的形式以木质家具为主,但是操作台还是用了易打扫易清洁的大理石的材质,这样可以保证厨房的卫生不会出现问题。

卫生间△
卫生间需要格外注意防滑处理。所以店面防滑砖是一定要的!
书房△
卧室△
以上就是这套日式风格的全部内容啦!如果喜欢温暖舒适的日式设计不妨看看这套案例,能有什么不一样的灵感!
推荐阅读
- 屋主|56㎡小户型老房改造,小而美的设计!
- 现代风|168㎡现代风,带着浓郁的归属感与愉悦感
- 深色|155㎡简约风,承载着三代人的生活,不花哨让家务少一半
- 混淆感|146㎡北欧经典白色三居室,诠释令人心醉的优雅
- 饱和度|173㎡轻奢新中式,古典和现代的碰撞,唯美浪漫!
- 背景墙|97㎡现代风,以时尚打造空间,以新颖突出特点
- 地板|160㎡四居室,玄关比我家卧室都大,这才是真正的低调奢华有内涵
- 棚户区改造|开盘预告|合肥又有6盘要加推,均价1.39-2.54万/㎡全都有
- 小房间|参观140㎡大婚房,朋友都夸餐边柜有档次,我却更喜欢主卧的飘窗
- 简单感|现实的平衡取舍,才是生活之道!143平现代风格设计欣赏!
