主卧室|130平米新中式风,听了老公的话,餐厅酒柜这样设计,美观又实用
\"
装修风格:现代中式风格
实际面积:130平米(室内面积)
空间格局:三房两厅
设计师:风云帆设计工作室
项目位置:广东省东莞市
装修造价:全包价格20万
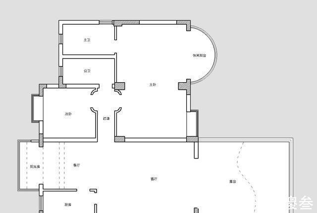
原始结构图
此套设计是一个老房改造,之前的东西都不要了,拆成毛坯后,每个地方都还是比较中规中矩,公卫的门只对客餐厅过道,圆形的过道似乎浪费了一些面积,也让房子显得不方正。
平面布置图
通过五天的时间跟男女业主来回的沟通讨论,确定了这稿方案:1.入户改成露台,作为了一个花园休闲区。2.客厅和餐厅之前,因为客厅是下沉式的,所以做了门洞,让空间分割。3.餐厅的阳台改成了一个开放式的茶室。4.改变厨房位置,将原有厨房位置做成了书房。5.之前的圆形过道,做平了,过道直通主卧室房门。
入户花园
入户花园
入户花园
这个入户花园特别大,称得上一个空中花园了。功能的规划也做了很多,有喝茶的茶台,还有鱼池和花池。护栏封的木质护栏。家里面小孩都很大了,所以不用考虑安全问题,而且那一边还做了一个花池,拉远这个木质护栏的距离。这个空间不仅有鞋柜,还有洗手池,做的台上盆。
客厅
客厅
欣赏过如此盛景的入户花园之后,紧接着进来的就是客厅了。客厅和入户花园之间做的推拉门,以此来保证客厅的采光。电视背景墙是两边展示柜中间大理石的对称式设计,和沙发背景墙中间壁画两边木质格栅相呼应。
餐厅
餐厅
进入到餐厅要走三阶楼梯,让房子住出了别墅的感觉,让生活更加的有仪式感。餐厅的酒柜不仅可以看做是储物收纳,还可以当造型来欣赏,因为它实在是太美了,餐厅两边都是酒柜,收纳空间超强。
主卧室
主卧室
主卧室是一满墙的木质衣柜,衣柜中间的柜门到顶显得很整体,两边做了不一样的造型,让其乱中有序,增加欣赏感,对于业主来说收纳是很重要的,因为女业主非常喜欢买买买,所以在床头也做了床头柜和衣柜的结合设计。床头背景的一幅画非常有中式特色。
主卫
主卫
这是主卫,墙面做的文化石墙砖,很有艺术感。文化砖用在卫生间的还是很少,不过在设计师的搭配上一点都没显得很突兀,反而更加的协调。主卫不是很大。
推荐阅读
- 屋主|56㎡小户型老房改造,小而美的设计!
- 地板|160㎡四居室,玄关比我家卧室都大,这才是真正的低调奢华有内涵
- 床头柜|95后姑娘的“穷装”卧室火了,环保又精致,软装的力量真强大
- 小房间|参观140㎡大婚房,朋友都夸餐边柜有档次,我却更喜欢主卧的飘窗
- 买房|二手房指导价意义非凡,主要有这4点,想购房的来看看
- 宋智雅|不只穿假货!宋智雅豪宅全是租的,公主风奢华住所都是TA在出钱供
- |龙吟师傅教你在卧室找到自己的桃花位
- 垃圾桶|家庭主妇:厨房地柜不要全打满,空一格更实用!后悔我家装太早了
- 银行|如果出现大规模的房贷断供现象,银行和业主将两败俱伤
- 杭州|仁恒置地楼盘窗户玻璃被减配 开发商:全体业主签字后再整改
