在很多城市都有年龄超过10年以上的老房子,但只有北京、上海等地的老破小房子受到年轻人的喜爱,尤其是售价低一些的小户型,学区房或者特别优质的小区除外。
不过,也是现代年轻人生活品质的提升,不愿意过搬来搬去的生活,也不想面对各种刁难的房东,所以很容易萌生出想要买房的念头。比如齐家敏敏今天带来的这位90后姑娘,不想一直过租房的日子,买下了一套高层旧房,使用面积46㎡,装修成极简风格,一个人住。过着让别人羡慕的生活,这样的人生才算完美!

改造前入户
入户即是厨房和玄关相连,与卫生间面对面。功能区界限十分模糊。并且一开门,整个空间暴露在视野下,一览无余,影响整体的美观度和舒适性。

改造前客厅
改造前客厅,没做任何收纳,沙发、茶几、冰箱和桌子随意摆放十分拥挤,装修风格也不符合年轻人审美,深红色地板过于暗淡压抑,大多数设施也无法使用。

改造前卫生间
改造前的卫生间,进门就面对马桶,动线受到阻碍,头顶上方悬挂一个热水器挤压空间。而且内部不同墙体阳角碰撞形成了很多藏污纳垢的地方,收拾起来很麻烦。

改造前卧室
卧室更加简单,开门就是衣柜侧面,形成了视觉压迫,同时也无法扩大衣柜宽度,保障收纳的整洁。

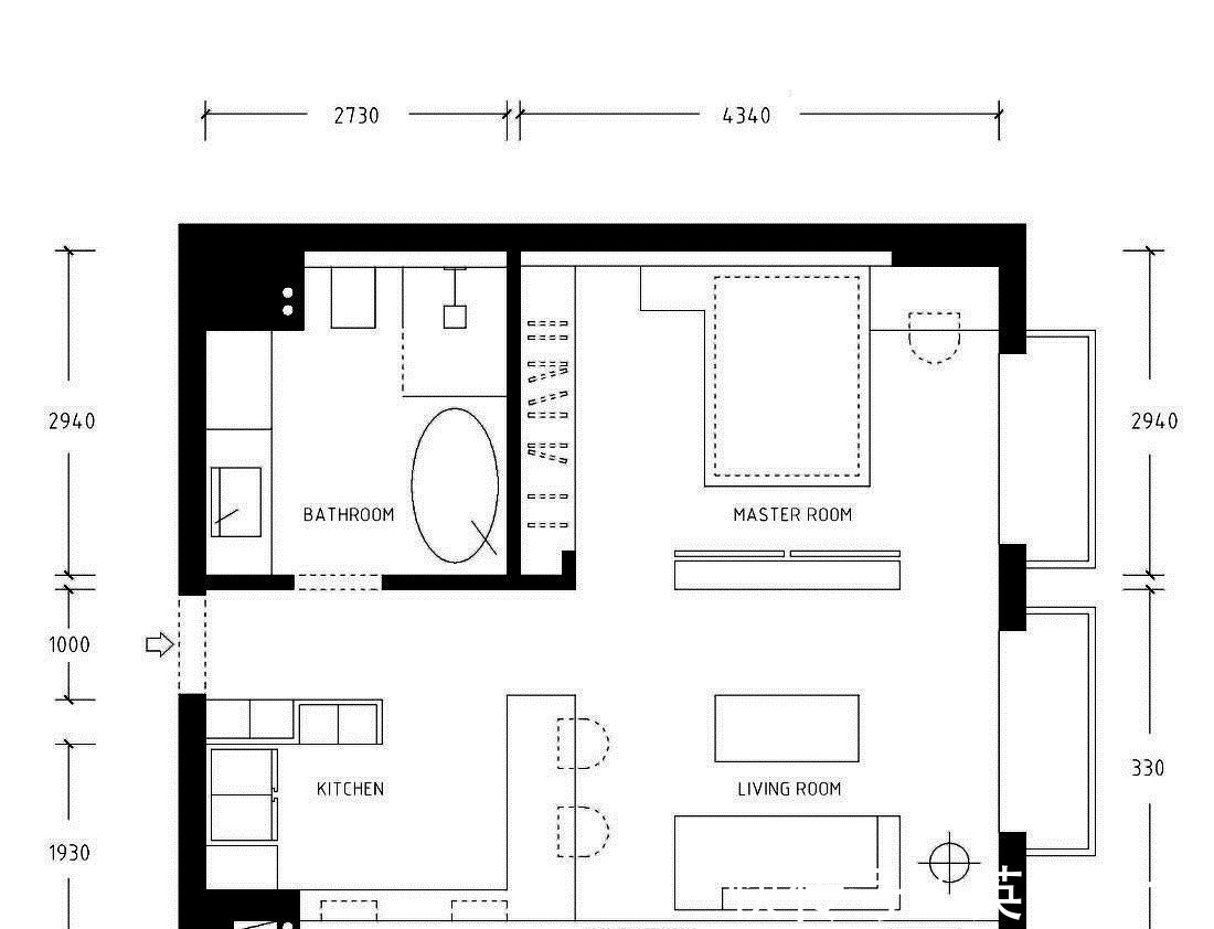
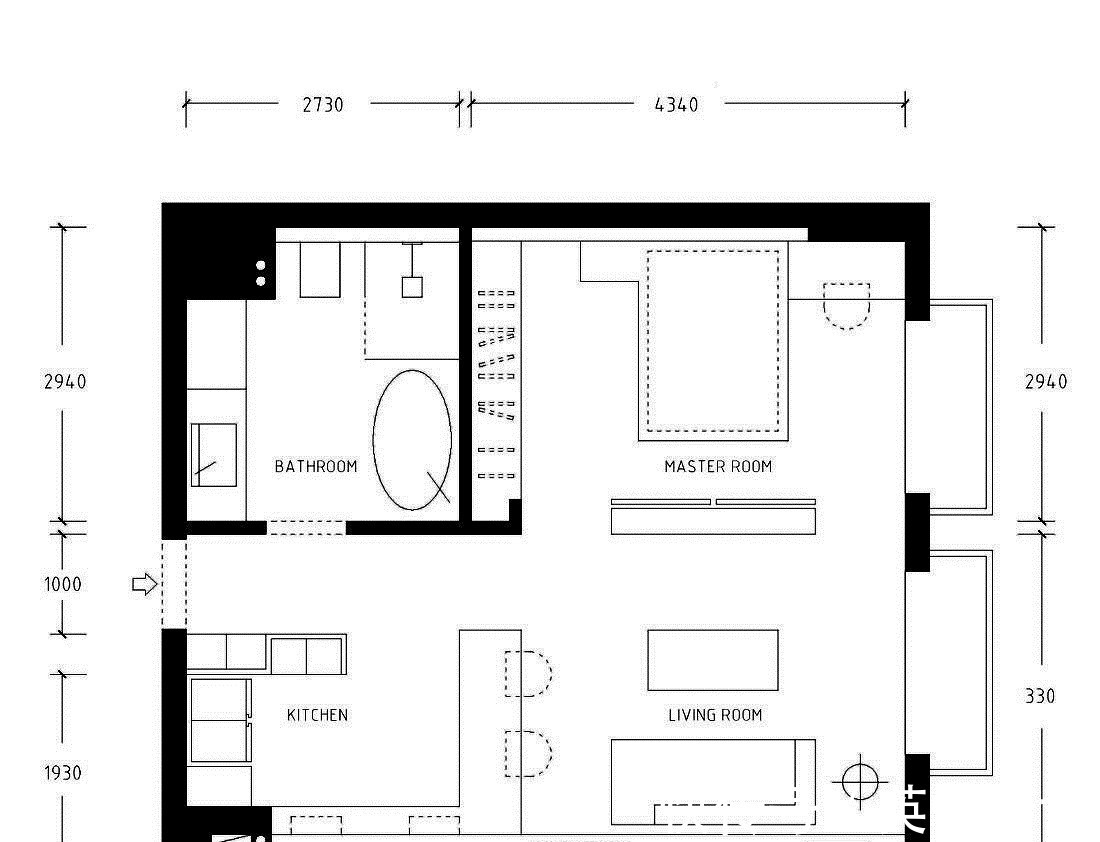
平面设计图
装修布局图,根据屋主的需求对原户型做了整改,让居家的动线更加符合年轻人生活习惯,卫生间三分离设计,保证了生活舒适度,空间利用率最大化。

玄关
装修完的入户门厅,首先拆掉原有的装修将功能区重新划分,通过一组S型的收纳柜设计,提升入户和厨房的收纳空间。解决了之前厨房正对卫生间门的局面,功能区的界限更加清晰可见。

客厅
改造后的客厅,整体选择用大面积浅色系,提升整个空间的亮度。沙发后定制的背光时尚书架,满足了屋主的要求,也给客厅的收纳提供便利。

客厅
为了最大化提高空间的美观和实用功能,整个顶面采用无主灯设计,保证了舒适的层高。书架旁的黑色区域是一张壁挂床,不仅不占用任何地面面积,也解决了朋友需要留宿的问题。当朋友来玩时,放下来可以和沙发形成一个合围的空间。黑色背板也可以用来装饰和涂鸦,进一步利用。

厨房

吧台
现在的厨房,橱柜选择白色调,和整个空间形成视觉统一,门口的鞋柜另一半做立柜收纳,提升厨房收纳能力。吧台不仅满足解决了用餐问题,也可以当作办公桌,丰富了空间的功能性,也起到分隔功能区的视觉效果。
推荐阅读
- 家居|看了他家100㎡的房子,才知道什么是岁月静好,家居氛围太棒了!
- 收纳|花光所有积蓄买60平新房,把床抬高60公分,人人看了都夸聪明
- |水庆霞买不起100平方房子?只是搬家而已,她的旧住宅均价8万5
- 空间|她的极简新房,135平方米横厅结构,室内简洁干净,尽显轻松自然
- 卫生间|看了她家,才知道灯光设计有多强大,哪怕刷大白,也超有氛围感
- 时尚|看了这对夫妻的家,才知舍弃客厅有多爽,全屋简约时尚,一步一景!
- |购房时应选“边户”还是“中户”?看了那么多房子,终于有了答案
- 飘窗|看了这些房子装修细节,真想把自己家砸了重装,这才是实用的设计
- 瓦工|瓦工给橱柜加了一层底座,完工后太实用,邻居看了都想重做
- 邻居|老公坚持在客厅打矮墙,硬生生多出一间房,邻居看了都要学着做!
