衣帽间|2层小洋房,三代人同住,有庭院有露台,是多少人羡慕的生活状态
好像不管房子大小,独栋还是一楼,大家都想拥有个花园式庭院,而下面这位业主就稍微有一点点“疯狂”了,两层楼的小洋房,光庭院和露台就占了将近一半面积,家里不管哪个空间都能拥有超好的视野,出门就跟个小公园似的,住在这儿可别再整天窝在家里了!

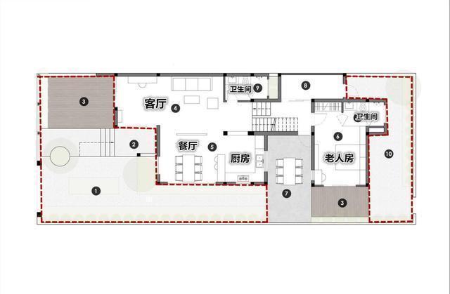
这套房子面积190㎡,上下两层三代人同住,房子的一楼主要是公共区域和老人房,二楼有主卧套房以及儿童房,光卫生间就有4个,虽然空间大,但私密性也是极好的,大家住起来也不会相互打扰!


进门就是小院子:


客厅木质背景墙搭配米色休闲沙发,茶几、落地灯和绿植,没有扰乱视线的杂色堆积,一切看上去简约清爽,旁边的落地窗通向露台,能让室内和室外景观交融,采光和视野都很不错。

由于考虑空间的通透性,所以利用餐厅和客厅之间的隔断作为电视柜。


外面的露台可以是全家人赏花品茶的地方,也能摆上排队桌,一个烧烤炉,邀上几个好友大家一起周末聚在一起休闲娱乐。
【 衣帽间|2层小洋房,三代人同住,有庭院有露台,是多少人羡慕的生活状态】

半开放式厨房从收纳方面看,虽然橱柜空间不大,但左边有到顶的电器柜,另外头顶还有双层吊柜设计,看似储物空间大到让人羡慕,但顶部的柜子拿东西实在是有点麻烦。

吧台设计可以增加家里的情调,右侧有个开放式酒柜,这儿也是家人之间一边做饭一边里聊天的地方。

吧台的另一边就是餐桌,阳光透过窗户洒进来真的很舒服,原本就是宽敞的餐厅,视觉效果直接超越很多别墅!


二楼主卧不仅有阳台,还有卫生间和衣帽间,拥有独立的私人空间,镂空隔断作为电视背景墙,刚好可以分割休息区和衣帽间,还不会影响通透感。


角落处的开放式小书房。

推荐阅读
- 中小学|南昌又要新增一所学校
- 豪宅感|真的只有30平!小户型这样逆天设计,蜗居也有豪宅感!
- 收纳|佩服!她把仅55㎡的家重新改造,有“4室”两卫,老破小逆袭成功
- 呈贡|小夫妻买学区房跟房东砍价69万,房东:这不是忽悠人
- 橱柜|定制橱柜的小心思,这6个细节一定要知道,避免踩雷和白花钱!
- 夫妻俩|婚后不跟父母住,在隔壁再建一栋,小夫妻天天住新房三餐去老房吃!
- 装饰画|70平小房子,虽然老婆嫌小,装修花12万,看着还是挺舒服的!
- 腻子|50年包工头酒桌说实话:装修界闭口不谈的15个潜规则!要小心
- 五证|注意!签订购房合同一旦忽视这5个“小问题”,你就等着被坑吧
- 贷款买房|拿到房产证只是开始,后续还要做好这5件小事,否则房子不是你的
