工作室|在66㎡小家里帮三代人实现音乐梦,这个设计太酷了!

本案的业主是一家五口,三世同堂,音乐是一家人的共同爱好。于是在这个使用面积仅为66平米的空间中,好好住认证设计师@戏构工作室
【 工作室|在66㎡小家里帮三代人实现音乐梦,这个设计太酷了!】一起来看看吧!
“克莱因认为0:47:167这种蓝是理想之蓝,是宇宙之蓝,也是绝对之蓝。蓝境亦是理想之境,我们希望用最单纯的色彩唤起最强烈的心灵感受力。 ”
—— 戏构工作室
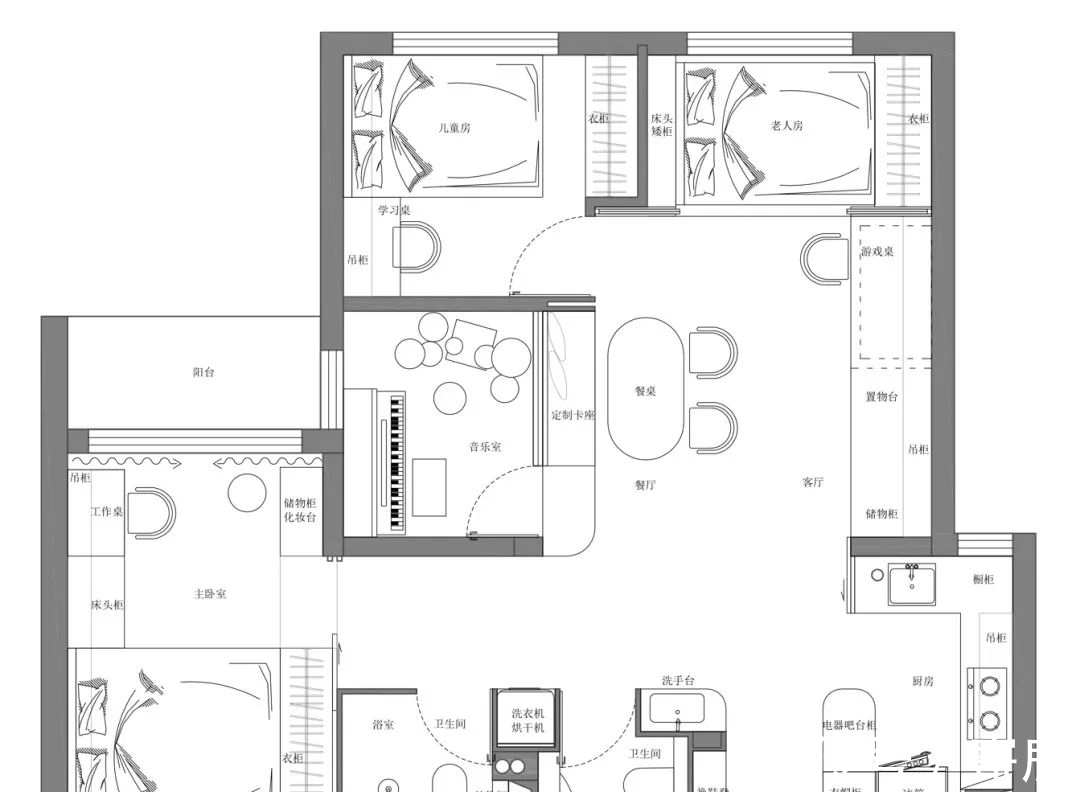
户型 3 室
面积 66 ㎡
花费 40万
位置 北京 朝阳
以下图文均来自设计师@戏构工作室

项目地点位于北京市朝阳区肖村地区,建筑面积90平,使用面积为66平,原始户型是一个较为封闭的三室一厅毛坯房。业主为一家五口,7岁的孩子刚上小学,活泼好动,音乐是他们的共同爱好,我们也希望将音乐作为纽带串联起一家人的兴趣爱好。

物尽其用、寸土必争,

改造后,


正如克莱因所说的:表达一种感觉,不用解释,也无需语言,用最单纯的色彩便能唤起最强烈的心灵感受力。我们在考虑将克莱因蓝引入空间时,希望它同音乐一起直达心底。

穿梭蓝境中,会被蓝色力量所治愈,洗下一天的灰尘与疲惫。如果说蓝色是能量,顺滑的流线型便是介质,将纯净之蓝、音乐、光线一同传播至心灵深处。

空间尽头的蓝色,象征着天空和海洋,没有边界这般明净空旷使人迷失其中,彷佛置身于广阔的天际。

弧线带来了空间中的连续,廊道的一旁是家务区,功能随着场域系统性的展开。

业主一家对收纳要求极高,我们在入口两侧设置了大量储物空间,为了减少物品外露,只有部分鞋柜与临时存放区域没有设置柜门,创造出更易维护的理想化空间。入户后光口大开,充足的光线与明亮的配色,予人茅塞顿开之感。

结合业主的烹饪习惯,打造简洁明快的厨房空间,宽阔的操作台面配合开放性的处理,让烹饪与用餐场景融为一体,互动性的提高也让烹饪不再枯燥。
灰色的树脂地面和顶面的流线型,巧妙地划分出客厅边界。

阳光从窗口射入,大面积的白,点缀克莱茵蓝、木色、浅灰色,让客厅空间十分明亮舒适。卡座下方同样可以收纳,减少暴露生活中产生的零碎。
推荐阅读
- 屋主|56㎡小户型老房改造,小而美的设计!
- 现代风|168㎡现代风,带着浓郁的归属感与愉悦感
- 深色|155㎡简约风,承载着三代人的生活,不花哨让家务少一半
- 混淆感|146㎡北欧经典白色三居室,诠释令人心醉的优雅
- 饱和度|173㎡轻奢新中式,古典和现代的碰撞,唯美浪漫!
- 住宅|现在买房,选“高层”还是“低层”好专家20年后差别很大
- 背景墙|97㎡现代风,以时尚打造空间,以新颖突出特点
- 购房置业|经济学家:老百姓60%的钱花在房子上很危险!网友:说得很对
- 地板|160㎡四居室,玄关比我家卧室都大,这才是真正的低调奢华有内涵
- 缴存基数|@长春人 2022住房公积金缴存基数有调整 详解全在这
