?装修是一场无硝烟的战争,我们要做好万全的准备来打这场战役。首先需要考虑的就是装修预算了,邻居家居然只用了13万元,就把142平米的三居室装修拿下了,真是出乎意料!
客厅的设计太重要了,如果你家里有小孩,不建议你的客厅家具和装修太过于繁琐,因为小孩需要充足的空间供他玩乐,而且现在电视也不是人们生活的必须品,所以现在很多人家的电视都是摆设,那么电视背景墙就可以简单一下,现在很多人家不做背景墙了,只是贴上壁纸就可以起到很好的装饰作用。很多人都纠结到底要不要吊顶,其实小编觉得这个根据自己家的情况而定,要是装修预算有限客厅就不要用吊顶了。
??

??
浅浅的奶油色营造柔和宁静的氛围,带来轻盈与通透的感觉。
卧室的主要功能是休息,属于私人空间,所以卧室装修不必有过多的造型,卧室装修越简洁越好,墙壁可适当做些点缀,还要注意墙壁材料和家具的搭配得当。卧室装修设计风格可以根据窗帘、床罩等软装决定,它们的色彩影响了卧室的风格,装修的时候要格外留心。
??

??
临窗设置了实用的工作区,不仅满足了日常所需,还具备一定的收纳功能。白色提亮空间色调,与粉灰搭配清爽而亮眼。
??

??
粉灰色调搭配在一起瞬间生出一种高级质感,作为背景奠定空间优雅而柔和的基调。
??

??
精致华美的欧式大床与整体风格相吻合,床头背景墙无论是造型上还是色彩上都颇有新意,让人眼前一亮。
在当代家庭装修中,很多餐厅与客厅通常是一体的,开放式的设计,可以让公共更大。所以,餐厅设计从色调和材质上,要充分考虑其与整个房子其它空间的延展性,特别是与处于同一个公共空间的客厅区域。如果可能的话,可以把餐厅做成客厅的延展。
??

??
餐厅背景墙以四幅艺术挂画装点,丰富空间层次的同时提升家居品位。餐桌椅与客厅沙发茶几的格调保持一致,精致而优雅。
??

??
客餐厅之间色调统一而平和,空间动线明晰而流畅。饱含欧式韵味的灯具,也让整个空间气质更为突出。
书房是平时学习工作的空间,所以隔音一定要好,这样才不会被打扰。在装修风格上中式简约或者是现代简约都是不错的选择。但是书房的空间不一定很大,可以让整体的家具与装饰搭配留有一定的空间,以免产生压抑感觉产生。
??

??
书房采用了榻榻米设计,不仅节省空间,而且具有超强的收纳功能。蓝色的加入让浅色空间多了些静谧感,营造明快而又平和的氛围。
??

??
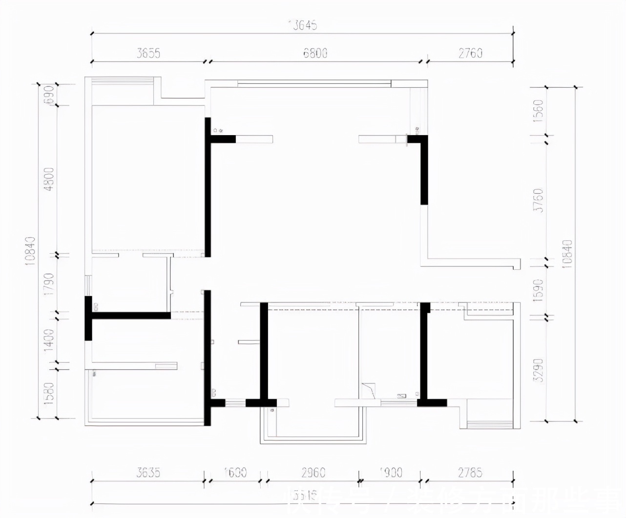
户型图
【 客餐厅|142平欧式风三居室,各个居室映衬的柔和淡雅,独立且相融】
推荐阅读
- 有限公司|青客租房申请破产清算:连续巨额亏损,元老级管理层出走
- 客厅|参观向华强和陈岚的豪宅,房子层高太矮了,住着不压抑吗
- 烤漆面|老公坚持餐厅不做柜子,原来用吊兰做隔断可以这么漂亮,学到了
- 亮点|等了6个月终于能晒晒新房了,都挺满意的,客厅是最大的亮点
- 庭院|取消客厅三件套,只摆一张大长桌,79㎡的家简洁质朴,太满意了
- 开阳|房价下跌势头强劲,炒房客为何不积极抛房?主要有这5个原因
- 押金|退租不成房子变猪窝 房东VS租客大战你站谁?
- 餐厅|这套新房真有创意,客厅改主卧,电视背景墙后面设吧台!
- 布局|餐厅布局有很多不一样的设计,看看有没有合适你家装修的效果
- 箭牌家居第二季全空间定制设计大赛获奖作品公布|定制快讯| 大赛","sex_score":"0","source":"wspuser_3beijing,nbbengnewid_e4563a267737194b97f7d45af8307142,nbbengdu
