\\\"
装修风格:现代中式风格
实际面积:130平米(室内面积)
空间格局:三房两厅
设计师:风云帆设计工作室
项目位置:广东省东莞市
装修造价:全包价格20万

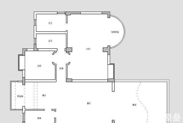
原始结构图
此套设计是一个老房改造,之前的东西都不要了,拆成毛坯后,每个地方都还是比较中规中矩,公卫的门只对客餐厅过道,圆形的过道似乎浪费了一些面积,也让房子显得不方正。

平面布置图
通过五天的时间跟男女业主来回的沟通讨论,确定了这稿方案:1.入户改成露台,作为了一个花园休闲区。2.客厅和餐厅之前,因为客厅是下沉式的,所以做了门洞,让空间分割。3.餐厅的阳台改成了一个开放式的茶室。4.改变厨房位置,将原有厨房位置做成了书房。5.之前的圆形过道,做平了,过道直通主卧室房门。

入户花园

入户花园

入户花园
这个入户花园特别大,称得上一个空中花园了。功能的规划也做了很多,有喝茶的茶台,还有鱼池和花池。护栏封的木质护栏。家里面小孩都很大了,所以不用考虑安全问题,而且那一边还做了一个花池,拉远这个木质护栏的距离。这个空间不仅有鞋柜,还有洗手池,做的台上盆。

客厅

客厅
欣赏过如此盛景的入户花园之后,紧接着进来的就是客厅了。客厅和入户花园之间做的推拉门,以此来保证客厅的采光。电视背景墙是两边展示柜中间大理石的对称式设计,和沙发背景墙中间壁画两边木质格栅相呼应。

餐厅

餐厅
进入到餐厅要走三阶楼梯,让房子住出了别墅的感觉,让生活更加的有仪式感。餐厅的酒柜不仅可以看做是储物收纳,还可以当造型来欣赏,因为它实在是太美了,餐厅两边都是酒柜,收纳空间超强。

主卧室

主卧室
主卧室是一满墙的木质衣柜,衣柜中间的柜门到顶显得很整体,两边做了不一样的造型,让其乱中有序,增加欣赏感,对于业主来说收纳是很重要的,因为女业主非常喜欢买买买,所以在床头也做了床头柜和衣柜的结合设计。床头背景的一幅画非常有中式特色。
推荐阅读
- 上港|从上港星江湾现场发来一条项目新消息,请查看
- 装修|乔迁新房3月以泪洗面!当初的不理智,连犯15个极品装修坑!作孽
- 饱和度|173㎡轻奢新中式,古典和现代的碰撞,唯美浪漫!
- 小钱|游点好笑!收手机的新方式,一抓一个准!这老师怕是柯南看多了?
- 情形|速看!武汉住房公积金贷款信用审核新标准发布
- 安置|上城区紫阳街道加速回迁安置 焕新美好家园
- 背景墙|97㎡现代风,以时尚打造空间,以新颖突出特点
- 疯狂|1月20日广州新房网签210套,增城以43套再次蝉联榜首!势头强劲!
- 中海珑悦府|中海珑悦府好不好?置业顾问从项目现场发回新组图
- 武汉市自然资源和规划局|确定了!白沙洲将新添一所高中
